Mediateca Waalse Krook, Gante
Coussée & Goris architecten RCR Arquitectes- Tipo Cultura / Ocio Mediateca
- Material Acero
- Fecha 2010
- Ciudad Gante
- País Bélgica
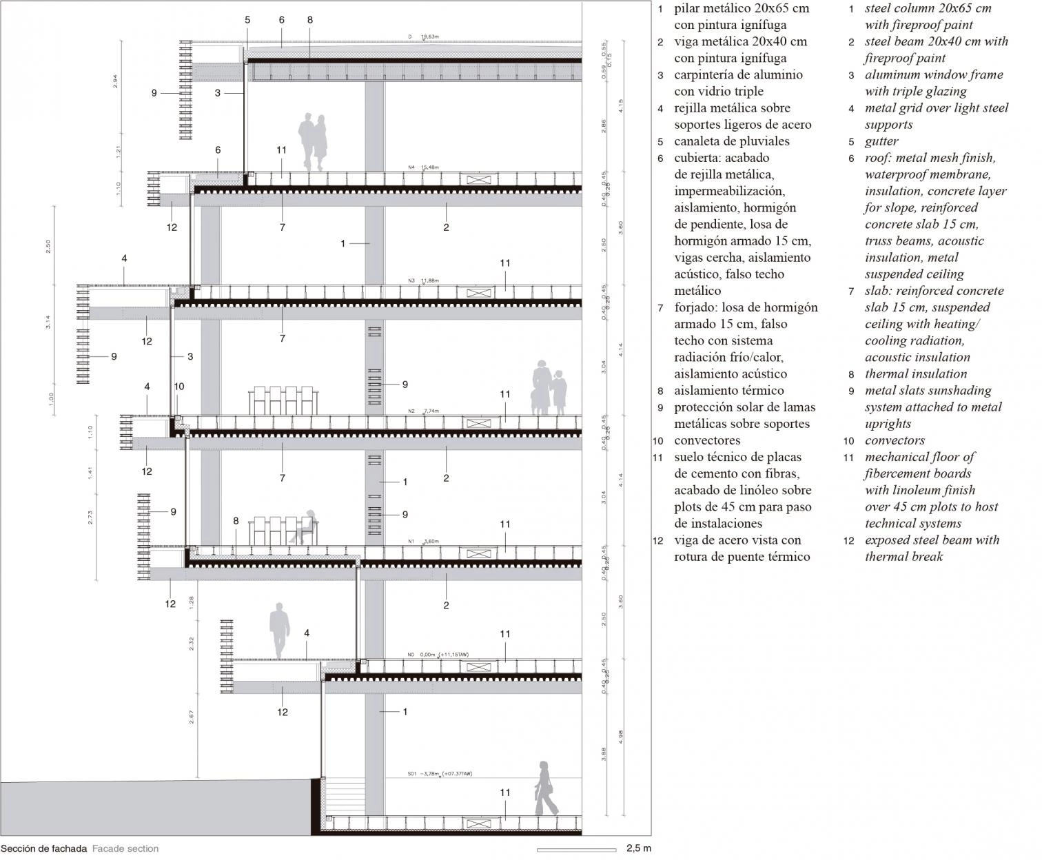
La nueva mediateca, en el centro de Gante, se sitúa en un recodo del krook, el canal que recorre toda la ciudad y que alcanza su cota más baja en este punto, poniendo de manifiesto las dos ‘cotas cero’ del tejido: la del propio canal y la de los incontables puentes que lo cruzan. El edificio parte de la conexión de estas dos cotas a través de un espacio a doble altura que, a modo de ágora, recoge las circulaciones y las introduce en el complejo mundo interior de usos que ofrece la mediateca: centro de nuevos medios, biblioteca, recursos para universitarios, centro de actividades para niños y aulas polivalentes. El frente urbano del edificio, que responde a la cota de los puentes, se define con una zona peatonal en ele que comunica dos de ellos. Hacia el sur, el edificio se retranquea para generar una plaza, que queda protegida por el vuelo progresivo de las plantas superiores y que da acceso al vestíbulo. Entendida como un condensador social, la mediateca se organiza a través de espacios de circulación que recorren diagonalmente la sección y que se aprovechan para introducir servicios y zonas de estancia para la relación de los diferentes usuarios. Las fachadas, acabadas en vidrio, permiten inundar de luz natural el interior, y exteriormente se protegen con una celosía metálica de lamas horizontales.














Proyecto Project
De Waalse Krook
Cliente Client
C.V.B.A. Waalse Krook
Arquitectos Architects
RCR Arquitectes; Coussée & Goris Architecten
Colaboradores Collaborators
D. Delarue, C. Garric, M. Rodríguez, M. Kielian, A. Moura, R. Kobayashi, J. Feijó, C. Onisiforou, L. Cazala, E. Verstraete, A. Lippmann, P. Rodríguez, C. Torio, G. De Cock, T. Deltour, S. Tarradas, H. Pires, G. Puigvert, L. De Groote, A.Vicente-Arche, N. Lopes, A. Dalmasas, O. Gábor, M. Casas, J. Pailleux
Consultores Consultants
Studieburo Mouton (estructura structure); VK Engineering (instalaciones MEP); Artec3 Studio (iluminación lighting); E. Geens (economía economy); Raum & Akustik (acústica acoustics); Aries Adviser (jefe de proyecto project manager); Encaix comunicació visual (maqueta model)