Museo Soulages, Rodez
RCR Arquitectes- Tipo Museo Cultura / Ocio
- Material Acero cortén Metal
- Fecha 2008 - 2014
- Ciudad Rodez
- País Francia
- Fotografía Hisao Suzuki Pep Sau Christian Richters
- Marca Artec3
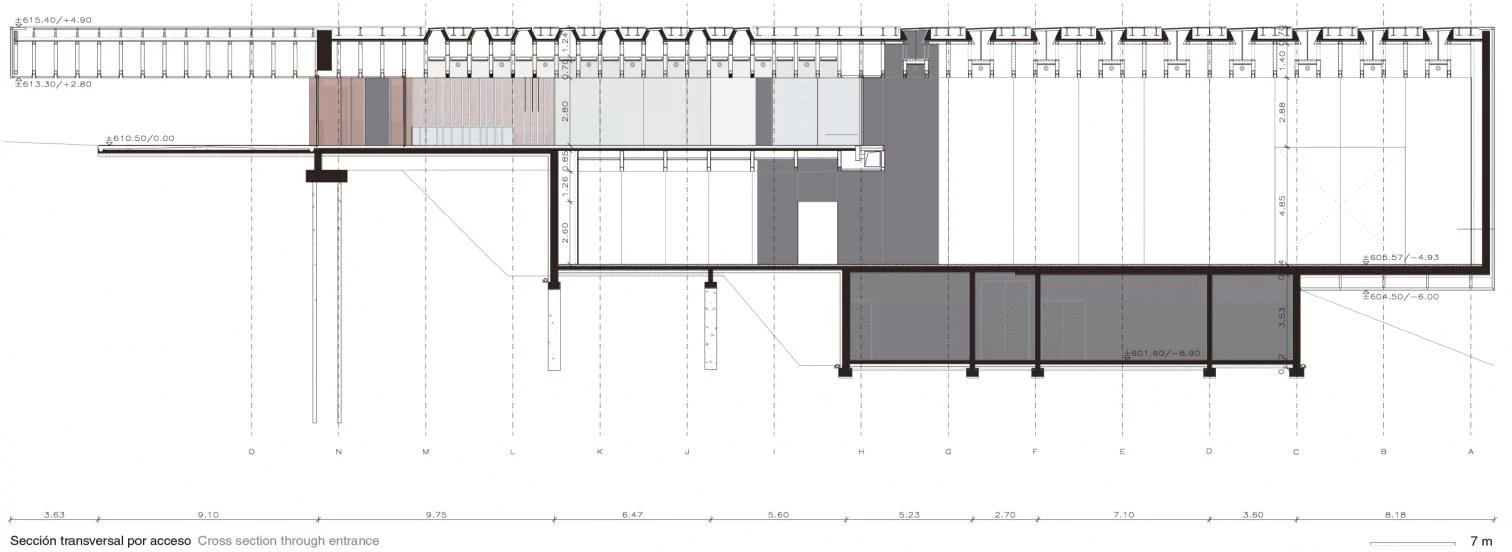
El museo consagrado a Pierre Soulages —artista nacido en 1919 y uno de los padres del informalismo en Francia— se levanta en un parque de su localidad natal, Rodez, muy cerca la gran catedral gótica que domina el conjunto urbano. Esta localización define el modo en que el museo se inserta en su entorno aprovechando el desnivel existente para segregar el edificio en dos partes: por un lado, un zócalo semienterrado en un talud; por el otro, un conjunto de paralelepípedos ciegos revestidos de acero cortén que se incrustan en la pendiente. Los 1.700 metros cuadrados de superficie expositiva se organizan a través de una pieza longitudinal de comunicaciones, dispuesta en paralelo a la calle de acceso, y que se cruza con varios volúmenes transversales para generar la imagen exterior del edificio: un conjunto de cajas de diferente altura, profundidad y separación, pero que sigue un orden rítmico. Con sus fachadas ciegas, las cajas se llenan con la luz misteriosa que se derrama cuidadosamente por los lucernarios.



























Obra Work
Musée Soulages, Rodez (Francia).
Client Client
Communauté d’agglomération du Grand Rodez.
Arquitectos Architects
RCR Arquitectes; G. Trégouët (arquitecto asociado associate architect).
Consultores MAW
Philippe Maffre (escenografía scenography); ARTEC3 / M. Ginés (diseño de iluminación lighting design); Grontmij / P. Laugier, P. Cariven (estructura e instalaciones structure and MEP); Thermibel Acousthique / F. Fourel (acústica acoustics); Maquet3 (maquetas models).
Fotos Photos
Pep Sau; Hisao Suzuki; Christian Richters.