Waalse Krook Media Library, Gante
Coussée & Goris architecten RCR Arquitectes- Type Culture / Leisure Media Library
- Material Steel
- Date 2010
- City Ghent
- Country Belgium
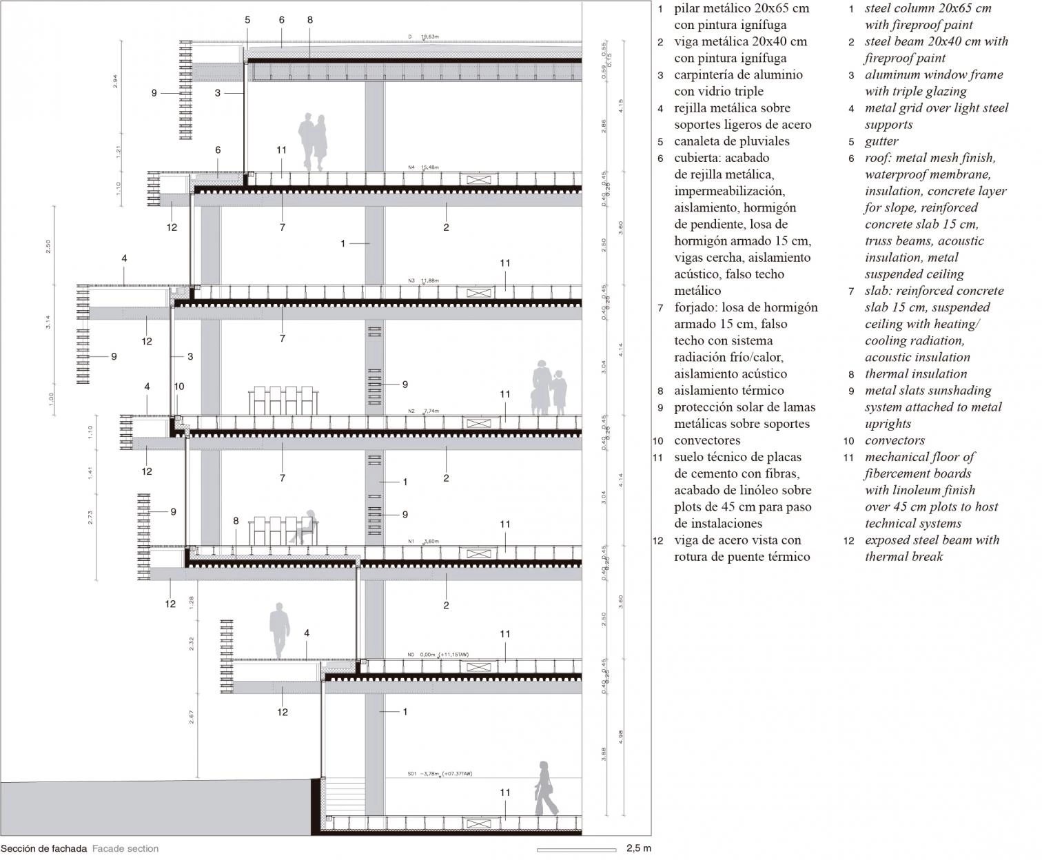
The new media library, in the center of Ghent, sits at a bend of the krook, the canal that runs through the city and reaches its lowest level at this point, marking the two ‘zero levels’ of the city: that of the canal itself and that of the many bridges crossing it. The building stems from the connection of these two levels through a double-height space that, like an agora, gathers the circulations and introduces them in the complex interior program the mediatheque offers: center for new media, library, resources for university students, activities for children and multipurpose halls. The building’s street facade, at the same height as the bridges, asserts its presence with an L-shaped pedestrian zone that connects two of them. To the south, the building is recessed to generate a square, which is protected by the gradual cantilever of the upper floors and that gives access to the lobby. Conceived as a social condenser, the media library is organized through circulation spaces that diagonally cover the section and that introduce services and communal areas where users can gather. The facades, finished with glass, fill the interior spaces with natural light, and are externally protected by a metal latticework of horizontal slats.














Proyecto Project
De Waalse Krook
Cliente Client
C.V.B.A. Waalse Krook
Arquitectos Architects
RCR Arquitectes; Coussée & Goris Architecten
Colaboradores Collaborators
D. Delarue, C. Garric, M. Rodríguez, M. Kielian, A. Moura, R. Kobayashi, J. Feijó, C. Onisiforou, L. Cazala, E. Verstraete, A. Lippmann, P. Rodríguez, C. Torio, G. De Cock, T. Deltour, S. Tarradas, H. Pires, G. Puigvert, L. De Groote, A.Vicente-Arche, N. Lopes, A. Dalmasas, O. Gábor, M. Casas, J. Pailleux
Consultores Consultants
Studieburo Mouton (estructura structure); VK Engineering (instalaciones MEP); Artec3 Studio (iluminación lighting); E. Geens (economía economy); Raum & Akustik (acústica acoustics); Aries Adviser (jefe de proyecto project manager); Encaix comunicació visual (maqueta model)