Biblioteca y hogar de jubilados, Barcelona
RCR Arquitectes- Tipo Biblioteca Residencia Plaza Cultura / Ocio Vivienda
- Material Acero cortén Acero
- Fecha 2002 - 2007
- Ciudad Barcelona
- País España
- Fotografía Eugeni Pons Hisao Suzuki
Dentro del plan de recuperación para los interiores de las manzanas del Ensanche de Cerdá en Barcelona promovido por el Ayuntamiento, se levanta la construcción que edifica el último solar disponible en el frente de la calle del Conde Borrell, dentro del barrio de San Antonio, sin llegar a colmatarlo.

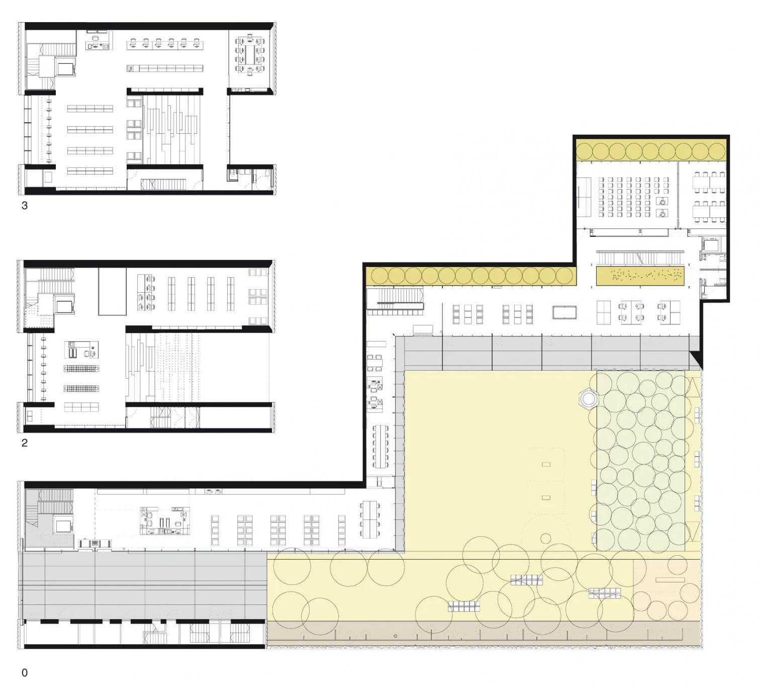
Dado que el encargo no se limita únicamente a la reutilización del patio de manzana, sino que también comprende la implantación de una biblioteca y de un hogar de jubilados, la disposición de los distintos volúmenes se escoge cuidadosamente para establecer una comunicación física y visual entre la calle y el nuevo espacio ajardinado.


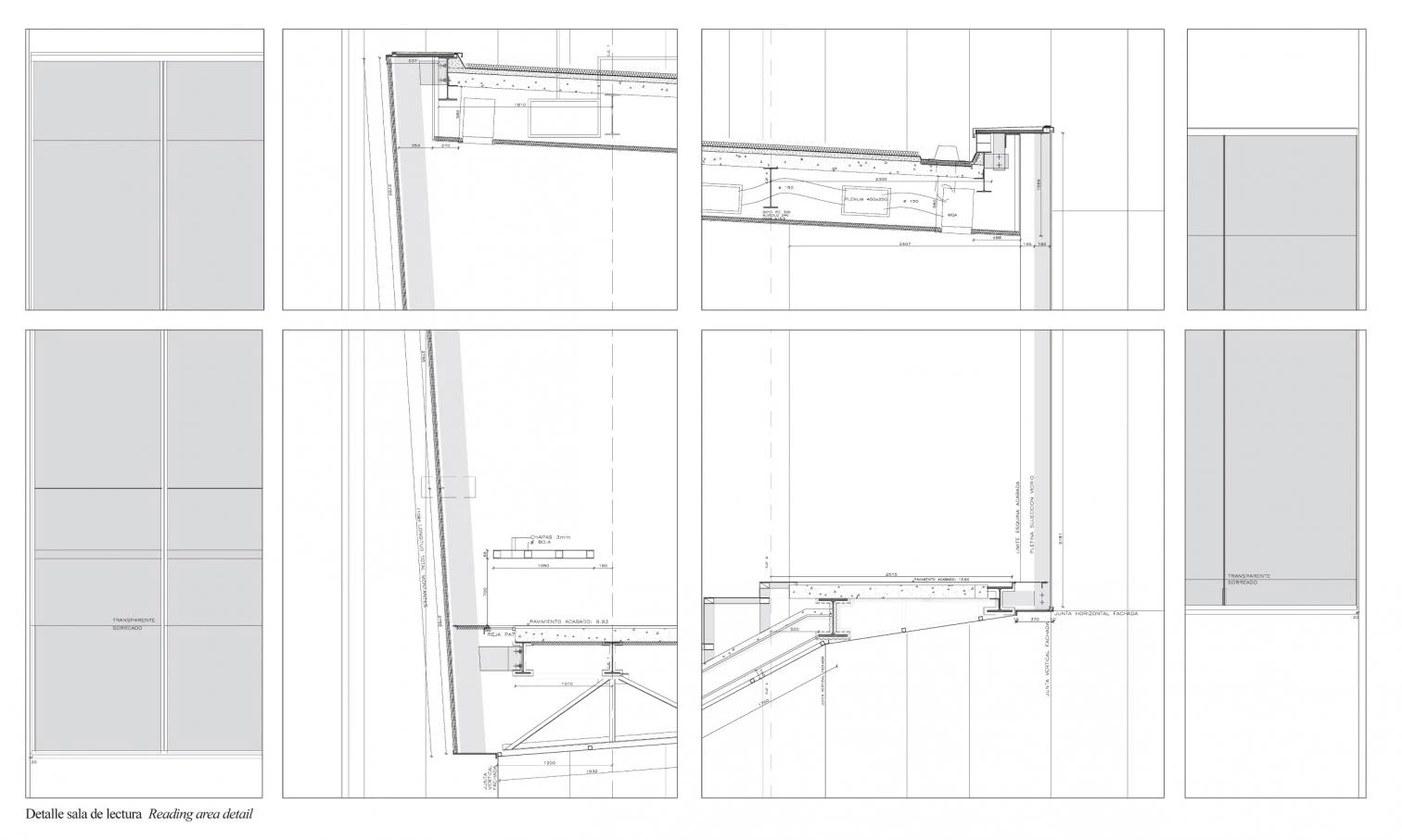
La biblioteca se configura como una puerta cuyas dimensiones reflejan su escala urbana, situando las salas de lectura en cajas ingrávidas s-jetas por dos cuerpos laterales que cubren los lienzos de medianería de las viviendas colindantes, mientras transmiten al exterior la imagen de solidez que proporcionan tanto sus acabados metálicos como sus rasgadas aberturas verticales. Estas piezas laterales concentran los elementos de comunicación vertical, dejando amplias zonas para las salas de lectura distribuidas por plantas, reservando la de acceso para la prensa periódica, y organizando por temas y edades las salas de los tres pisos superiores.


Los dos últimos niveles se comunican también por una grada cuyo escalonamiento permite crear un ámbito de relación y lectura más dinámico. Finalmente, el sótano da cabida a una pequeña sala de actos y un espacio expositivo, además de los dependencias administrativos, de servicio y depósito.


Las fachadas del centro de mayores se recortan sobre el telón de los edificios que cierran la manzana reproduciendo en su interior la imagen urbana, además de mantener un vínculo de conexión con la calle bajo la biblioteca.
Por otra parte, el hogar de jubilados reproduce dócilmente los retranqueos de las parcelas que confinan el patio de la manzana, liberando para éste la máxima extensión posible, a la vez que establece un zócalo continuo de una única planta que homogeniza la imagen del patio, convirtiéndose en una nueva fachada que se interpone a la visión del se-vero muro que establece la frontera de la actuación.







Las piezas que contienen las salas de lectura se posicionan entre los dos volúmenes verticales que se adosan a las medianeras para sujetarlas y funcionan como filtros de luz que crean vistas continuas hacia el cielo abierto.
En las crujías de mayor profundidad, la planta se esponja separándose de las medianeras, conformando patios ingleses que obtienen la máxima iluminación natural, tanto para las salas de la planta de acceso como para los talleres y espacios situados en el sótano. La superficie libre obtenida se destina a zonas de estancia, paseo y juegos infantiles, creando un área de relación al servicio de distintas edades como aporte a la comunidad. Este patio se separa de las salas de personas mayores por medio de porches resueltos con lamas de acero que preservan su intimidad además de amortiguar el impacto sonoro de las áreas de juegos.


Cliente Client
Proeixample. Ayuntamiento de Barcelona
Arquitectos Architects
RCR: Rafael Aranda, Carme Pigem, Ramón Vilalta
Colaboradores Collaborators
O. Gallez (concurso competition); G. Trégouët (maquetas, concurso, proyecto y dirección de obra models, competition, project and construction site supervision); A. Sáez (dirección de obra construction site supervision); M. Guaragna, M. Braga (visualización digital images); Proeixample: C. Marzo (proyecto project)
Consultores Consultants
GPO: C. Carrasco (aparejador quantity surveyor); Blázquez-Guanter (estructura structural engineering); Grau-Del Pozo (instalaciones mechanical engineering)
Contratista Contractor
Vías y Construcciones
Fotos Photos
E. Pons, RCR, H. Suzuki