Museo Soulages, Rodez (en proyecto)
RCR Arquitectes- Tipo Cultura / Ocio Museo
- Fecha 2008
- Ciudad Rodez
- País Francia
- Marca Artec3
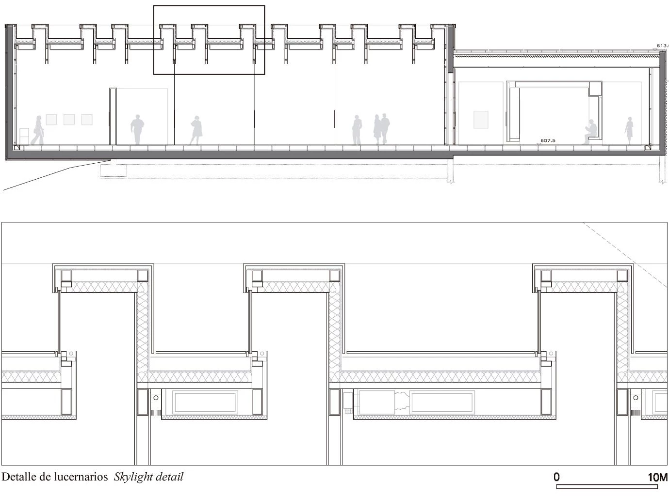
El museo consagrado al artista Pierre Soulages en Rodez, su ciudad natal, se ubica en el céntrico parque Foirail: un espacio público de forma almendrada, a escasos metros de la ciudad antigua y de la plaza de la catedral gótica, el edificio más importante de la ciudad. La posición privilegiada del parque domina el entorno de la localidad, adoptando una acusada pendiente en uno de sus bordes de la que el proyecto saca el máximo partido.
Así, una pieza longitudinal, paralela al bulevar que limita el parque, actuá como espina dorsal del edificio: en él se insertan una serie de volúmenes ciegos de diferentes alturas, creando un interesante ritmo en las fachadas. El desnivel sobre el que se sitúa el edificio permite, por un lado, minimizar su impacto visual en el parque —ya que parte de su volumen permanece semienterrado— y por otro, mostrar una imagen más monumental desde la zona baja de la ciudad. La disposición del cuerpo de administración, separado en planta baja del volumen principal pero conectado en planta superior por una pasarela de vidrio, permite atravesar el complejo gracias a unas escaleras exteriores que salvan la pendiente. El museo se recubre de una piel de vidrio y acero cortén, cuya pátina entrará en diálogo, al envejecer, con los espacios verdes que lo rodean.













Cliente Client
Communauté d’agglomération du Grand Rodez
Arquitectos Architects
RCR: Rafael Aranda, Carme Pigem, Ramón Vilalta; Passelac et Roques Architectes (arquitectos colaboradores collaborator architects)
Colaboradores Collaborators
G. Trégouët (jefe de concurso y jefe de proyecto competition and project leader); D. Delarue, J. Puigcorbé, L. Rotoli, K. Fujii, A. Barroso, A. Paulicelli, C. Zuczynski, S. Tarradas, A. Jacunskaite, A. Müller (concurso competition); A. Sáez, C. Medina (proyecto project); O. Nouska, Maquet3 (maquetas models)
Consultores Consultants
Coplan (estructuras structural engineering); Artec3 (instalaciones mechanical engineering); Pro-Arq (dirección de obra construction site supervision)