Edificio de viviendas Antonio Maceo 8 en Ciudad de México
Taller Héctor Barroso- Tipo Vivienda
- Ciudad Ciudad de México
- País México
- Fotografía Rory Gardiner César Béjar
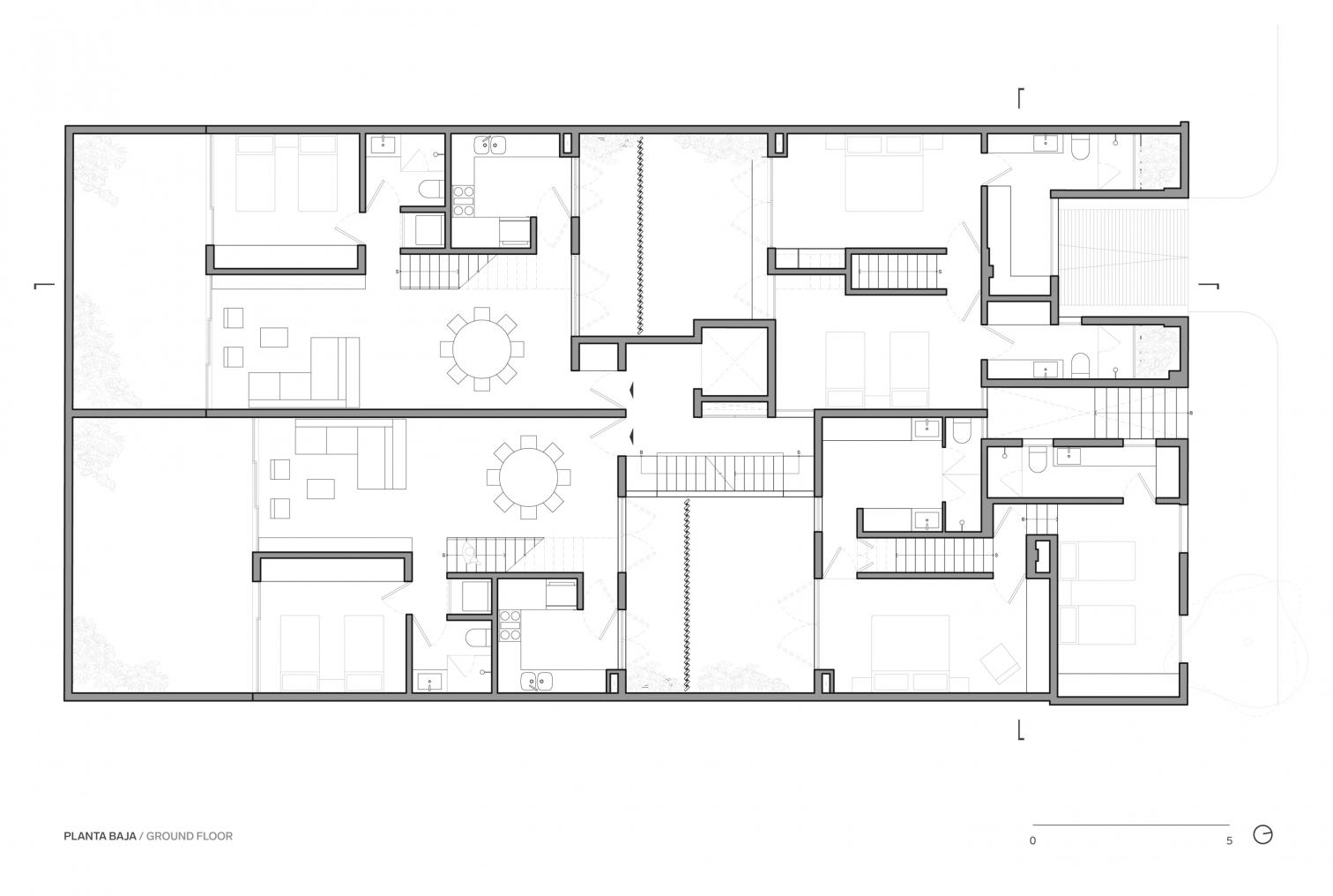
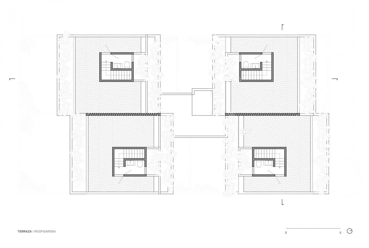
En respuesta al crecimiento de la colonia Escandón, en Ciudad de México, se erige un edificio en el número 8 de la calle Antonio Maceo, que abarca 2.000 metros cuadrados.
Detrás de una fachada catalogada, se alzan cuatro volúmenes de hormigón que albergan trece viviendas distribuidas en cinco niveles, que aprovechan al máximo las condiciones del lugar. El diseño compositivo centraliza los servicios, lo que permite una planta libre y flexible, adaptable a las necesidades de los residentes. Los espacios están orientados de manera estratégica para maximizar la entrada de luz natural y la ventilación cruzada, utilizando balcones y medios niveles, que amplían los límites interiores.
En su sección, el proyecto puede parecer complejo. Las circulaciones, representadas por las escaleras, evocan la sensación de un laberinto, pero a su vez, reflejan formalmente la diversidad de formas de habitar. Las fachadas, por su parte, siguen un sistema estructurado, alineado con las necesidades de su programa.



















