Antonio Maceo 8 residential building in Mexico City
Taller Héctor Barroso- Type Housing
- City Mexico City
- Country Mexico
- Photograph Rory Gardiner César Béjar
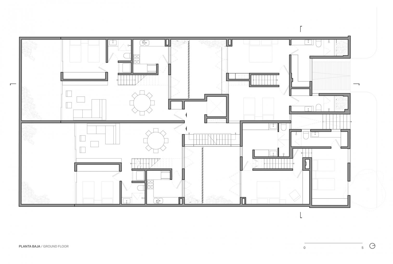
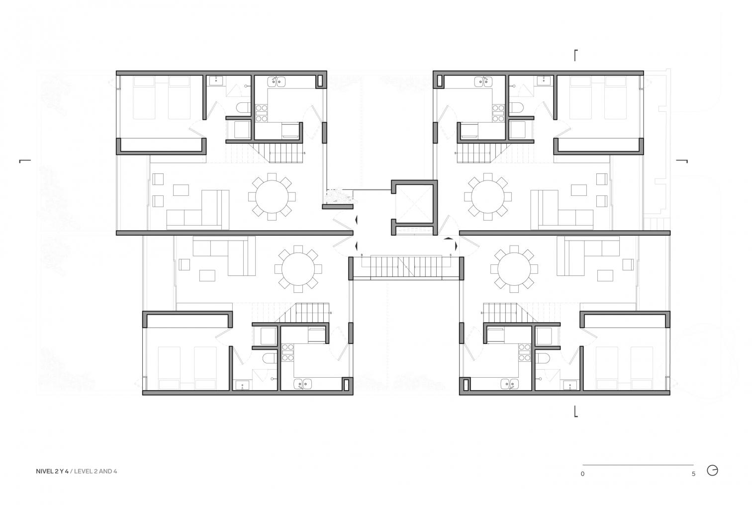
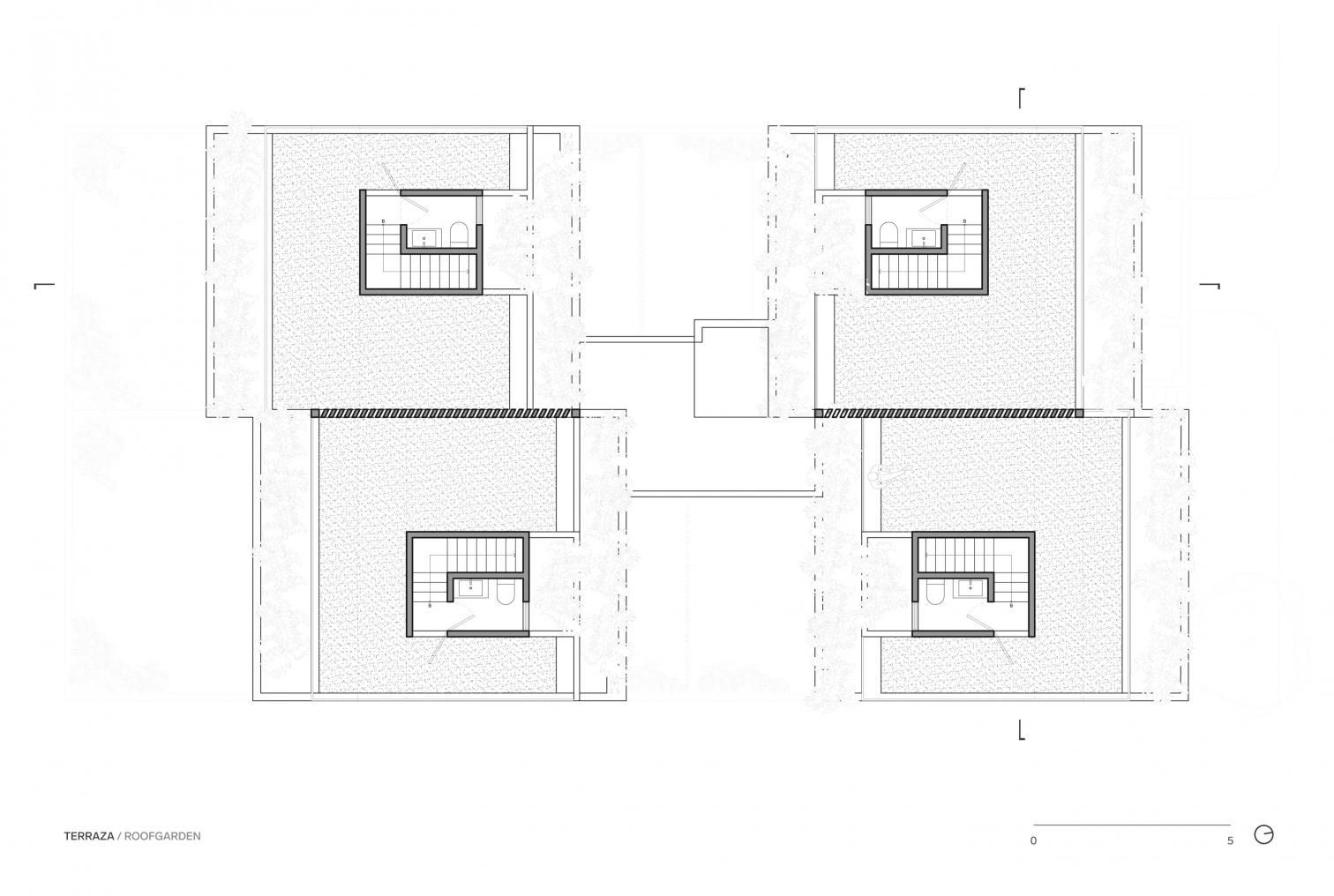
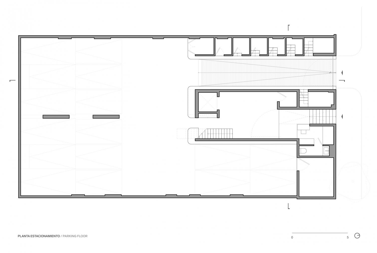
In response to the growth of the Escandón neighborhood in Mexico City, this building at Antonio Maceo 8 spans 2,000 square meters.
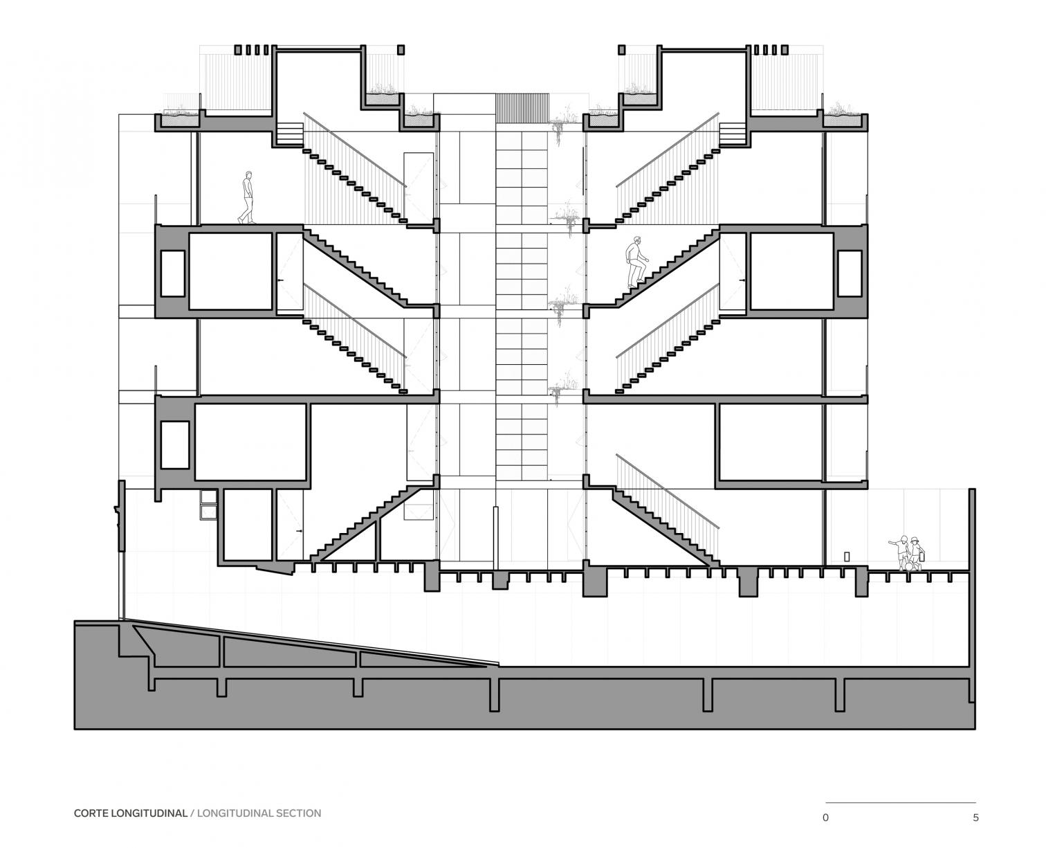
Behind a heritage-listed facade rise four concrete volumes containing thirteen dwellings on five stories, and they make the most of the conditions of the place. The compositional pattern centralizes the services, which results in a flexible open plan, adaptable to the residents’ needs. The spaces are strategically positioned to maximize incoming natural light and cross ventilation via balconies and intermediate levels that also serve to extend the boundaries of the interior.
In the section, the scheme may seem more complex. The circulation elements – stairways – give the feel of a labyrinth, but also reflect diverse forms of habitation. The facades, for their part, follow a rigid system in alignment with the requirements of the program.



















