Centro deportivo Cabo en Los Cabos, Baja California Sur
Taller Héctor Barroso- Tipo Deporte Centro deportivo
- Material Tierra compactada Tierra
- Fecha 2019 - 2021
- País México
- Fotografía César Béjar
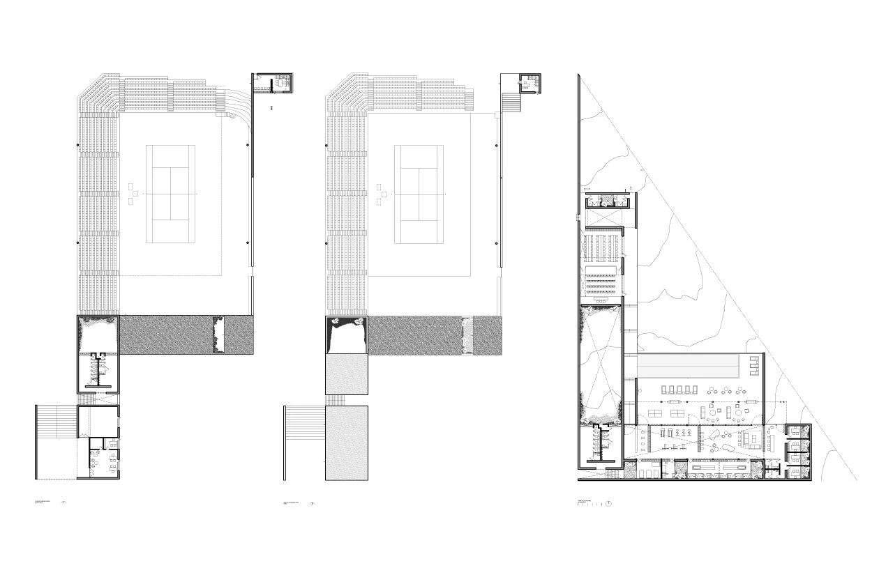
Uno de los abiertos del circuito profesional de tenis se celebra en un recinto cuyas instalaciones se han erigido con un sencillo tapial para integrarlas en el desértico paisaje.
Una serie de plataformas modela el terreno para acondicionar las pistas de juego, obligatoriamente orientadas norte-sur, y de ellas nacen los gruesos muros que conforman los espacios interiores y los resguardan del intenso sol.






















Obra Work
Centro deportivo Cabo, Los Cabos (México)
Cabo Sports Complex, Los Cabos (Mexico)
Arquitectos Architects
Taller Héctor Barroso / Héctor Barroso (socio partner); Alan Rojas, Alice Moreno, Camila Ulloa, Kevin Sandoval, Paloma Sánchez, Paulina Robledo, Salvador Saracho (equipo team)
Consultores Consultants
Jorge Karamanos (paisaje landscape); La Metropolitana (mobiliario furniture); DECSA (estructura structure); PROICO (ingeniería engineering)
Superficie Area
5.000 m²
Fotos Photos
César Béjar