Fernanda Canales, edificio residencial Portales en Ciudad de México
Fernanda Canales- Tipo Vivienda
- Ciudad Ciudad de México
- País México
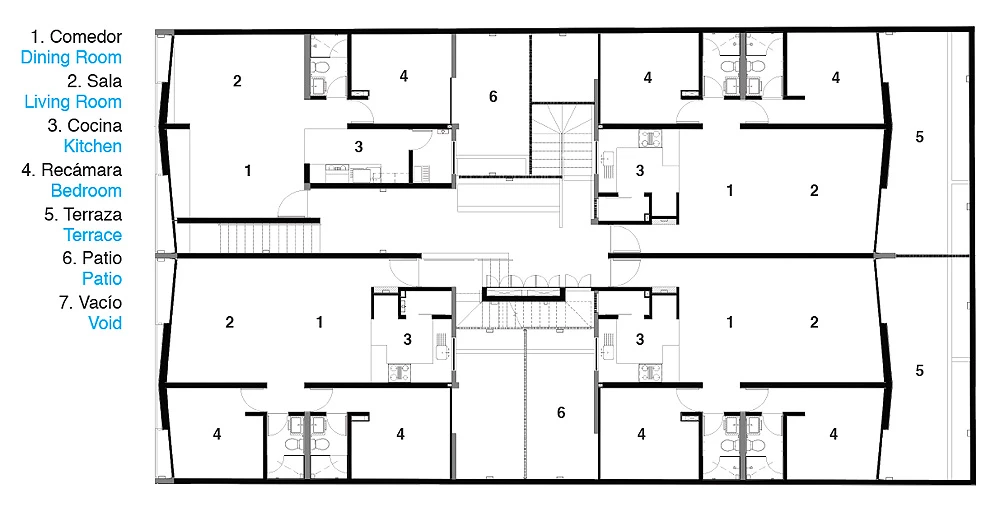
Este bloque de viviendas se levanta en una parcela rectangular de 400 metros cuadrados de un barrio céntrico situado en la zona sur de Ciudad de México. El proyecto de la mexicana Fernanda Canales parte de la premisa de garantizar la privacidad de los residentes, mientras optimizan las vistas con amplios ventanales y terrazas. Tres niveles albergan doce residencias, que oscilan entre los 70 y 90 metros cuadrados, mientras una planta semienterrada está destinada a aparcamientos, almacenaje y áreas de servicio. La azotea alberga las cuatro terrazas pertenecientes a los dúplex de la última altura. Todos los apartamentos se vuelcan hacia patios intermedios que aportan ventilación cruzada y luz natural, los cuales están conectados por una escalera con celosías de hormigón. Fernanda Canales Rafael Gamo Sandra Pereznieto












