Won Buddhism Temple of Houston
Carlos Jiménez- Type Religious / Memorial
- Date 2015 - 2018
- City Houston
- Country United States
- Photograph Paul Hester
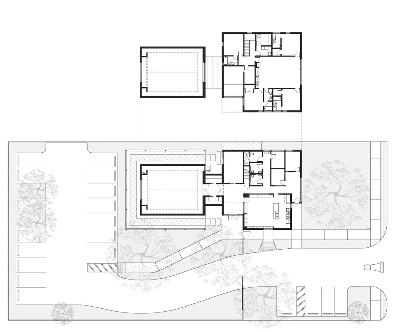
Won Buddhism is a modern and reformed type of Buddhism established in Korea in 1916. Its primary goal is to teach how to use the mind well toward enlightenment and equilibrium. There are several congregations around the world and a few of them in the United States. The one in Houston is the largest one in Texas and it is located on a property twelve miles west of the city’s center. An existing one-story house, which served as their meeting place, was removed to make way for the new 6,000 square foot building.
The two story wood frame and masonry structure houses the Dharma Hall (meditation, prayer room), a small gallery and library, some offices and the minister’s house on the second level. The building is placed within the coordinates of three existing live oak trees, integrating the beauty of these trees as an essential and complementary design element. The Dharma Hall is a double height room and the centerpiece of the complex. It is the place where services and ceremonies are held, a carefully lighted volume where the faith’s symbolic figure of a golden circle/ring takes center stage as truth and enlightenment.








Superficie Building size
550 m² 6,000 ft²
Finalización Completion
Ongoing
Cliente Owner
Won Buddhism of Houston
Arquitecto Architect
Carlos Jiménez Studio, Houston, Texas
Equipo Project team
Carlos Jiménez (director, autor del proyecto principal, project designer); You Chia-Lai, Hazal Yucell, Stephanie Lee, Michael Awalt, Evio Isaac
Consultores Project consultants
Bradley R. Dougherty, PE., Insight Structures, Inc. (estructura structure); Mario Colina, P.E., Probstfeld & Associates (ingeniería civil civil engineering); H.M. McLeod Engineering, P.E. (M.E.P.)
Contratista Contractor
Ted Anderson, Anderson Builders
Fotos Photos
Paul Hester, Hester+Hardaway Photographers