Neuhaus house, Houston
Carlos Jiménez- Type House Housing
- Date 1991 - 1994
- City Houston
- Country United States
- Photograph Paul Hester
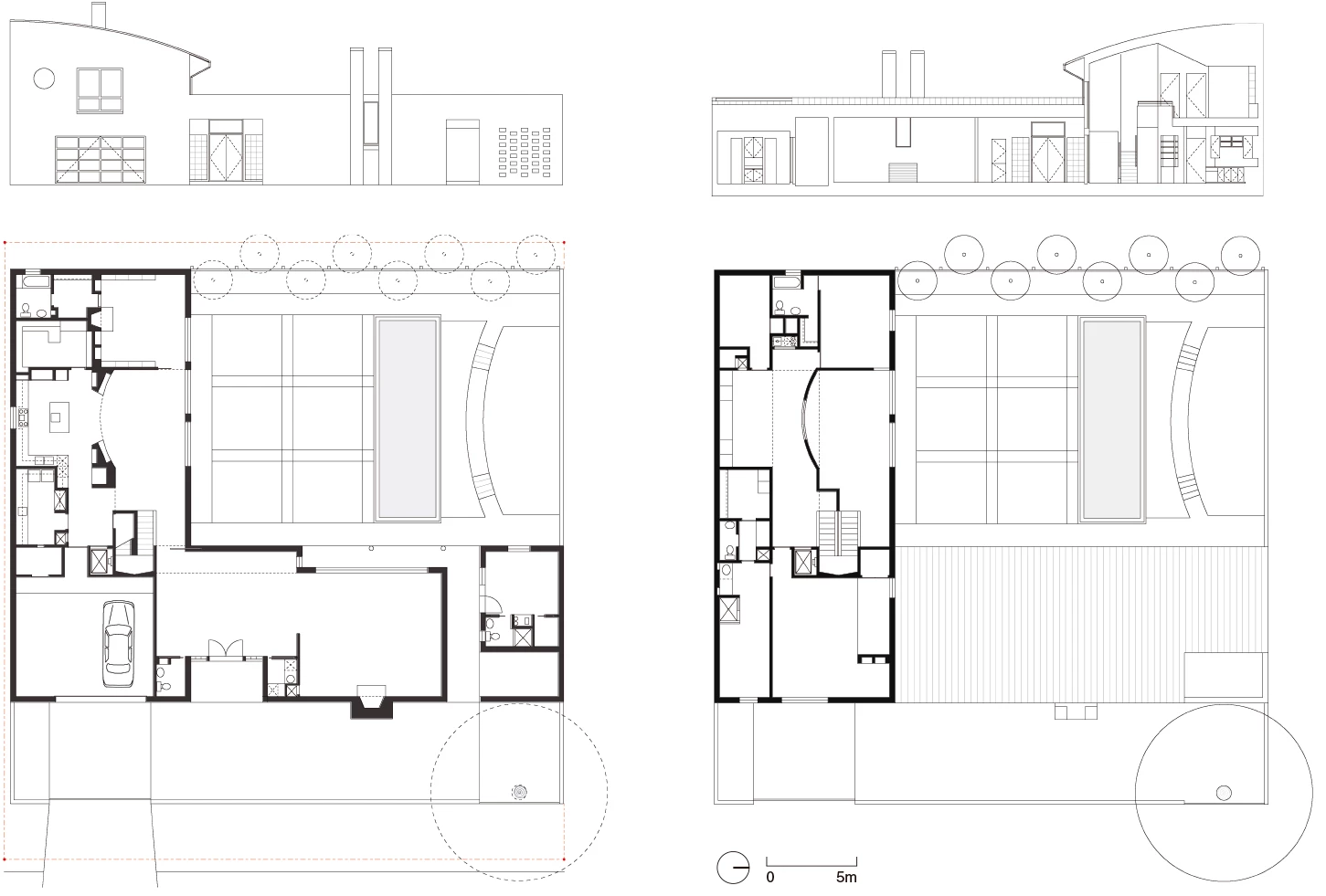
The 5,500 square feet house occupies the entirety of its double lot property becoming a walled-in compound with two singular courtyards. The totally enclosed courtyards underline the client’s desire for absolute privacy. The L-shaped plan is divided into two volumetrically distinct sections of one and two levels each. The taller volume provides double height windows facing north and available to the kitchen, dining area, library and study. The main bedrooms are located on the second level of the house. For their part, the main entry vestibule and living area share a half-vaulted ceiling that is discreetly sheltered from the street yet widely open to the main courtyard. The latter functions as a garden, a setting for sculptures, a performance platform and a swimming area.
The primary materials used to build the house are ground-faced concrete blocks, stucco, galvanized steel roofing panels, slate and stained concrete floors. With the exception of a few accent color walls, all interior walls are painted white, creating a neutral backdrop for the owner’s collection of antique furniture and contemporary art.







Superficie Building size
500 m² (parcela) 5,500 ft² (site)
Finalización Completion
1994
Cliente Owner
Olive J. Neuhaus
Arquitecto Architect
Carlos Jiménez Studio, Houston, Texas
Equipo Project team
Carlos Jiménez Studio: Carlos Jiménez, (director, autor del proyecto principal, project designer); John H. Bowley, AIA; Robert Fowler, Eric Batte, Mason Wickham, Dominique Brousseau
Consultores Project consultants
Jon Monteith, Structural Consulting Co. (estructura structure)
Contratista Contractor
Chandler Robinson, Renaissance Builders Inc., Houston, Texas
Fotos Photos
Paul Hester, Hester+Hardaway Photographers