MFA Central Administration and Junior School Building, Houston
Carlos Jiménez- Type Commercial / Office Culture / Leisure Education
- Date 1991 - 1994
- City Houston
- Country United States
- Photograph Paul Hester
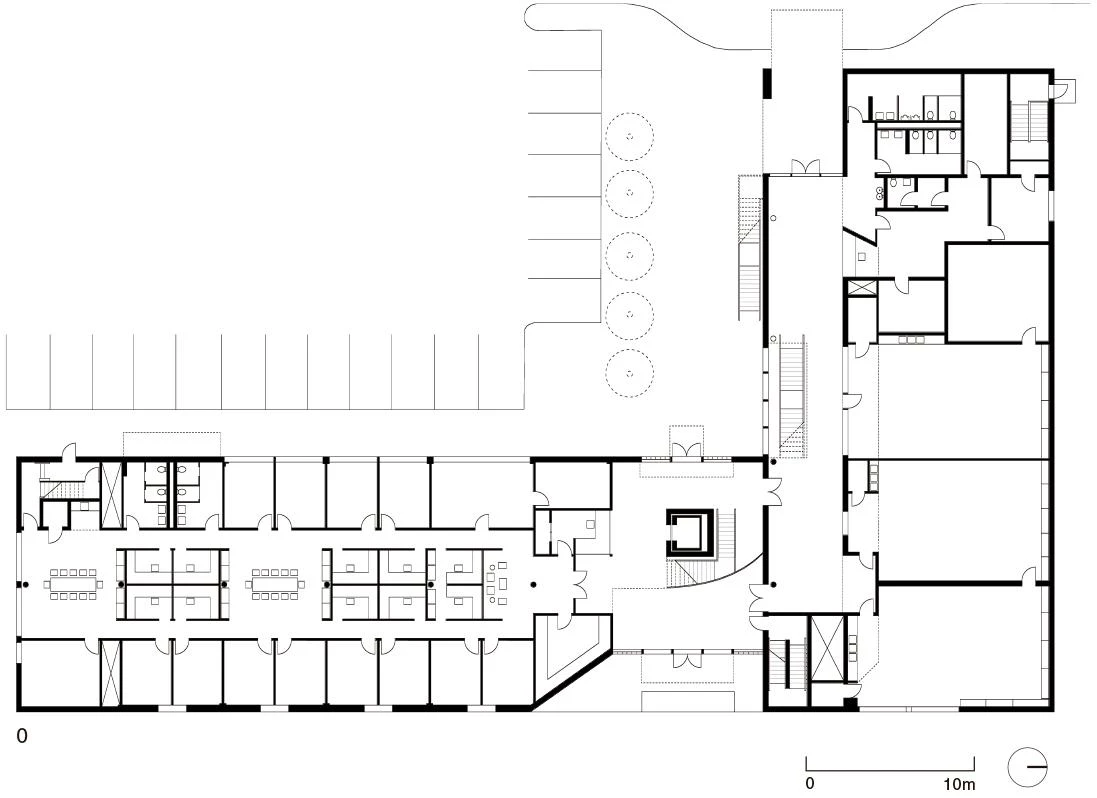
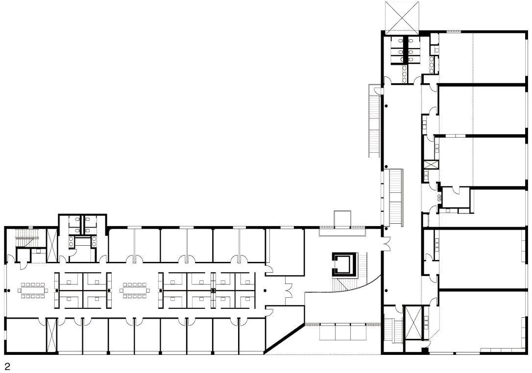
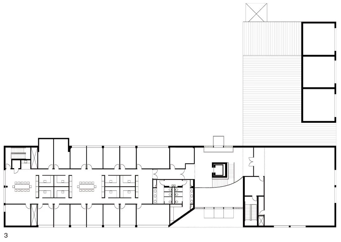
The 60,000 square feet hybrid building is part of a planned expansion set out by the Museum of Fine Arts, Houston in 1990. The L-shaped three-level structure consolidates all of the administrative offices for the entire institution and provides an art school annex for the museum’s adjacent Glassel School of Art. The two distinct programs form two wings joined by a common light-filled lobby while allowing each area to retain its singular entryway.
The building’s placement on the site preserves all of the existing oak trees along the main thoroughfare, Montrose Boulevard. The main street elevation stretches the length of the property to create a public canopy and promenade along the boulevard. The building’s parking area is shaded by newly planted oak and magnolia trees.
The materials used throughout the building, from Indiana limestone to Dakota gray granite, establish subtle and direct references to other MFA buildings and gardens. A desire for continuity while asserting a new urban reference for the institution’s evolving campus was critical from inception to completion.














Superficie Building size
5 500 m² 60,000 ft²
Finalización Completion
1994
Cliente Owner
Museum of Fine Arts, Houston
Arquitectos Architects
Carlos Jiménez Studio, Houston, Texas; Kendall/Heaton and Associates, Houston, Texas (arquitecto local?architect of record)
Equipo Project team
Carlos Jiménez Studio: Carlos Jiménez, (director, autor del proyecto principal, project designer); John H. Bowley, AIA (arquitecto de proyecto project architect); Robert Fowler, Eric Batte, Mason Wickham, Dominique Brousseau, David Lee, Gerrard Chong Kendall Heaton and Associates: Bill Kendall, Larry Burns, Warren Carpenter
Consultores Project consultants
Joe Colaco, CBM Engineers (estructura structure); Walter P. Moore and Associates (ingeniería civil civil engineers); Richard Dryer (iluminación lighting engineer); Dennis Wright & Associates Inc. (paisajismo landscape architect)
Contratista Contractor
Miner Dederick Companies, Houston
Fotos Photos
Paul Hester, Hester+Hardaway Photographers