Chadwick house, Houston
Carlos Jiménez- Type Housing House
- Date 1990 - 2006
- City Houston
- Country United States
- Photograph Paul Hester
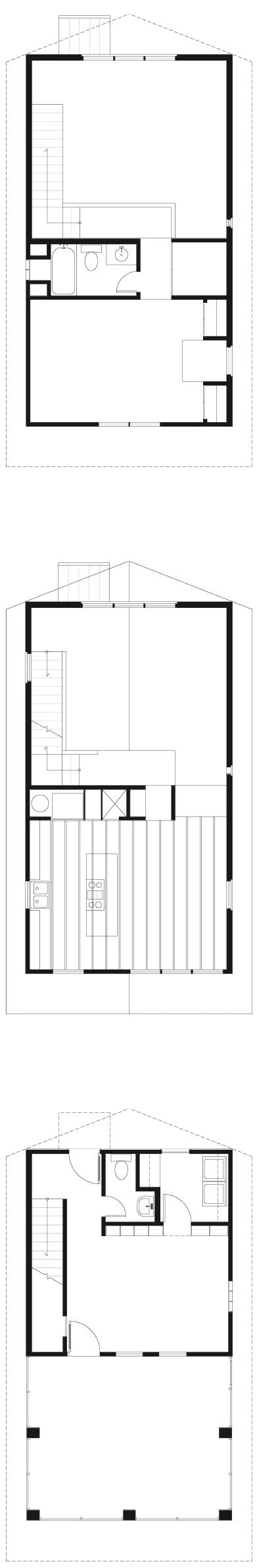
Located in a marginal area of the Houston Heights neighborhood, the three-storey wood framed house sits in the middle of its 33 feet wide by 135 feet deep site. Oriented along its predominant south-north axis and prevailing south breeze, the house is a vertical version of the ‘shotgun’ house, a variation on the noted type once common to the region. Organized in three levels, the dwelling spaces are divided into a south section and a north section. The former contains a screened porch, kitchen and dining, and the main bedroom, all facing a diagonal view of the dramatic skyline of downtown Houston. For its part, the north section consists primarily of a double height living space overlooking a front garden and the encircling trees.
Designed originally for a single occupant, the house was altered significantly in 2006 to accommodate new owners with different needs. To address these the porch was transformed into a main bedroom and a carport added. Also, since 1991 – the date of the original project – the neighborhood has prospered and increased in density, occluding most views of the downtown skyline.










Superficie Building size
150 m² 1,600 ft²
Finalización Completion
1991, 2006
Cliente Owner
Susan Chadwick
Arquitecto Architect
Carlos Jiménez Studio, Houston, Texas
Equipo Project team
Carlos Jiménez, (director, autor del proyecto principal, project designer); Dominique Brousseau, Mario Alcántara
Consultores Project consultants
Jon Monteith, Structural Consulting Co., Houston, Texas (estrucura structure)
Contratista Contractor
Carlos Jiménez Studio
Fotos Photos
Paul Hester, Hester+Hardaway Photographers