Cabo Sports Complex in Los Cabos, Baja California Sur (Mexico)
Taller Héctor Barroso- Type Sport Sport center
- Material Rammed earth Earth
- Date 2019 - 2021
- Country Mexico
- Photograph César Béjar
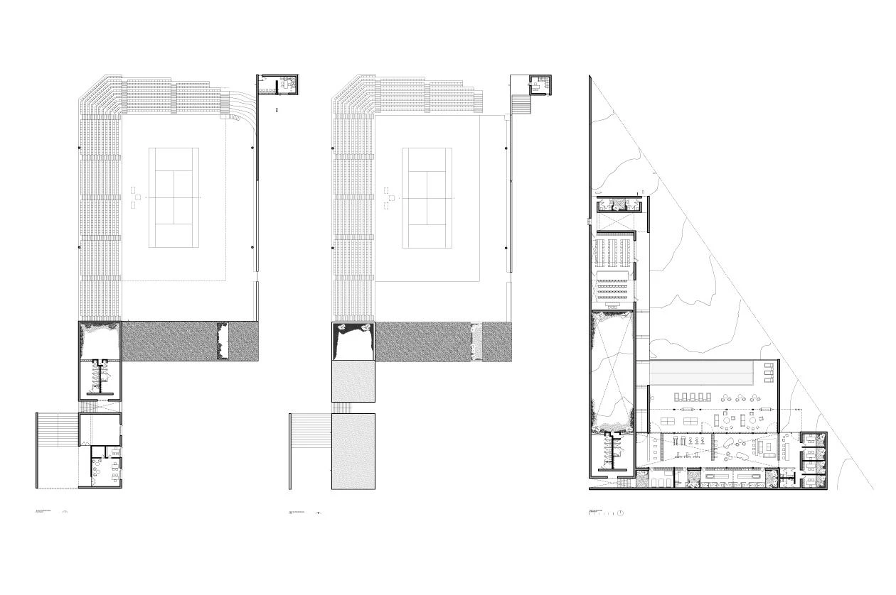
One of the open tournaments of the professional tennis circuit is held on premises where the facilities, presenting a simple wall of rammed earth, blend with the desert landscape.
A series of platforms molds the terrain to form playing courts, which obligatorily stretch north to south, and from them rise thick walls that form the interior spaces and protect them against the region’s intense sun.






















Obra Work
Centro deportivo Cabo, Los Cabos (México)
Cabo Sports Complex, Los Cabos (Mexico)
Arquitectos Architects
Taller Héctor Barroso / Héctor Barroso (socio partner); Alan Rojas, Alice Moreno, Camila Ulloa, Kevin Sandoval, Paloma Sánchez, Paulina Robledo, Salvador Saracho (equipo team)
Consultores Consultants
Jorge Karamanos (paisaje landscape); La Metropolitana (mobiliario furniture); DECSA (estructura structure); PROICO (ingeniería engineering)
Superficie Area
5.000 m²
Fotos Photos
César Béjar