Tori Tori Santa Fe, Ciudad de Mexico
Esrawe Studio- Type Culture / Leisure Restaurant Commercial / Office
- Material Wood
- City Mexico City
- Country Mexico
- Photograph César Béjar
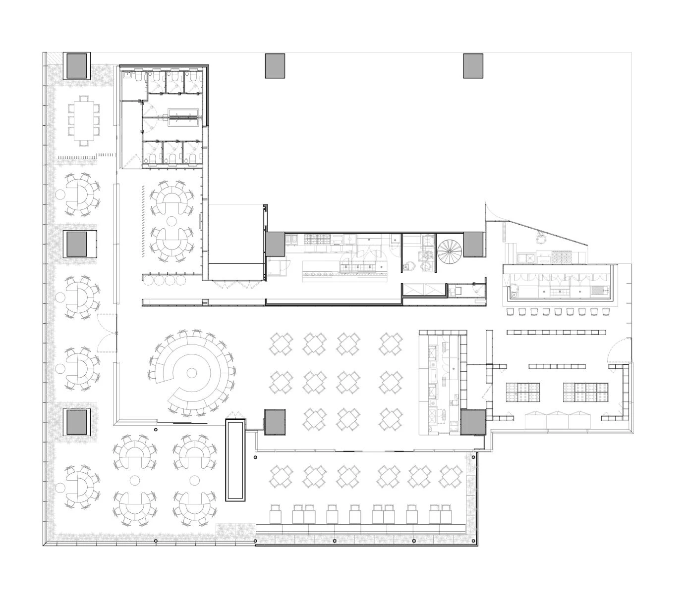
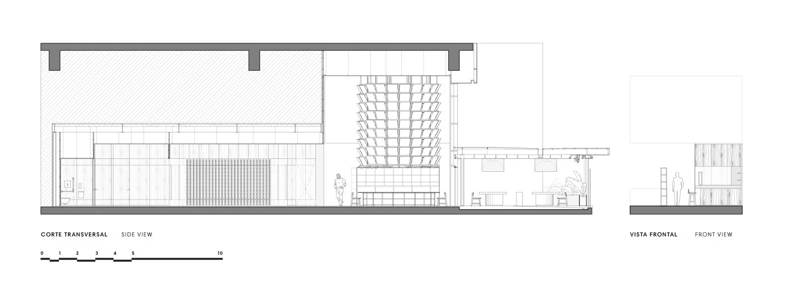
This is the fifth branch, in Mexico City, of the famous Tori Tori chain of Japanese restaurants. It is located on the ground floor of a corporate building in the modern business district that gives it its name, Santa Fe, and in addressing the culinary program the design of the space draws from the subtlety and sobriety of Japan’s craft traditions. Hence, the scale of the spaces is emphasized by means of two suspended elements made of holm oak that, because of their texture, robustness, and monumental character, bring to mind the suits of armor of bygone samurai warriors, especially the breastplates called dō. One of those hanging objects frames a space that is used for the restaurant’s food takeout service, and the other one rises vertically as a radial chimney flue hovering over the main teppan, the iron griddle on which teppanyaki delicacies are grilled, broiled, or pan-fried. Both are luminous pieces marking the scale of the restaurant. The wall where the sushi bar is presents bas-reliefs that take inspiration from the abstraction and stylized strokes of kanji script.








