Crowley house, Houston
Carlos Jiménez- Type House Housing
- Date 2012 - 2015
- City Houston
- Country United States
- Photograph Paul Hester
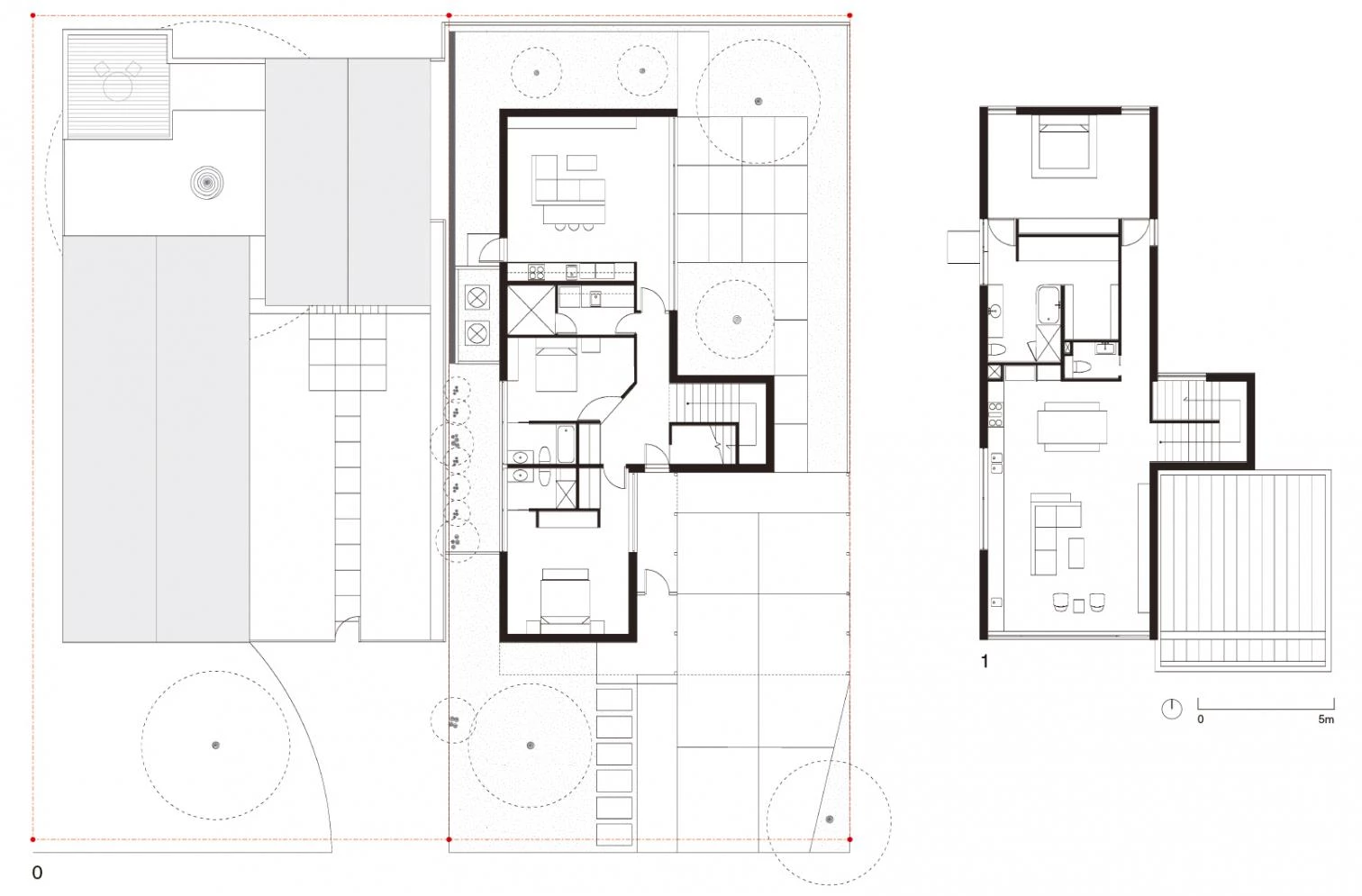
Located next to Carlos Jiménez Studio on Willard Street in Houston, the Crowley House undertakes another variation on an urban ensemble that the architect has been working on since 1983. Parallel to the studio, the 3,000 square foot house defines and reinforces a set of corresponding spaces between the two sites.
The two-story house consists of a lower and upper unit, independent yet linked like a duplex by a common staircase. The ground-level unit is the smallest one with two bedrooms, a media room, kitchen dining and living area. These spaces open or overlook a private courtyard and linear gardens. The upper unit is an open loft-like volume spanning the entire length of the house. The views are oriented to the courtyard below, Willard Street and Houston’s skyline to the east.
Terrazzo and stone flooring underline an essential materiality present in what is already a minimally detailed house. A trellis-like open carport interlocks with the solid street elevation to become an integral composition. The main entrance to the house is placed between these two contrasting material and spatial conditions.













Superficie Building size
280 m² 3,000 ft²
Finalización Completion
2015
Cliente Owner
Tim Crowley
Arquitecto Architect
Carlos Jiménez Studio, Houston, Texas
Equipo Project team
Carlos Jiménez (director, autor del proyect principal, project designer); You Chia-Lai, Naili Qi , E.Kerry Joyce
Consultores Project consultants
Bradley R. Dougherty, PE., Insight Structures (estructura structure); Marlys Tokerud (mobiliario furnishings)
Contratista Contractor
Ted Anderson, Anderson Builders
Fotos Photos
Paul Hester, Hester+Hardaway Photographers