Casa Chadwick, Houston
Carlos Jiménez- Tipo Vivienda Casa
- Fecha 1990 - 2006
- Ciudad Houston
- País Estados Unidos
- Fotografía Paul Hester
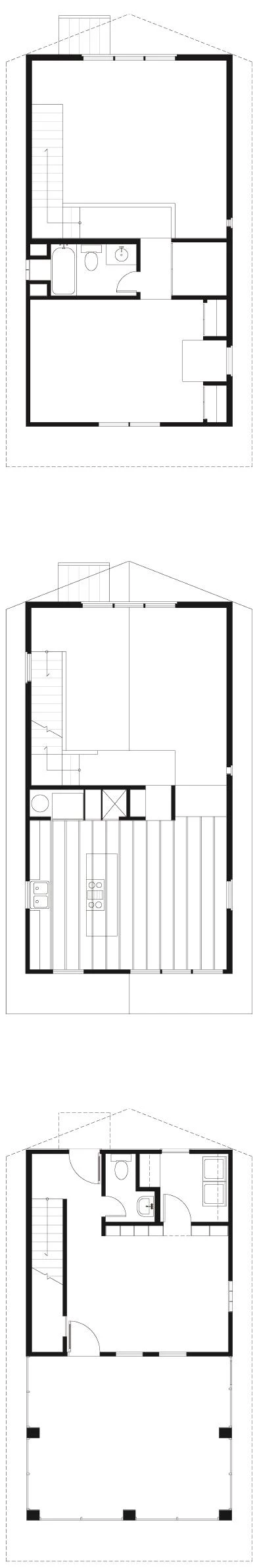
La casa, de tres alturas y estructura de entramado de madera, se levanta en medio de una parcela de 10 metros de ancho y 40 de largo situada en lo que hace unas décadas era una zona marginal del barrio de Houston Heights. Orientado a lo largo de su eje principal norte-sur, que coincide con el de las brisas dominantes, el edificio es una especie de versión vertical de la shotgun house, la casa tradicional de la región. Organizados en tres niveles, los espacios de la vivienda se dividen en dos partes, situadas al sur y al norte. La primera contiene un porche, una cocina con comedor y el dormitorio principal, todos ellos abiertos a las vistas en diagonal sobre el espectacular perfil del downtown de Houston. Por su parte, la zona orientada al norte contiene un espacio vividero en doble altura, con vistas a un jardín y a los árboles de porte que lo rodean.
Diseñada originalmente para un solo ocupante, la casa sufrió alteraciones de calado en 2006, cuando la llegada de nuevos propietarios con nuevas necesidades obligó a transformar el porche en el dormitorio principal y añadir un garaje. Por otro lado, desde 1991 —la fecha del proyecto original—, el barrio ha prosperado y ha aumentado de densidad, con lo que se han ido perdiendo la mayor parte de sus características vistas sobre el centro urbano.










Superficie Building size
150 m² 1,600 ft²
Finalización Completion
1991, 2006
Cliente Owner
Susan Chadwick
Arquitecto Architect
Carlos Jiménez Studio, Houston, Texas
Equipo Project team
Carlos Jiménez, (director, autor del proyecto principal, project designer); Dominique Brousseau, Mario Alcántara
Consultores Project consultants
Jon Monteith, Structural Consulting Co., Houston, Texas (estrucura structure)
Contratista Contractor
Carlos Jiménez Studio
Fotos Photos
Paul Hester, Hester+Hardaway Photographers