Museo Universitario, Alicante
Alfredo Payá Benedito / Noname 29- Tipo Cultura / Ocio Museo Educación Universidad
- Material Madera Vidrio Hormigón Piedra Travertino
- Fecha 1994
- Ciudad Alicante
- País España
- Fotografía Miguel Ángel Valero
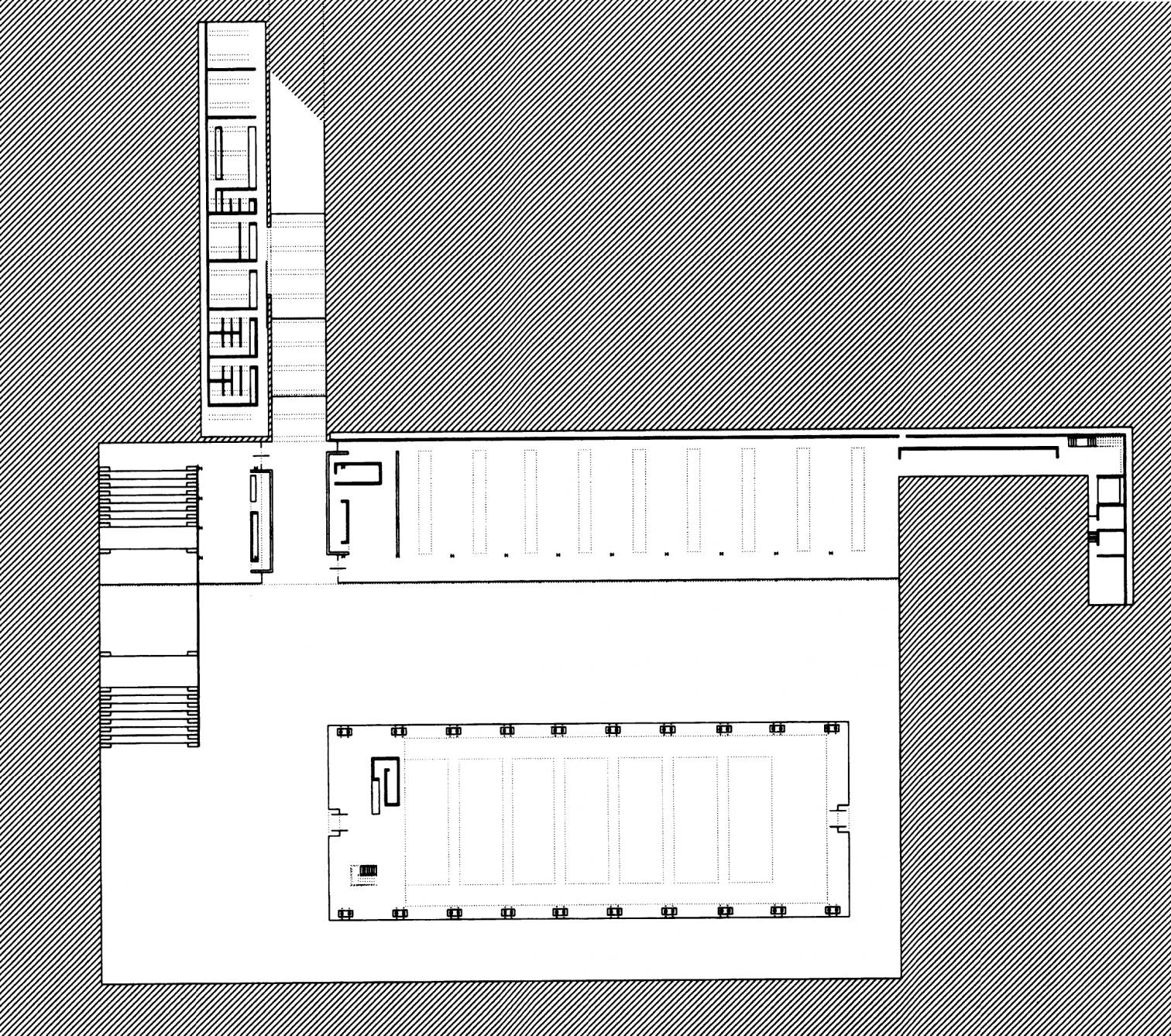
El trazado regular del nuevo recinto de la Universidad de Alicante encuentra en la autovía que lo circunda su condición de borde más comprometida. El emplazamiento del Museo Universitario en una parcela colindante con la misma, entre la Escuela de Negocios y una zona periférica de aparcamiento, determinó la solución construida. El ruido constante de la carretera en esa suerte de tierra de nadie en la que el edificio se inserta demandaba la creación de un entorno digno, apropiado para acoger este uso singular en un contexto fundamentalmente docente. La lámina de agua que cubre todo el solar se interrumpe con un gran vacío para alojar una escueta caja de madera. Como las fortificaciones o los templos orientales, el edificio crea su propio dominio, presentándose inaccesible y lejano desde el campus.


El edificio se levanta junto a una autopista, de la que era necesario distanciarse creando un entorno sereno. En el estanque que cubre el solar se excava un patio para alojar el prisma de madera del museo.
El estanque que caracteriza el lugar se concibe como aproximación escenográfica al museo. Uno de los ejes principales de la trama del campus se prolonga en una escalinata tendida que desciende hasta hundirse bajo aquél para llegar al patio, donde se descubre por sorpresa el prisma intuido desde la distancia. El patio es el elemento articulador de las piezas que acogen las distintas funciones. En su perímetro, bajo el aljibe, se sitúan las salas polivalentes iluminadas por una sucesión de lucernarios que parecen flotar en la superficie líquida. Un auditorio cubierto y otro al aire libre, que se pueden fundir en un solo ámbito plegando su frente común, terminan de colmatar esta crujía, imperceptible desde fuera. El volumen de madera domina el conjunto y alberga la colección permanente. Su levedad, enfatizada en una visión remota por el plano de agua, queda subrayada en el patio con el acristalamiento sin carpinterías de la planta baja.




Constructivamente, la sala exenta se plantea como un caparazón de doble hoja con un centro destinado a las instalaciones y las pasarelas de mantenimiento, que contienen además los sistemas audiovisuales que permitirán transformar el interior del museo en una gran superficie de proyección. Un panel fenólico de madera de eyong cierra las fachadas, cuyas caras internas se trasdosan con un tablero acabado en haya, delimitando un espacio dividido por mamparas modulares. La topografía tallada que enmarca este contenedor se fija con muros de hormigón aplacados en travertino. La misma piedra se usa en todos los pavimentos, a poro abierto en el patio y apomazado en el interior. La estructura y los acabados se someten a una rigurosa modulación que facilita la prefabricación y sugiere un orden sereno para las exposiciones universitarias.

Una rampa escalonada conduce hasta el patio, rodeado por las salas polivalentes situadas bajo la lámina de agua. Con un auditorio al aire libre, este recinto es un lugar de encuentro.






Cliente Client
Universidad de Alicante
Arquitecto Architect
Alfredo Payá
Colaboradores Collaborators
J. G. Romero, M. Orts, P. Queralt, C. Sentieri; F. Cortés, M. Gallud, A. Morata (aparejadores quantity surveyors)
Consultores Consultants
P. Sirvent (estructura structure); J. Mir, A. Sánchez (instalaciones mechanical engineering)
Contratista Contractor
Auxini
Fotos Photos
Miguel Ángel Valero, Alfredo Payá