Instituto de Investigación, León
Javier Fresneda Javier Sanjuán- Tipo Educación Cultura / Ocio
- Material Aluminio Piedra Vidrio
- Ciudad León
- País España
- Fotografía Eduardo Sánchez Ángel Baltanás
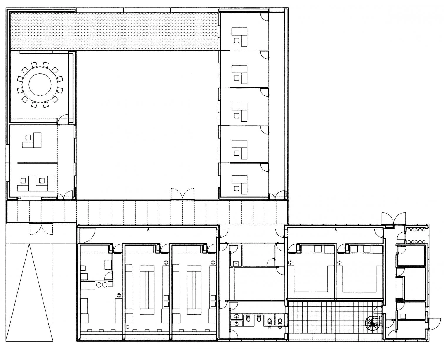
Este proyecto obtuvo el primer premio en un concurso de ideas que la Universidad de León convocó en septiembre de 1996 para la sede del Instituto de Investigación y Medio Ambiente, y cuyas premisas eran economía, optimización de recursos, funcionalidad y bajo coste, todo ello sin renunciar a la representatividad del uso investigador y docente, y a la posibilidad de añadir un segundo nivel en el futuro. Durante el desarrollo del proyecto de ejecución el contacto directo con los futuros usuarios concretó la definición de las necesidades y provocó pequeños ajustes, aunque la ejecución se ha ceñido sustancialmente a la propuesta premiada. El solar de la actuación, llano y de perímetro irregular, se encuentra en el campus, junto a otros edificios actualmente en rehabilitación. El instituto se ubica en un segundo plano, constituyendo un fondo de perspectiva para la edificación existente, concentrada junto al acceso al recinto.


El instituto se ubica en un segundo plano, creando un fondo de perspectiva para la edificación existente. Los tres prismas que albergan el programa expresan las distintas necesidades técnicas y funcionales del centro.
El programa se distribuye en tres cuerpos prismáticos que han sufrido deslizamientos en el plano horizontal y en direcciones ortogonales, aunque la pequeña elevación que se produce al colocarlos sobre un zócalo también sugiere un movimiento en el eje vertical. Las operaciones de vaciado y maclado se emplean como recursos volumétricos que abren patios y generan recorridos paralelos en cámaras estancas de acceso a los laboratorios. Como eje principal y articulador se utiliza el volumen de los laboratorios, revestido de aluminio para conseguir una imagen más tecnológica y liviana. Aquí se reúnen las zonas de investigación y experimentación, y las que requieren el acceso a las instalaciones, registrables a través del falso techo del vestíbulo. El retranqueo de los laboratorios mejores respecto a la fachada genera un nuevo vacío, en un segundo grado de apertura al exterior para este bloque con vocación más representativa.


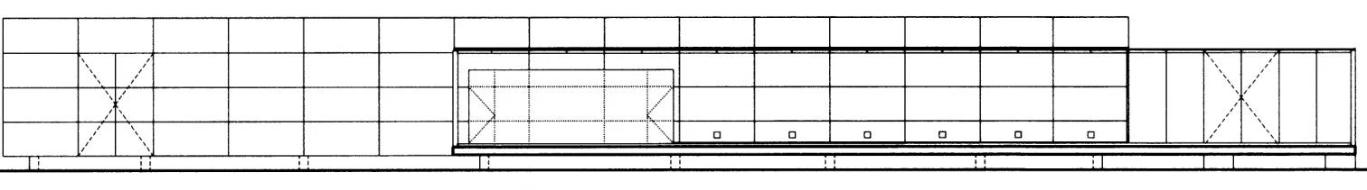
Alzado oeste

Sección por la galería

Alzado norte

Alzado este
Los prismas de piedra albergan los usos administrativos, los despachos y la biblioteca.
Dos volúmenes de piedra de Boñar, perpendiculares al prisma principal, albergan los usos administrativos, los despachos y la biblioteca. La prolongación de estas directrices en el bloque de los laboratorios produce en éste desplazamientos que orquestan el encuentro entre piezas y jerarquizan los laboratorios, los almacenes y las zonas de servicio. El patio es un vacío, también articulador, que se prolonga interiormente a través del vidrio y permite la segregación de zonas de uso más reservado. Su valor como referencia visual se resalta con césped, tres prunos y una lámina de agua que penetra en la prolongación del bloque de la biblioteca y que constituye una barrera visual de separación del entorno, y física para la aproximación de curiosos.

El cerramiento de aluminio subraya el carácter tecnológico del edificio de laboratorios.





Cliente Client
Universidad de León
Arquitectos Architects
Javier Fresneda, Javier Sanjuán
Colaboradores Collaborators
Javier Herreros (arquitecto architect); Mario Sanjuán, Javier Sánchez (estudiantes students); Juan José Núñez, Francisco Palmero (aparejadores quantity surveyors); IDEE, Jorge Conde (estructura structure), Juan Manuel Espinosa, Juan Izquierdo (instalaciones mechanical engineering)
Contratista Contractor
ACS
Fotos Photos
Eduardo Sánchez & Ángel Luis Baltanás