32 VPO en San Vicente del Raspeig
Alfredo Payá Benedito / Noname 29- Tipo Vivienda
- Material Hormigón Madera
- Fecha 2015 - 2014
- Ciudad San Vicente del Raspeig (Alicante)
- País España
- Fotografía David Frutos
Promovido por el Instituto Valenciano de Vivienda, el edificio residencial de protección oficial forma parte del área de nueva creación comprendida entre las últimas construcciones del municipio de San Vicente del Raspeig y el campus de la Universidad de Alicante.


Distribuidas a lo largo de una galería elevada y una calle en la azotea, las treinta y dos viviendas dúplex cuentan con un espacio exterior asociado que funciona como vestíbulo público del espacio doméstico.

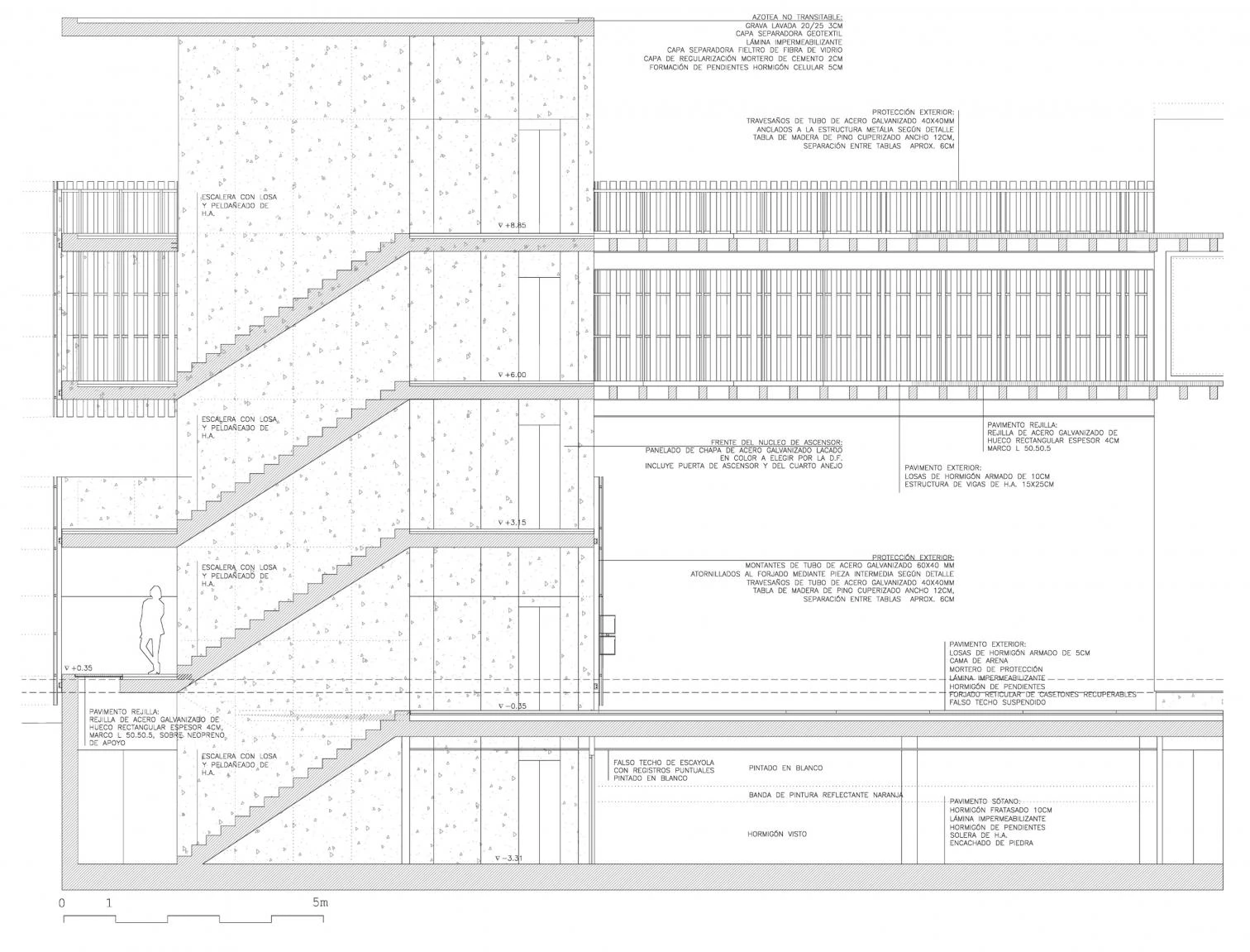
La ordenación planteada en la parcela consistía en dos bloques paralelos enlazados por los espacios de comunicación. Sin embargo, el proyecto modifica esta distribución mediante un estudio de detalle que propone deslizar entre sí los dos volúmenes en dirección longitudinal y mejorar, de esta forma, la permeabilidad entre la calle y el espacio interior. Así, los extremos quedan libres para alojar las comunicaciones verticales, mientras que las circulaciones horizontales se desarrollan a lo largo de dos galerías elevadas en el espacio intermedio. El nivel de calle se configura como una planta abierta ocupada puntualmente por comercios, lo que permite a los viandantes atravesar el volumen en dirección transversal fomentando la relación entre el edificio y su entorno urbano.

Tanto en la galería cubierta como en el espacio de circulación de la planta baja, una serie de rejillas de acero galvanizado situadas en suelos y techos favorece la iluminación y la ventilación natural.


La disolución del límite entre lo público y lo privado es, precisamente, el tema principal de la investigación desarrollada en el proyecto que aprovecha la construcción de las viviendas para generar espacios colectivos capaces de catalizar la interacción entre los usuarios y los ciudadanos. Los porches, los patios, las galerías o las calles cubiertas crean microclimas con diferentes grados de luces y sombras que complejizan la transición entre el interior y el exterior favoreciendo los encuentros entre los vecinos. Así, la secuencia convencional al entrar en casa, desde la acera a un portal y desde el ascensor al rellano, se sustituye por una sucesión de zaguanes al aire libre y calles elevadas donde poder charlar, organizar una merienda, jugar a la pelota o montar en bicicleta.



Todas las viviendas se desarrollan en dos alturas. A partir de un mismo nivel de acceso, los pisos crecen hacia arriba o hacia abajo alternativamente, situando las estancias de día en primer lugar y reservando las habitaciones para las zonas más íntimas. Esta estrategia de apilamiento permite minimizar el número de corredores, distribuyendo dieciocho de las treinta y dos viviendas a lo largo de una calle en la azotea y el resto en una galería elevada cubierta. Así, cada unidad residencial está vinculada a un espacio común al aire libre y, además, las viviendas del nivel superior cuentan con un patio privado. Gracias a la disposición de los bloques y a su relación con las zonas libres, todas las estancias tienen iluminación natural y ventilación cruzada.




Cliente Client
Instituto Valenciano de la Vivienda S.A.
Arquitecto Architect
Alfredo Payá Benedito
Colaboradores Collaborators
Raquel Del Bello, Gema Vicente, Arturo Calero Hombre, Sonia Miralles Mud, Vicente Pascual Fuentes (arquitectos architects); Marcos Gallud García, Natalia Velasco Velázquez (arquitectos técnicos quantity surveyors); Alfredo Payá Benedito, Natalia Velasco Velázquez, Marcos Gallud Garcia (dirección de obra site supervision)
Consultores Consultants
Juan Jesús Gutiérrez Sánchez (instalaciones y climatizaciónn mechanical engineering and air conditioning); Beatriz Vera Payá (interiorismo interior design)
Contratista Contractor
Cántera Vértice S.A.
Superficie construida Floor area
6.063 m² (3.549 m² viviendas housing)
Presupuesto Budget
2.761.103 euros; 455,40 euros/m²
Fotos Photos
David Frutos