Museo de las Colecciones Naturales, Alicante
COR Architecture + Design- Tipo Cultura / Ocio Museo Universidad Educación Rehabilitación
- Material Cerámico Madera
- Fecha 2018
- Ciudad Alicante
- País España
- Fotografía David Frutos
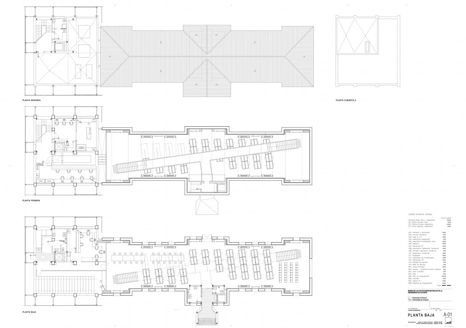
Con oficinas en Alicante, Elche y Albacete, el estudio COR Asociados Arquitectos —liderado por Miguel Rodenas y Jesús Olivares— ha sido el encargado de rehabilitar uno de los edificios más antiguos de la Universidad de Alicante para que albergue sus colecciones naturales. Con una superficie total de 797 metros cuadrados y un presupuesto de 1.334.945 euros, el complejo edificatorio está compuesto por una nave alargada con cubiertas a dos aguas y una construcción racionalista adosada en la década de 1970, que contiene de forma independiente los nuevos usos requeridos de exposición e investigación, respectivamente.
El exterior de la nave se renueva sin alterar su tipología y sistemas constructivos, manteniendo la escala en la modificación de la cubierta. Su interior está envuelto con paneles de madera de eucalipto, y está atravesado diagonalmente por una pasarela liviana que incorpora muestras temporales. El mobiliario de archivo-exposición es móvil para permitir la reconfiguración del espacio según las necesidades de los eventos. Por otro lado, el edificio anexo destinado a los laboratorios presenta una celosía cerámica que busca resolver su fricción con la antigua nave.

El complejo está formado por un pabellón de los años 1940 cuyo exterior únicamente se renueva, y un edificio racionalista, adosado en los 1980, que se cubre con una celosía cerámica a fin de dialogar con la antigua nave.




La antigua nave, cuyo interior está envuelto en paneles de eucalipto y atravesado diagonalmente por una pasarela, alberga el museo; el volumen anexo, cubierto con la celosía cerámica, está destinado a laboratorios.







Cliente Client
Universidad de Alicante
Arquitecto Architect
COR Asociados Arquitectos
Colaboradores Collaborators
María-Elia Gutiérrez-Mozo (arquitecta architect)
Superficie Floor area
797 m²
Presupuesto Budget
1.334.945 €
Fotos Photos
David Frutos