Museo Provincial, Zamora
Mansilla + Tuñón- Tipo Museo Cultura / Ocio
- Material Zinc Piedra Caliza
- Fecha 1992 - 1996
- Ciudad Zamora
- País España
- Fotografía Luis Asín Hisao Suzuki
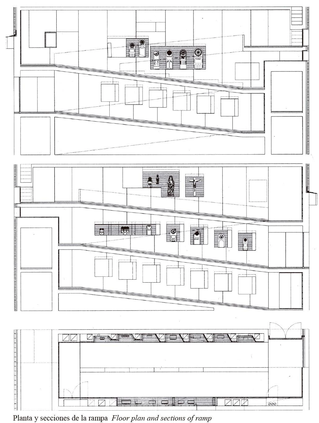
Situado bajo el desplome de la muralla que mira al Duero, el museo se presenta a la ciudad de Zamora como un cofre que contiene sus joyas y su memoria. Su perfil cúbico y rotundo, encajado en medio de una manzana en pendiente y de topografía accidentada, se ofrece como contraste con el caserío decimonónico y con los volúmenes del palacio del Cordón y la iglesia de Santa Lucía que lo rodean. Se trata de una edificación que renuncia a la composición académica axial acomodándose entre los edificios existentes, casi tocándolos, de forma que son los intersticios entre éstos y las rocas los que dan valor a lo construido. El resultado es un volumen compacto que atrae la atención hacia las vistas fragmentadas y en escorzo, dejando apenas entrever lo macizo. El único plano que se aprecia completo y permite entender el museo como un objeto autónomo en la trama urbana es la cubierta con los lucernarios, que puede contemplarse desde la parte alta del casco histórico.


La voluntad de aproximar la colección a esta parte de la ciudad ha llevado a desplazar el acceso desde la plaza de Santa Lucía hacia la cuesta de San Cipriano, elevando la cota de entrada. La creación de este nivel intermedio marca el punto de partida fundamental para el desarrollo del programa: por debajo del mismo se agrupan las áreas de almacenamiento y todas aquellas actividades que se realizan con el museo cerrado, mientras que en las plantas altas se sitúan las salas de exposición, iluminadas cenitalmente y conectadas mediante un recorrido en espiral configurado por una rampa de doble tramo. En estas salas se exponen restos arqueológicos, documentos y obras desde la prehistoria, la era romana y la Edad Media hasta la época moderna. Una vitrina articulada aloja el conjunto más preciado del museo, el denominado tesoro de Arrabalde. En un pabellón aparte, y ligado a las zonas de almacenaje, se sitúa el área de restauración, separada por un patio del cuerpo principal y con acceso independiente desde el callejón de San Miguel.


El edificio se ha construido con muros y losas de hormigón blanco. La fachada, de piedra arenisca de las canteras salmantinas de Villamayor, presenta un despiece de pequeños sillares de 15x15x30 centímetros —dimensiones de las piezas de adobe típicas en las construcciones tradicionales de la zona— sujetos mediante anclajes de acero inoxidable. Los lucernarios se resuelven con una cubierta de chapas de zinc, plegadas mediante engatillados de corredera. Los pavimentos interiores y exteriores, así como las celosías que separan las estancias interiores, se han realizado en madera de teca.
















Cliente Client
Ministerio de Cultura
Arquitectos Architects
Luis M. Mansilla, Emilio Tuñón
Colaboradores Collaborators
Andrés Regueiro, María Linares, Fernando García-Pino, Josefa Blanco, María Ochoa; Santiago Hernán, Juan Carlos Corona (aparejadores quantity surveyors)
Consultores Consultants
J.G. Ingenieros (instalaciones mechanical engineering); Alfonso Gómez Gaite (estructuras structural engineering); Grupo Entorno (museografía, mobiliario museography, furniture)
Contratista Contractor
FCC Construcción
Fotos Photos
Luis Asín, Hisao Suzuki