Archivo y Biblioteca Regional, Madrid
Mansilla + Tuñón- Tipo Sede administrativa Biblioteca Rehabilitación Institucional Cultura / Ocio
- Material Aluminio U-glass Vidrio
- Fecha 1994 - 2002
- Ciudad Madrid
- País España
- Fotografía Roland Halbe Luis Asín
- Marca JG Ingenieros Carandini Dragados
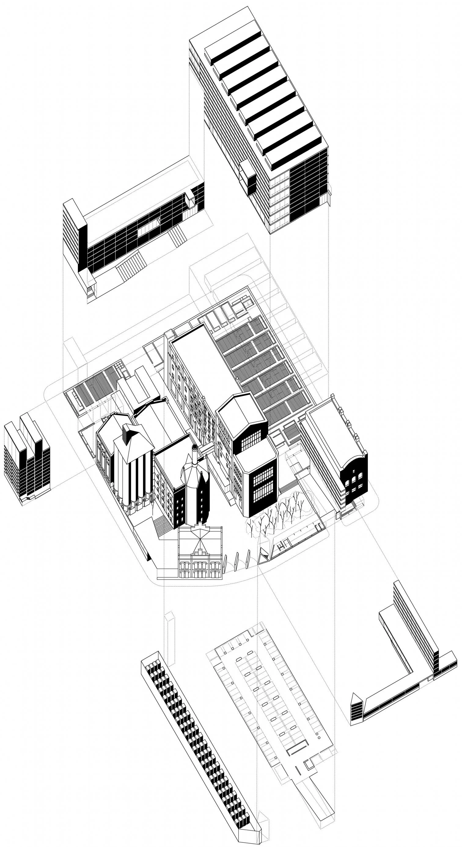
Muy próximo a la estación de Atocha, el recinto de la antigua fábrica de cerveza El Águila es un testimonio del pasado reciente del barrio de Arganzuela, un distrito hoy residencial del sur de la capital y en otro tiempo caracterizado por su tejido industrial. Sus edificios principales, que empezaron a levantarse en 1912, son de estilo neomudéjar, y entre las construcciones destaca por su potente envergadura un cuerpo de doce silos metálicos. Catalogado como bien patrimonial, este enclave fue objeto de un concurso para convertirse en un Centro de las Artes y la Cultura que prolongase hacia el sur el eje del Prado. Fruto de aquella convocatoria y de una redefinición del programa, la vieja fábrica alberga hoy el Archivo y la Biblioteca de la Comunidad de Madrid.

El recinto de la fábrica de cervezas El Águila en el distrito de Arganzuela se coloniza con nuevas construcciones, que se entreveran con los viejos edificios de ladrillo y los silos de cebada para crear un enclave documental.



Los antiguos espacios libres de la fábrica son claves en la definición del conjunto, potenciando el diálogo entre la robustez de las naves cerámicas existentes y la ligereza de las nuevas piezas.
A los espacios libres de la manzana que comprende la factoría —delimitada por las calles General Lacy, Bustamante, Vara del Rey y Ramírez de Prado— se les ha otorgado tanto valor como a lo construido a la hora de definir sus nuevas trazas y multiplicar las posibilidades de recorrido. Como dos manos que se entrelazan, los edificios existentes y los que se han incorporado establecen estrechos vínculos entre sí y con los vacíos que los envuelven. Y como manos entrelazadas se definen también en este proyecto el Archivo y la Biblioteca: una mano protege el patrimonio histórico, mientras la otra cobija el acervo del presente y el futuro. Hormigón blanco, lamas de fundición de aluminio o vidrio de perfil en U, todos ellos materiales de factura industrial, definen las piezas que se incorporan a lo que ya es una factoría cultural.


Sección por la biblioteca Section through the library

Sección transversal del conjunto Cross section of the complex
Situado en la parte oriental de la parcela y con casi 30.000 metros cuadrados, el archivo se organiza en tres módulos bien diferenciados: el edificio de depósitos, de nueva construcción, se eleva seis plantas para custodiar los documentos en 100 kilómetros lineales de estanterías rodeadas por una doble fachada translúcida; el pabellón de ingresos, también nuevo, reúne los talleres de restauración y tratamiento documental; y la antigua nave de cocción alberga oficinas y el área de atención al público. Un patio arbolado separa este último módulo del cuerpo de la cafetería, que junto con el caserón que acoge el Depósito Legal flanquean la entrada, en la calle Ramírez de Prado. Por su parte, la biblioteca, de 10.000 metros cuadrados, ocupa el costado occidental de la parcela, con las salas de lectura acomodadas en lo que fue la maltería, las dependencias de proceso técnico en un edificio de nueva planta y los depósitos de libros en los silos donde en otro tiempo se almacenó la cebada.






Cliente Client
Comunidad de Madrid
Arquitectos Architects
Luis M. Mansilla, Emilio Tuñón
Colaboradores Collaborators
Matilde Peralta, Andrés Regueiro, Ainoa Prats, Óscar F. Aguayo, Jaime Gimeno, Fernando García-Pino, María Linares, David Nadal, Robert Reininger; Santiago Hernán, Juan Carlos Corona (aparejadores quantity surveyors)
Consultores Consultants
J.G. Ingenieros (instalaciones mechanical engineering); Alfonso Gómez Gaite (estructuras structural engineering); Grupo Entorno (fachada de aluminio aluminum facade); C&G Carandini (iluminación lighting)
Contratista Contractor
Dragados y Construcciones
Fotos Photos
Luis Asín, Roland Halbe