Museo de Bellas Artes, Castellón
Mansilla + Tuñón- Tipo Museo Cultura / Ocio
- Material Aluminio Madera
- Fecha 1997 - 2000
- Ciudad Castellón
- País España
- Fotografía Luis Asín Roland Halbe
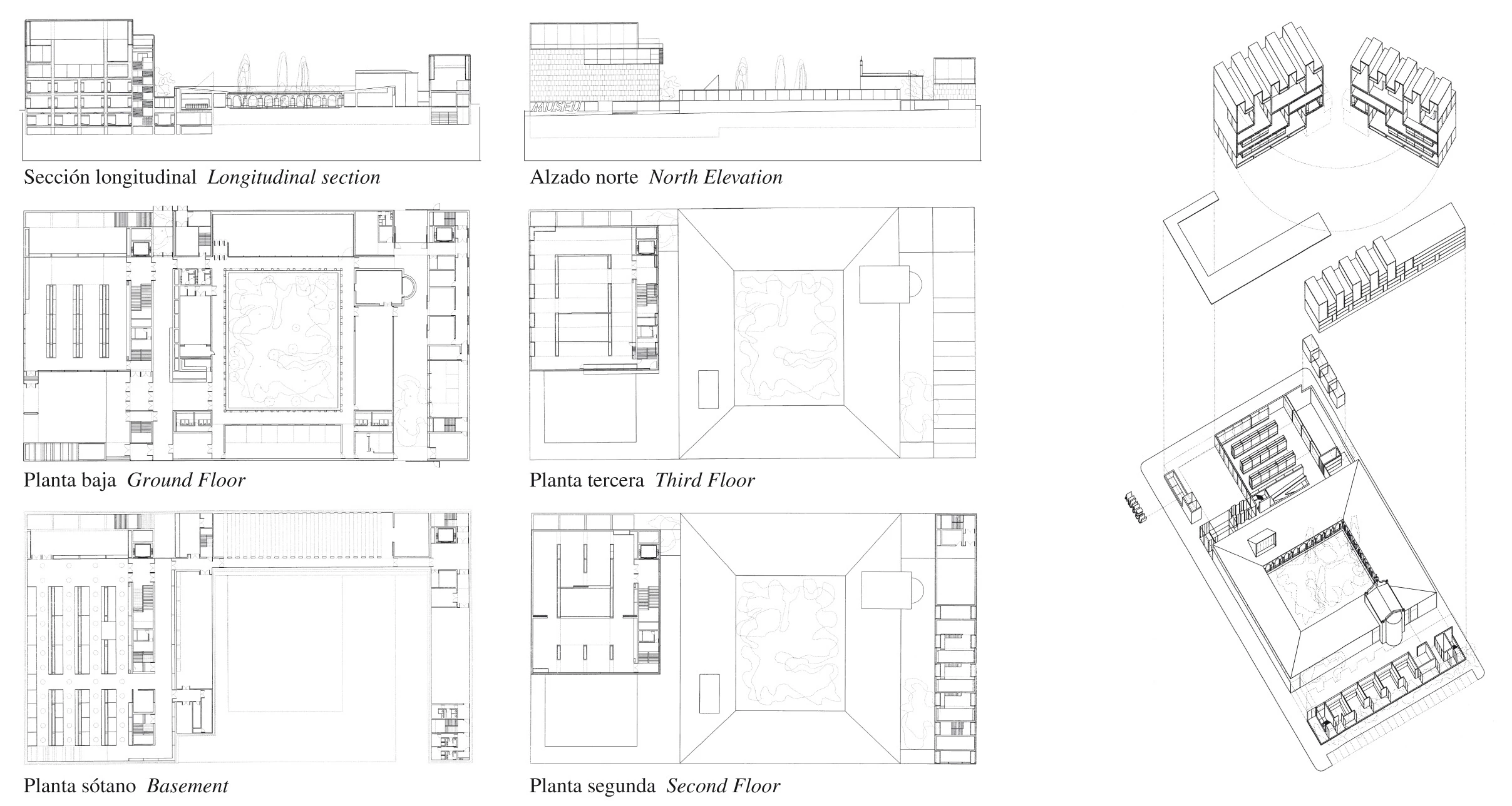
Inscrito en la trama regular del casco urbano de Castellón, el nuevo museo de Bellas Artes se levanta sobre los restos del antiguo colegio Serra Espadá, ocupando casi por entero el solar. La división canónica en cuatro bloques de usos —exposición, administración, talleres y almacenes— llevó a distribuir el programa en tres cuerpos vinculados por un zócalo enterrado para establecer un gradiente de privacidad entre la zona pública situada al este y el área de acceso restringido, dedicada a los talleres de restauración que configuran el límite oeste. Un claustro ajardinado —levantado en 1936— ocupa el centro de la actuación, articulando a su alrededor las exposiciones temporales, el auditorio, la cafetería, la biblioteca y las oficinas, como una suerte de bisagra entre las áreas de exposición y restauración. Un semisótano de almacenes y cuartos de instalaciones vincula bajo rasante los cuerpos que hacen explícito este orden funcional.


El museo anuncia su presencia mediante la silueta dentada de los lucernarios que rematan la cubierta del cuerpo de exposiciones y las grandes letras extruidas que definen uno de los flancos del patio de acceso.
Como un cofre que custodia los tesoros de la ciudad, una coraza hermética y cúbica se erige en el flanco este de la parcela junto al patio que acoge la entrada de visitantes, reuniendo en su interior las cuatro áreas temáticas del museo: cerámica, bellas artes, artesanía popular y fondos de arqueología. Distribuidas a lo largo de cinco plantas, las salas se conectan entre sí mediante una cascada de vacíos de doble altura que cose en diagonal la sección de este cuerpo. Al recorrer cada nivel, el visitante se ve confrontado de forma casi simultánea con tres escalas distintas: la de las salas entre forjados, de 3,30 metros de altura libre, la del vacío de dos plantas, de 6,90 metros, y la que ofrece la visión diagonal de la totalidad del edificio. Como coronación de esta secuencia espacial, una sucesión de lucernarios paralelos cubre la última planta, confiriendo a este cuerpo el perfil recortado que lo identifica como mascarón de proa del proyecto. Como coronación de esta secuencia espacial, una sucesión de lucernarios paralelos cubre la última planta, confiriendo a este cuerpo el perfil recortado que lo identifica como mascarón de proa del proyecto. La misma silueta dentada remata el cuerpo esbeltode talleres que configura el límite opuesto de la parcela.

La coherencia formal de las distintas partes del museo se confía a la retícula de 7,30 por 6,60 metros común a plantas y secciones. La definición constructiva insiste en la idea del edificio como cofre o estuche, encerrando su interior cálido de madera dentro de una envolvente dura de piezas de fundición de aluminio. Como el distintivo que identificaba en los ladrillos romanos el tejar del que procedían, todas las piezas estriadas del cerramiento llevan grabado el nombre del edificio al que van destinadas: Museu de Belles Arts, un nombre que se repite en las letras extruidas de grandes dimensiones que sustentan la marquesina de entrada.







Una secuencia diagonal de espacios de doble altura relaciona los distintos niveles, confrontando al visitante con tres escalas a la vez: la de las salas, la del vacío entre plantas y la de la totalidad de la sección.


Con el mismo principio con el que se entrelazan los lucernarios de cubierta se ensamblan también los listones de madera de iroko con los que se construyen las peanas, los bancos y las vitrinas de exposición.

Cliente Client
Castellón Cultural
Arquitectos Architects
Luis M. Mansilla, Emilio Tuñón
Colaboradores Collaborators
Andrés Regueiro, Clara Moneo, Matilde Peralta, María Linares, Jaime Prior, Andrés Rojo, Félix Larragueta, David Nadal, Fernando García-Pino, Jaime Gimeno, Katrien Vertenten, Gregory Peñate, Óscar F. Aguayo; Santiago Hernán, J. Carlos Corona (aparejadores quantity surveyors)
Consultores Consultants
J.G. Ingenieros (instalaciones mechanical engineering); Alfonso Gómez Gaite (estructuras structural engineering); Grupo Entorno (montaje fachada de aluminio, mobiliario aluminum facade assembly, furniture); C&G Carandini (iluminación lighting)
Contratista Contractor
FCC Construcción
Fotos Photos
Luis Asín, Roland Halbe