Centro de Natación, San Fernando de Henares
Mansilla + Tuñón- Tipo Prefabricación Deporte Piscina
- Material Hormigón Policarbonato PVC
- Fecha 1994 - 1998
- Ciudad San Fernando de Henares (Madrid)
- País España
- Fotografía Luis Asín
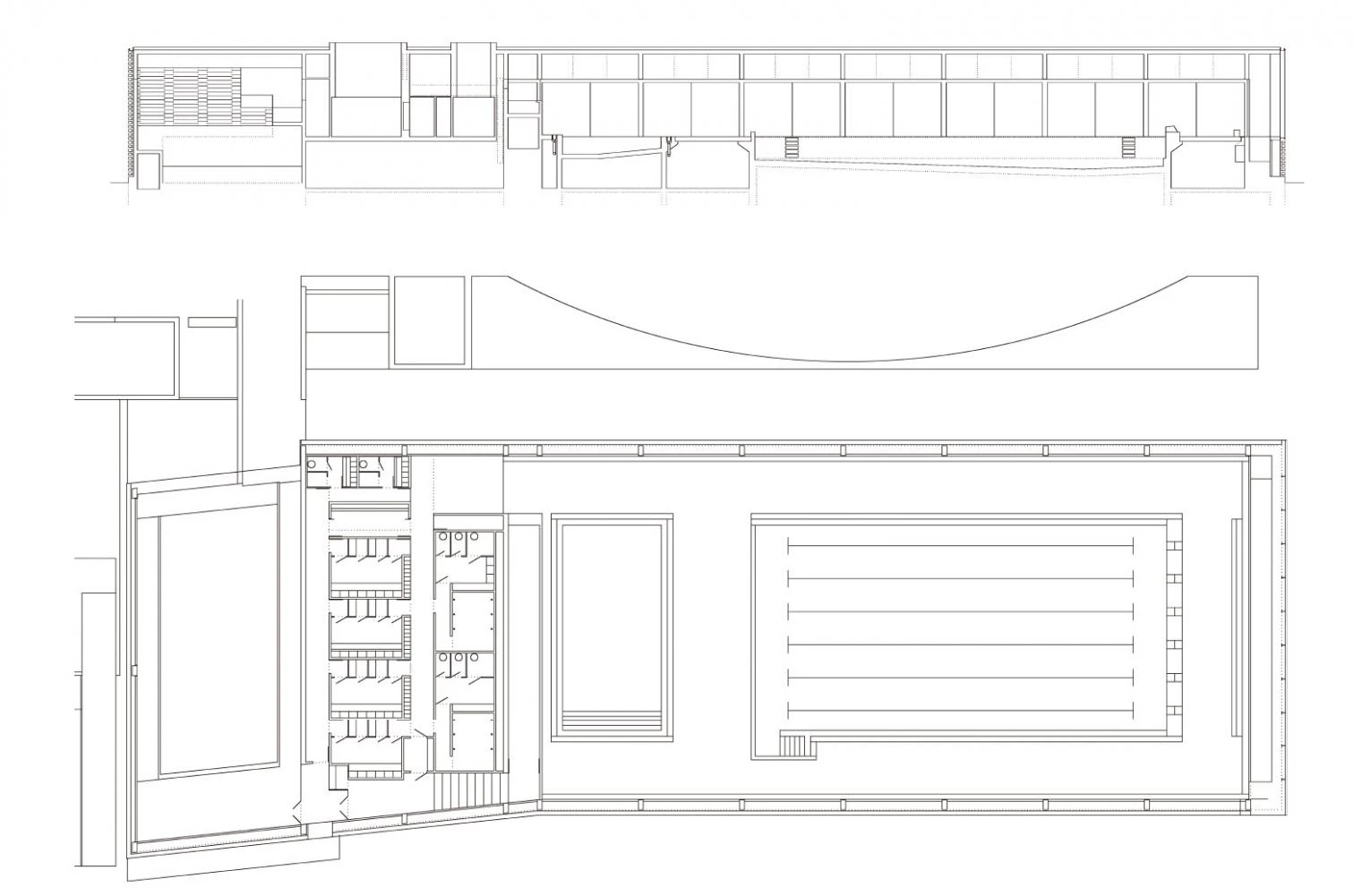
El Centro de Natación de San Fernando de Henares viene a completar una instalación deportiva municipal formada por diferentes edificaciones, unidas por el paso del tiempo. El conjunto, situado fuera del casco urbano, al noroeste de la ciudad, se desarrolla a lo largo del paseo de los Pinos, en la proximidad del río Henares.
La ampliación de un polideportivo existente con una piscina cubierta se resuelve con dos cajas de distinto carácter. La interior, de paños acristalados, encierra el volumen de la piscina. La exterior, una cesta de piezas apiladas de hormigón prefabricado, se ensancha produciendo distintos espacios entre las cajas, llegando a delimitar un ámbito semiabierto que ordena el acceso al conjunto. Desde el interior se ven los árboles cercanos, quedando así velada la vista de la piscina desde los campos exteriores, excepto al anochecer, cuando el edificio aparece como un gran fanal iluminado.
Con un esquema de funcionamiento elemental, el centro se organiza de acuerdo a una estructura lineal, disponiendo sucesivamente los diferentes elementos que lo configuran: vestíbulo de conexión, núcleo de vestuarios y aseos, vaso de enseñanza y vaso polivalente. La nave que contiene los vasos es diáfana; los elementos verticales de la estructura de hormigón están embebidos en el muro de cerramiento exterior. Una viga plana que reposa sobre las cabezas de los pilares de hormigón armado, situados entre las dos hojas que conforman el muro exterior, sirve de apoyo a las vigas prefabricadas sobre las que descansan las losas aligeradas de cubierta, cuyo borde se ata con un zuncho de hormigón. Debido a la proximidad del nivel freático, la edificación se levanta sobre el terreno, ubicando los vasos en planta primera, y dejando la planta baja para almacenamiento e instalaciones. Con esta solución se mitigan los problemas derivados de la vecindad del río Henares, concediendo a la sala principal una situación predominante respecto al degradado entorno, y propiciando una visión más nítida del horizonte y del arbolado próximo.
La nueva construcción se materializa, en el exterior, como una gran cesta formada por traviesas de hormigón prefabricado, que logra unificar los dos niveles existentes resolviendo los problemas de visibilidad de la sala con los vasos y de ventilación de las instalaciones en la planta inferior. Esta cesta de traviesas desdibuja el límite de la propia construcción; por el día, la sala y el vestíbulo toman luz del exterior a través del filtro de la fachada; por la noche, el edificio sirve de evanescente referencia desde el paseo de los Pinos.











Cliente Client
Ayuntamiento de San Fernando de Henares
Arquitectos Architects
Luis M. Mansilla, Emilio Tuñón
Colaboradores Collaborators
Andrés Regueiro, Fernando García-Pino, Matilde Peralta, David Nadal, Robert Reininger; Santiago Hernán, Juan Carlos Corona (aparejadores quantity surveyors)
Consultores Consultants
J.G. Ingenieros (instalaciones mechanical engineering); Alfonso Gómez Gaite (estructuras structural engineering)
Contratista Contractor
FCC Construcción
Fotos Photos
Luis Asín