Centro de Arte Contemporáneo MUSAC, León
Mansilla + Tuñón- Tipo Museo Cultura / Ocio
- Material Vidrio
- Fecha 2004
- Ciudad León
- País España
- Fotografía Roland Halbe Luis Asín
El MUSAC (Museo de Arte Contemporáneo de Castilla y León) ocupa un solar plano y extenso del centro de León, a pocos cientos de metros de la plaza de San Marcos y del Auditorio Ciudad de León, y no demasiado lejos de su emblemática catedral. El edificio, de una sola planta, se construye por medio de la concatenación de piezas autónomas —cuadrados y rombos con una relación elemento a elemento— que van cosiendo un distorsionado damero de ajedrez y donde los límites, lejos de ajustarse a una forma predeterminada, definen un contorno irregular y quebrado.


Sobre un gran plano urbano, el museo regala a la ciudad un espacio para el arte abierto y dinámico, suma de salas autónomas y encadenadas que se suceden entre vidrios de colores y patios y lucernarios translúcidos.

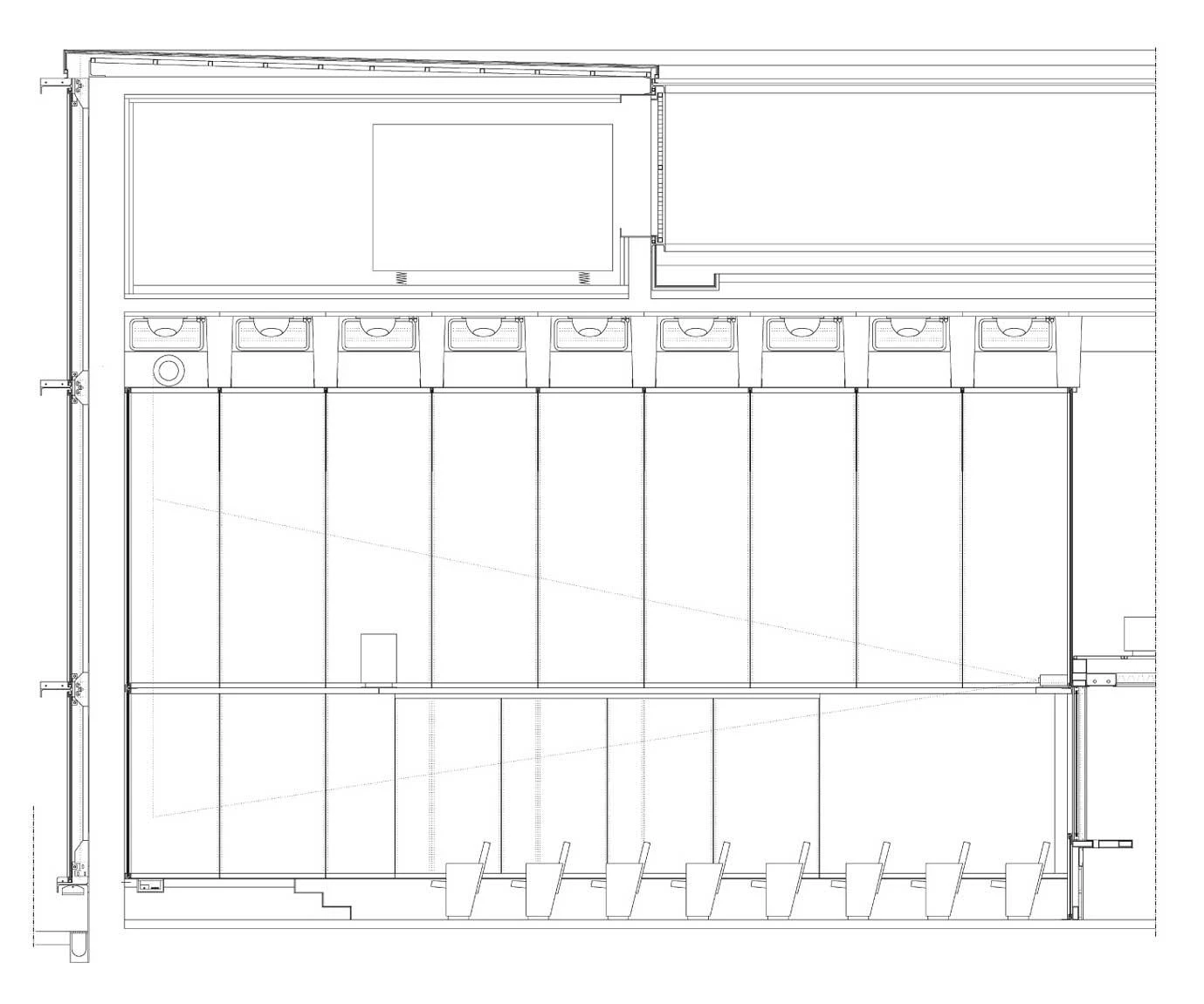
El conjunto de salas permite alojar exposiciones de diferentes tamaños y características; cada sala genera un ambiente continuo pero diferenciado espacialmente que se abre a otras salas y patios, propiciando visiones longitudinales, transversales y diagonales, en un complejo tejido tridimensional que incorpora además seis enormes lucernarios.

Sobre un gran plano urbano, el museo regala a la ciudad un espacio para el arte abierto y dinámico, suma de salas autónomas y encadenadas que se suceden entre vidrios de colores y patios y lucernarios translúcidos.

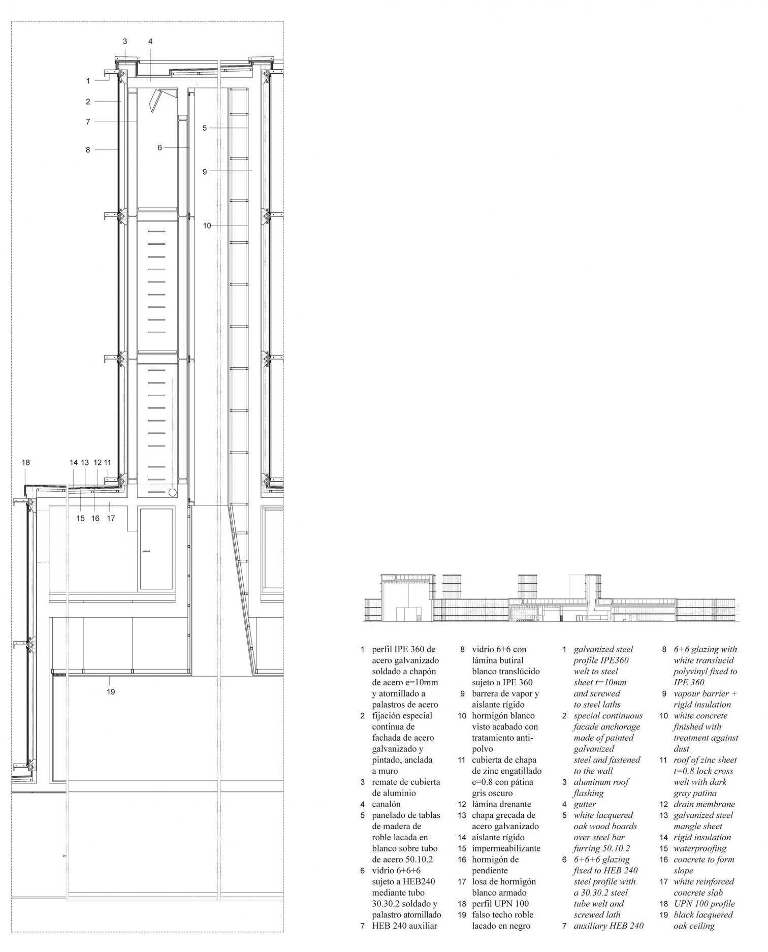
El espacio interior queda definido por muros de hormigón blanco que constituyen la estructura junto con quinientas vigas prefabricadas del mismo hormigón. Tanto los amplios ventanales que vierten a los patios como los lucernarios están realizados con una doble capa de vidrio, cuya separación construye un espacio intermedio que permite tanto su limpieza como el oscurecimiento total de las salas. La iluminación artificial, de carácter industrial, se implementa con carriles electrificados que funcionan en casos especiales. Cada nave se materializa en la cubierta —quinta fachada y reflejo de la geometría de la planta— en dos niveles: uno corresponde a las galerías registrables de las instalaciones, construidas con cinc al titanio, y el otro a los vasos entre ellas, sobre cada sala de exposiciones, que se construyen como cubiertas invertidas acabadas en grava blanca. El pavimento es de hormigón continuo.

En el exterior, el conjunto envuelve sus paños opacos con vidrios de seguridad translúcidos, coloreados y vitrificados. En el punto de entrada, donde el edificio adopta la disposición de un ágora de forma cóncava que aloja actividades y encuentros, los colores elegidos para teñir el vidrio de la fachada resultan de la digitalización de un trozo del ‘Halconero de la cacería’, la vidriera más antigua de la catedral de León, fechada en el siglo XII.





Entendido como un espacio vivo, sucesión de ambientes iguales y diferentes, abierto a la ciudad y a los ciudadanos, el MUSAC de León pretende crear un espacio donde el arte se sienta cómodo, que ayude al mismo tiempo a borrar la frontera entre lo privado y lo público, entre el ocio y el trabajo: en definitiva, entre el arte y la vida.




Cada sala de forma quebrada construye un ambiente continuo pero diferenciado espacialmente, que se abre a las otras salas y patios propiciando visiones longitudinales, transversales y diagonales.


Cliente Client
Gesturcal, Junta de Castilla y León
Arquitectos Architects
Luis M. Mansilla, Emilio Tuñón
Colaboradores Collaborators
Andrés Regueiro, Luis Díaz-Mauriño, Ainoa Prats, Jaime Gimeno, Matilde Peralta, Clara Moneo, Teresa Cruz, Óscar F. Aguayo, Gregory Peñate, Katrien Vertenten, Ricardo Lorenzana; Santiago Hernán, Juan Carlos Corona, Arcadio Conde (aparejadores quantity surveyors)
Consultores Consultants
J.G. Ingenieros (instalaciones mechanical engineering); Alfonso Gómez Gaite (estructuras structural engineering); C&G Carandini (iluminación lighting)
Contratista Contractor
Musac de León UTE (FCC/Teconsa)
Fotos Photos
Luis Asín, Roland Halbe