Iglesia en Playa Granada
Elisa Valero- Tipo Espacio de culto Religioso / Conmemorativo
- Fecha 2016
- Ciudad Motril (Granada)
- País España
- Fotografía Fernando Alda
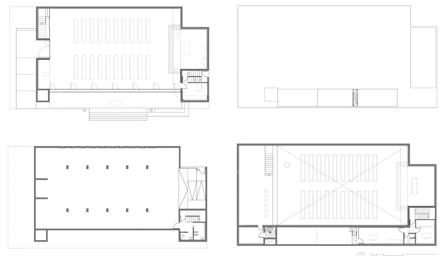
En la Costa Tropical, al sur de Sierra Nevada y muy cerca del mar, se alza una esbelta torre por la que se reconoce la presencia de una nueva iglesia, una sencilla pieza de hormigón, cercana y accesible, situada entre los árboles de un jardín abierto. Ante el reto de construir un espacio para el encuentro que remita a la trascendencia, se toma la decisión de no tratar de hacer nada nuevo, sino acudir a la tradición de los primeros templos cristianos. La arquitectura se pone así al servicio de la liturgia integrando los elementos que configuran el conjunto: atrio de acceso, baptisterio con pila octogonal, cripta, presbiterio, campanario y coro.

Una esbelta torre hace visible en la distancia la nueva iglesia; la proximidad del mar, el desnivel del terreno y un entorno de viviendas de baja altura fueron algunos de los condicionantes previos del proyecto.

El proyecto parte de una serie de condicionantes: la topografía, con un desnivel que permite el acceso a la nave desde la cota del jardín al oeste, y desde el este a la cripta que funciona como basamento; el alto nivel freático que determina la cota de suelo; la normativa urbanística, que obligaba a no superar los ocho metros de altura de las viviendas de dos plantas del entorno; el ambiente agresivo para el acero por la cercanía del mar; la importancia de la acústica para el correcto funcionamiento del edificio...
La luz es la materia prima con la que se trabaja, con tres puntos de entrada cargados de significados. El juego de escalas es otra herramienta del proyecto: el edificio prescinde de referencias de tamaño, de modo que no puede ser medido por el ojo en la distancia, sino con el cuerpo al recorrerlo; así, se accede bajo un volumen de hormigón que comprime el espacio de transición desde el exterior para provocar un contraste mayor con la altura libre del interior.

Materia prima del proyecto y con una fuerte carga simbólica, la luz penetra en el edificio a través de tres entradas: un lucernario oculto al este; unas perforaciones en el hormigón al oeste, que permiten la proyección sobre el altar de una cruz luminosa; y una celosía abierta al jardín en el lado sur.


La construcción se realiza esencialmente en hormigón. La estructura vertical es de muros armados a dos caras, la horizontal, cimentaciones y forjados utiliza un sistema nuevo —Elesdopa—, elemento de doble pared que consigue optimizar estructuralmente el funcionamiento del hormigón, que queda visto por ambas caras, y alcanzar un alto nivel de aislamiento térmico. En la cubierta de la nave principal esta losa de espesor variable evita el paralelismo entre suelo y techo que no es conveniente acústicamente. Este sistema también permite prescindir en la mayoría de los casos de otros acabados, por lo que la construcción resulta muy económica —480 euros por metro cuadrado construido—, y el mantenimiento es prácticamente nulo.
El hormigón, piedra artificial de nuestro tiempo, tiene además un valor simbólico. La desnudez de esta piedra contemporánea habla de sinceridad constructiva y de sobriedad. Valores atemporales que llevan a purificar la arquitectura de ornamento y permitir solo a la luz afectar los espacios.






Arquitecto Architect
Elisa Valero
Colaboradores Collaborators
Francisco Torres Ramírez (arquitecto técnico quantity surveyor)
Contratista Contractor
Construcciones Calderon S.L.
Superficie intervenida Floor area
891 m²
Presupuesto Budget
480 €/m²
Fotos Photos
Fernando Alda