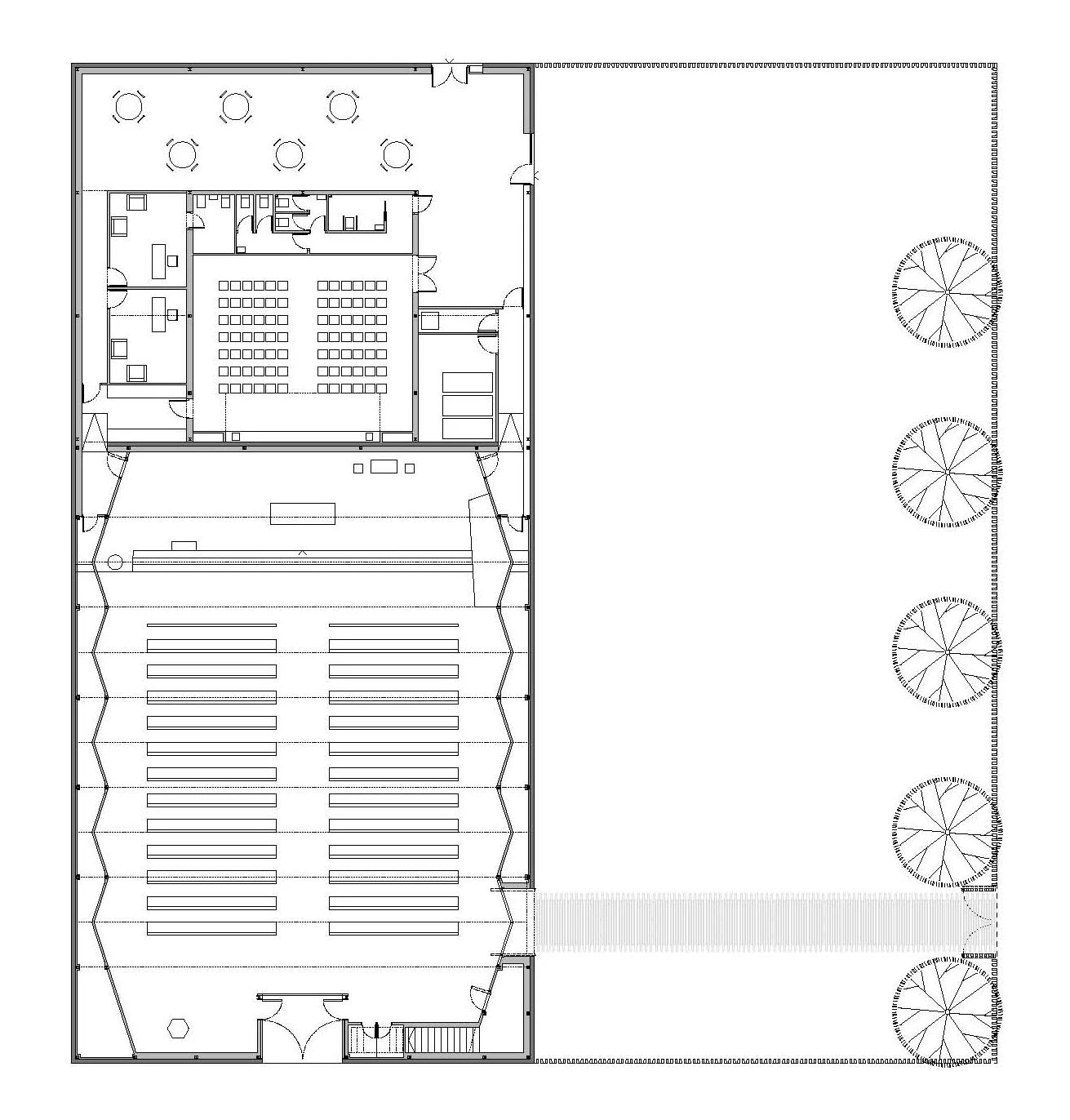
Parroquia del Espíritu Santo en Granada
Elisa Valero- Tipo Religioso / Conmemorativo Iglesia Prefabricación
- Material Hormigón
- Fecha 2023
- Ciudad Granada
- País España
- Fotografía Fernando Alda
Ubicada a las afueras de Granada, en el barrio de Almanjáyar, esta iglesia presenta una silueta dentada con los siete lucernarios que rematan su cubierta quebrada, proyectando juegos de luces y colores. Desarrollado durante catorce años, el proyecto busca generar una arquitectura sencilla y acogedora para la oración. Con capacidad para doscientas personas y un coste de 1.211.692 euros, la obra está realizada con elementos prefabricados de hormigón. Con una superficie construida de 1.106 metros cuadrados, el conjunto incluye un campanario, un amplio coro, una sacristía y salones parroquiales, adosados a la parte trasera del templo.










