Parroquia Iesu en San Sebastián
Rafael Moneo- Tipo Espacio de culto Religioso / Conmemorativo Iglesia
- Fecha 2001 - 2011
- Ciudad San Sebastián
- País España
- Fotografía Duccio Malagamba Francisco Berreteaga
Tras la Catedral de Los Ángeles, la Parroquia de Riberas de Loyola impulsada por el Obispado de Donostia-San Sebastián en el nuevo barrio que se construye en el meandro del río Urumea ha sido para el arquitecto navarro una nueva experiencia en el territorio de la arquitectura religiosa. Frente a la gran escala y al contenido simbólico que la Catedral de Los Ángeles reclamaba, en la Parroquia de Riberas de Loyola no han sido estos los retos principales, sino que en esta ocasión lo que se requería de la arquitectura era ayuda para configurar un ámbito capaz de contribuir a la vida de una comunidad que se siente cristiana en medio de una sociedad diversa.

En un entorno de bloques residenciales, la iglesia destaca por sus muros herméticos y despojados. Una vidriera de alabastro y vidrio atraviesa uno de ellos, actuando durante las horas nocturnas como símbolo de acogida.
La parroquia nace así con voluntad de servicio en el umbral de un área residencial que establece su continuidad con el resto de la ciudad por medio de un parque. En tiempos como los nuestros, la parroquia no podía ya ser el volumen que prevalece y en el que la afilada aguja de una torre hace entender la iglesia como el eje sobre el que gira inevitablemente toda la vida social. Por el contrario, su volumen compacto y denso se nos presenta en el camino, se nos ofrece con gesto abierto y amigable: la parroquia es un islote siempre dispuesto a recibir a todo el mundo, no solo a los que comparten las mismas ideas y viven una misma fe.
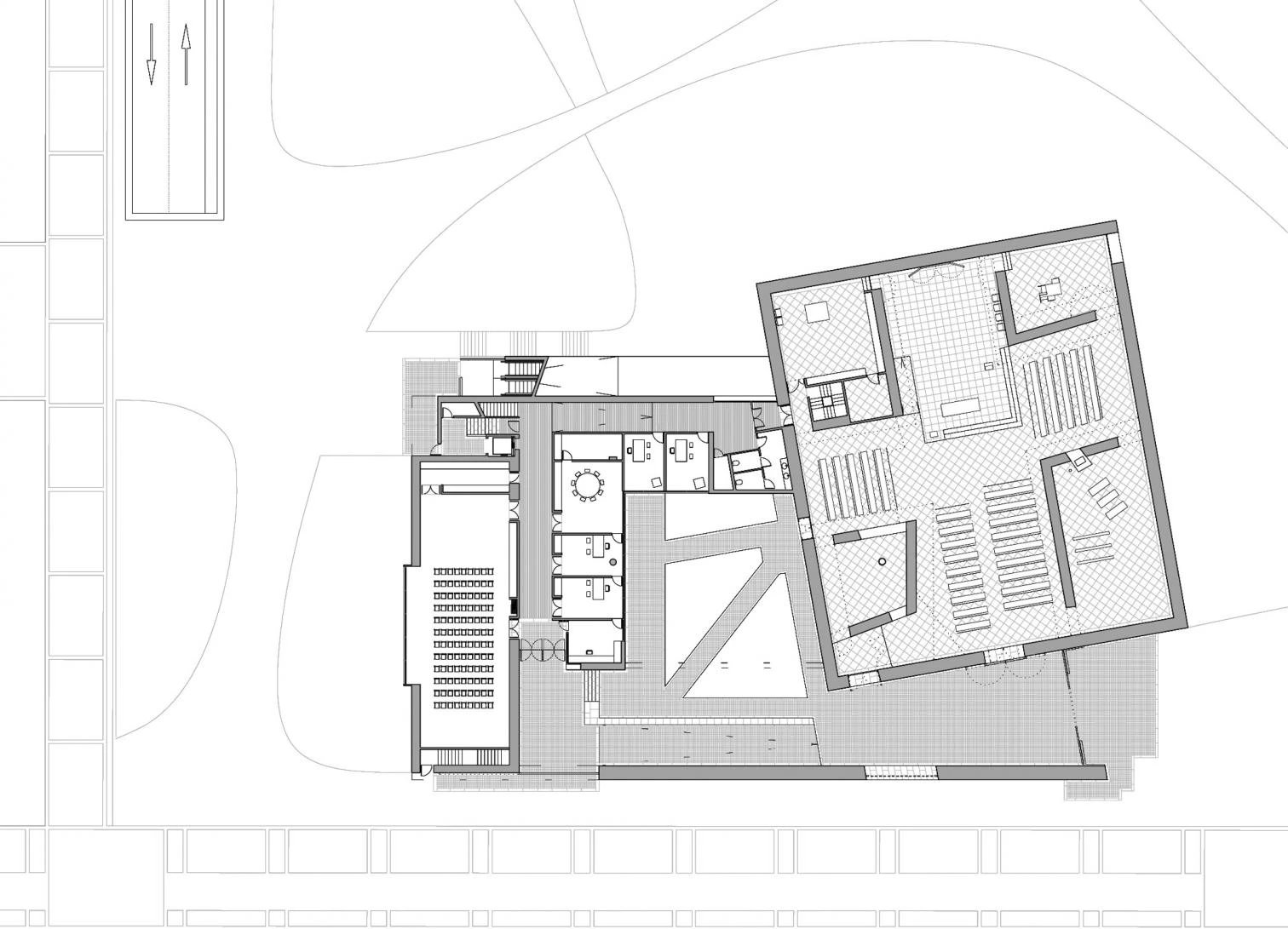
Un patio, un zaguán, aulas, seminarios y viviendas para el párroco y los coadjutores funcionan como espacios de apoyo a la iglesia. Además, para no aislarse de la vida cotidiana, en la planta baja y en contacto con el parque, se plantea un supermercado como una versión actualizada de los mercados abiertos en los pórticos. La cruz y las campanas que coronan los altos muros blancos constituyen unos símbolos austeros que ceden el protagonismo a una gran vidriera de alabastro que se convierte en un faro durante la noche. Presidida por una cruz quebrada, la vidriera está enmarcada por unas contraventanas de madera abiertas, en gesto de acogida.
El acceso a la iglesia se produce tras el filtro de un espacio que se funde con el patio y sirve como lugar de introspección y encuentro antes de acceder al interior del templo. Por su parte, el espacio dedicado a la liturgia es abstracto, cúbico y luminoso, y puede que la condición vertical del mismo ayude a verlo como no muy lejano a lo que en nuestra cultura entendemos como el espacio religioso por antonomasia: aquel que admiramos en las catedrales góticas. La cruz aparece de nuevo en la cubierta, dibujada mediante las fisuras que dejan pasar la luz natural: una metáfora construida que sugiere la manifestación de la trascendencia.












Cliente Client
Obispado de San Sebastián
Arquitecto Architect
Rafael Moneo
Colaboradores Collaborators
Eduardo Arilla (arquitecto responsable de proyecto project architect); David Goodman, Pedro Elcuaz, Isabel López, Luis Miguel Ramos, Fernando Iznaola, Gabriel Fernández-Abascal (arquitectos colaboradores collaborator architects)
Consultores Consultants
IKAUR (estructura structure); ENEKA (instalaciones services)
Contratista Contractor
Riberas del Urumea
Fotos Photos
Duccio Malagamba, Francisco Berreteaga