Iglesia, Valdemaqueda
José Ignacio Linazasoro- Tipo Espacio de culto Religioso / Conmemorativo Iglesia
- Fecha 2000
- Ciudad Valdemaqueda (Madrid)
- País España
- Fotografía Javier Azurmendi
Como tantos otros pueblos de la geografía española, Valdemaqueda presenta un caserío menudo y disperso cuya jerarquía urbana tan sólo se puede intuir a través de la clara volumetría de edificios como el ayuntamiento o la iglesia. En una cota alta de la localidad, un gran ábside prismático identifica el emplazamiento del templo tardogótico que presidía el pueblo hasta que su nave fue destruida en los años cuarenta. Al ábside —único cuerpo que permanecía en pie— fue añadida entonces una construcción enfoscada que ahora, ante su deterioro, ha sido preciso eliminar. Los únicos elementos preservados —una puerta renacentista y el ábside— han sido ensamblados en la construcción del nuevo templo, que con una arquitectura de paños desnudos recoge el testigo austero de ejemplos prerrománicos y cistercienses.


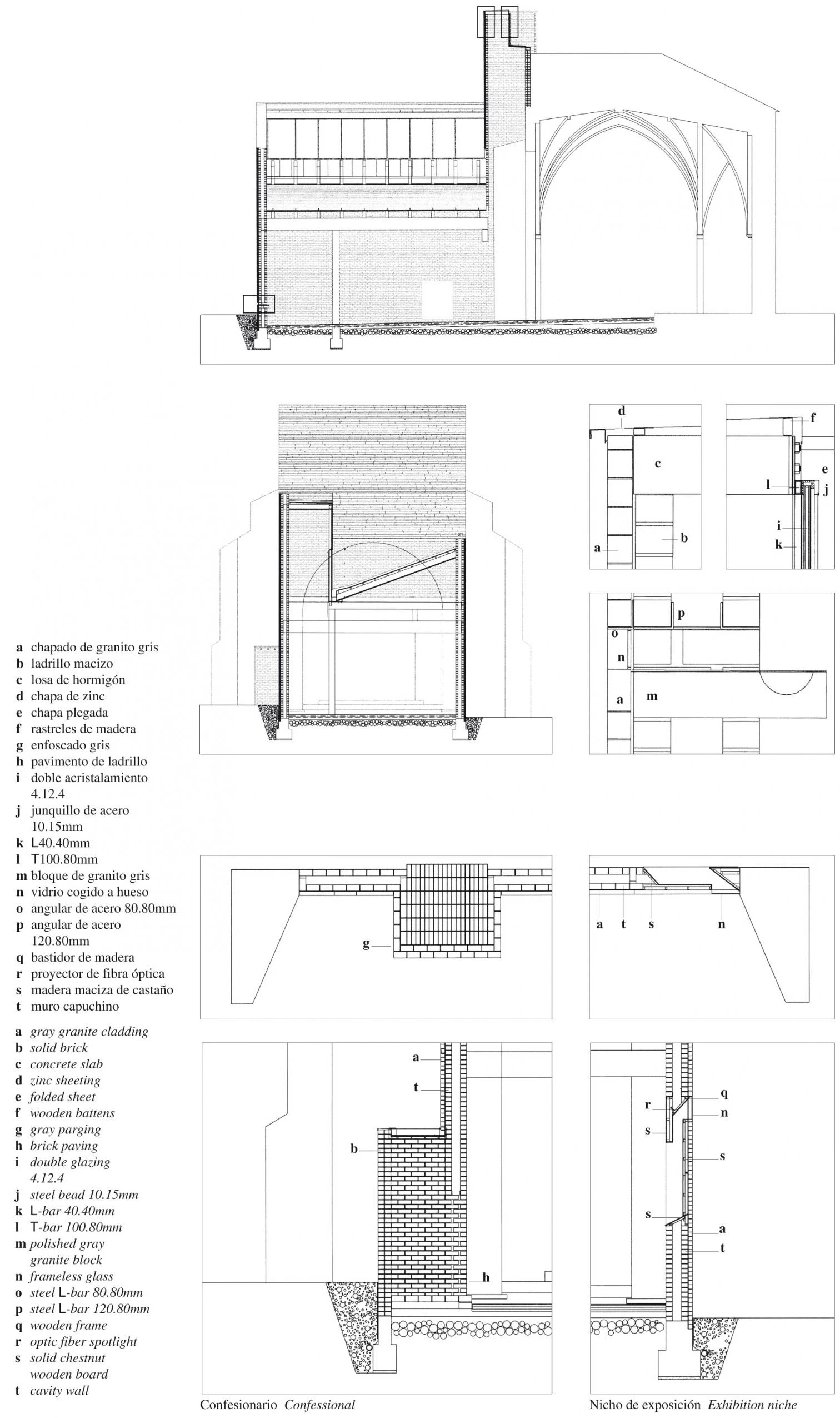
Al ábside de la iglesia existente fue añadido un prisma rematado en cubierta con dos lucernarios que iluminan la nave de forma asimétrica. Sus muros de granito sirven de fondo de la antigua puerta.
Un cuerpo de geometría cúbica acoge la nueva nave, recrecido en la cubierta con lucernarios que identifican los distintos episodios del interior. El acceso previsto en el alzado sur —fuera del eje de simetría de la iglesia— se propone ahora como inicio de un recorrido procesional hasta el altar guiado por los elementos asociados a cada momento de la liturgia. Una pila de agua bendita, cincelada en un bloque de granito, incorpora en el testero oestela única ventana con vistas del exterior, anteponiéndose a la pila bautismal que se enfrenta a la entrada. Ésta se sitúa bajo el lucernario que recorre el lateral norte de la nave para iluminar con luz rasante el muro en el que se abre el confesionario, un cuerpo que sobresale del perímetro como los contrafuertes del ábside. Un segundo lucernario de mayor altura, que ocupa todo el ancho de la iglesia, sobresale de la cubierta en el encuentro entre el ábside y la nave. Su gran dintel se percibe como un diafragma visual interior que desempeña el mismo papel que el iconostasios de las iglesias orientales. Su franja trasversal de luz precede al ámbito lúgubre del ábside existente, en el que se percibe el brillo tenue del retablo renacentista.

Junto a la pendiente del suelo, la estructura apoya con sus elementos la asimetría del recorrido. Las viguetas de madera que conforman el techo de la nave se alinean con la dirección de acceso al templo. El dintel de hormigón que las recoge bajo el primer lucernario descansa en un pilar situado junto a la pila bautismal para reforzar este foco visual. Como si se tratara de un objet trouvé, la puerta de la antigua iglesia se superpone a los muros de doble hoja de ladrillo del cerramiento, rematando una construcción en la que la textura reemplaza al ornamento.





Cliente Client
Comunidad de Madrid
Arquitecto Architect
José Ignacio Linazasoro
Colaboradores Collaborators
J. M. García, N. Polli, D. Scardua
Contratista Contractor
Comsa
Fotos Photos
Javier Azurmendi