Centro Can Zariquiey
Josep Miàs- Tipo Salud
- Fecha 2015 - 2014
- Ciudad Arenys (Barcelona)
- País España
- Fotografía Adrià Goula
En la comarca catalana del Maresme, el pequeño municipio de Arenys de Munt está situado a 45 kilómetros de Barcelona, próximo a la costa, en el extremo nororiental de la provincia. Con una importante industria textil y un creciente sector servicios, su población, de unos 8.500 habitantes, está experimentando un fuerte crecimiento durante los últimos años.

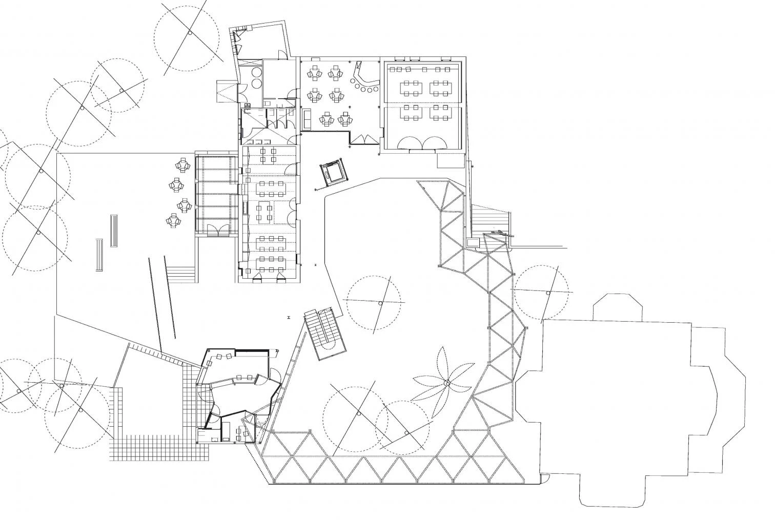
El proyecto, resultado de un concurso celebrado en 2006, consiste en la ampliación y remodelación de un centro privado, gestionado por la Comunidad Terapéutica del Maresme, para el tratamiento de enfermedades mentales. El equipamiento existente, inaugurado en 1993, constaba de un edificio principal y, separados de este, otros dos edificios auxiliares. La propuesta une las dos construcciones auxiliares manteniendo su uso como taller en planta baja e incorporando las habitaciones en planta primera. De este modo, se entiende una sola volumetría en forma de L que dialoga con el edificio principal. Entre ambos cuerpos se define el patio como un espacio de relación y principal espacio exterior del conjunto.




El programa funcional o de necesidades definido por la propiedad contemplaba la ampliación de los dos edificios auxiliares mediante la cubrición del patio que los separa. El proyecto propone un sistema de circulación/pasillo de entrada a los diferentes talleres y a las habitaciones en el primer nivel que envuelve el espacio central del patio, cubierto con un cerramiento ligero. Este pasillo funciona como transición entre el interior de los talleres y el patio. La incorporación de estas habitaciones al programa existente permitirá concentrar las actividades internas y de gestión en la edificación principal, y dotar a los pacientes de más espacios en el nuevo edificio.





El proyecto establece una diferenciación clara entre lo que se mantiene y lo que se construye nuevo. De este modo, las fachadas y las cubiertas inclinadas a dos aguas de los edificios a mantener se rehabilitan, limitándose la actuación únicamente a intervenciones mínimas.

El patio central, que conecta las diferentes piezas, y en torno al cual se organizan todos los espacios del centro, se protege con una cubierta ligera a modo de pérgola que lo resguarda del sol y de la lluvia.



Por otro lado, la galería exterior en forma de T que une los dos cuerpos tiene la función de pasillo entre las diferentes estancias y es tectónicamente diferente a la que existía, al estar sustentada por una estructura metálica cubierta con paneles sándwich. La nueva intervención se ha construido en seco, con materiales semi-industriales que consiguen hacer de un pasillo un filtro entre las habitaciones y el exterior.

El proyecto consiste en la remodelación interior del antiguo edificio, de unos 1.000 metros cuadrados, y en la ampliación, en un anexo, a través de una actuación que añade también doce habitaciones nuevas al centro.


Cliente Client
CTM, Comunitat Terapèutica del Maresme
Arquitecto Architect
Josep Miàs
Colaboradores Collaborators
Adriana Porta, Silvia Brandi, Fausto Raposo, Daniel Montes, Nuno Marques, Sebastián de Iruarrizaga, Alfonso Abé, Christian Giovanetti, Giovanni Galdieri, Gabriele Mura, Laura Pomesano; Carles Bou (arquitecto técnico quantity surveyor)
Consultores Consultants
BOMA, Anabel Lázaro (estructuras structures); PROISOTEC, Josep Masachs (ingeniería engineering)
Superficie Floor area
720 + 1000 m²
Presupuesto Budget
<1.000.000 euros
Fotos Photos
Adrià Goula