Centro de salud en Badalona
Jordi Badia- Tipo Centro de salud Plaza Salud Paisajismo / Urbanismo
- Fecha 2010
- Ciudad Badalona (Barcelona) Barcelona
- País España
- Fotografía Pedro Pegenaute
Como ciudad industrial del cinturón barcelonés, Badalona ha experimentado en las últimas décadas varios procesos acelerados de transformación. Si el primero de ellos fue causado especialmente durante el desarrollismo por la intensa afluencia de inmigrantes tanto del campo catalán como del resto del territorio nacional, el segundo lo provocaría la reconversión industrial tras la crisis que azotó España en los años ochenta, y que significaría el desmantelamiento de numerosísimas fábricas, y el tercero ha venido dado con la oleada de inmigración extranjera de la última década.

La plaza, como núcleo simbólico del proyecto, se caracteriza por el uso de un catálogo de elementos reducido y austero. La liberación de este espacio público se inscribe en la accidentada evolución de esta ciudad industrial.

La fisonomía de Badalona, la tercera ciudad de Cataluña por población, ha evolucionado en consonancia y así, si la explosión demográfica del municipio se tradujo en un crecimiento desordenado y en un tejido denso y abigarrado, la posterior depresión ha supuesto la demolición de edificios obsoletos y la posibilidad de actuar sobre el cuerpo de la ciudad con intervenciones de consolidación urbana que favorecieran asimismo el contacto entre los diversos grupos sociales. Entre ellas se encuentra la construcción de un centro de atención primaria, de una plaza y de un futuro edificio municipal, en la parcela liberada tras el derribo de una antigua fábrica de recipientes de vidrio.

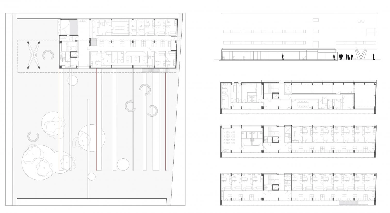
Los dos edificios de equipamientos se contemplarán de un lado a otro de la nueva plaza, cuyo pavimento refuerza esta relación mediante líneas rectas cerámicas trazadas entre los dos extremos. Las formas circulares utilizadas para los parterres y los bancos cristalizan reminiscencias del uso fabril que ocupó este espacio hasta hace pocos años. Además, los bancos alojan elementos de iluminación que los transforman en grandes lámparas por la noche, manteniendo así su carácter de puntos de encuentro. En el contexto de alta densidad edificatoria que caracteriza al barrio de El Raval, la plaza constituirá un necesario espacio de relación para su población que debe contribuir al reforzamiento de los vínculos sociales.

El cuerpo principal, suspendido sobre el de acceso, ofrece a la plaza una fachada de ebúrnea celosía cerámica. Este filtro abstracto protege los espacios interiores del sol del sureste y de las miradas invasivas.



Por su parte, el centro de salud se separa de la edificación colindante, dejando un patio que permite ventilar las piezas más privadas y construir en planta baja un espacio de acceso al edificio. Éste se compone de dos volúmenes: el cuerpo de acceso, negro, bajo y retranqueado, sobre el que se apoya el principal, que vuelca a la plaza una fachada permeable de blanca celosía cerámica, y al patio de acceso una fachada lisa rasgada por huecos escasos y precisos. Uno de los extremos del cuerpo principal reposa sobre un pilar singular que señala la entrada del edificio y crea un porche protegido del sol.


Cliente Client
GISA Generalitat de Catalunya
Arquitectos Architects
Jordi Badia
Colaboradores Collaborators
Rafael Berengena, Daniel Guerra, Jordi Framis
Consultores Consultants
BIS Arquitectos (estructura structure); Consulting Lluís Duart (instalaciones mechanical engineering)
Fotos Photos
Pedro Pegenaute