Centro de salud, Lérida
Fité & Mejón- Tipo Centro de salud Salud
- Fecha 2001
- Ciudad Lérida
- País España
- Fotografía Jordi Bernadó
- Marca Construcciones Ribó La Covadonga
En el límite de la ciudad consolidada y mirando hacia la ciudad que está por venir, el centro de salud que atenderá a los ciudadanos de un nuevo barrio de Lérida debe afirmar su identidad como equipamiento público. Sobre un solar que forma parte de una manzana cerrada y con dos gigantescos paños cerámicos a sus espaldas, el proyecto desafía a la masa construida en la que se encuentra inmerso: grandes bloques residenciales, con cuyo volumen el exiguo programa del centro no puede aspirar a competir. Para significarse y con la vocación de llegar a ser el telón de fondo de las construcciones que en un futuro se levantarán perpendiculares a la vía pública, el edificio sanitario se concibe como un cartel.


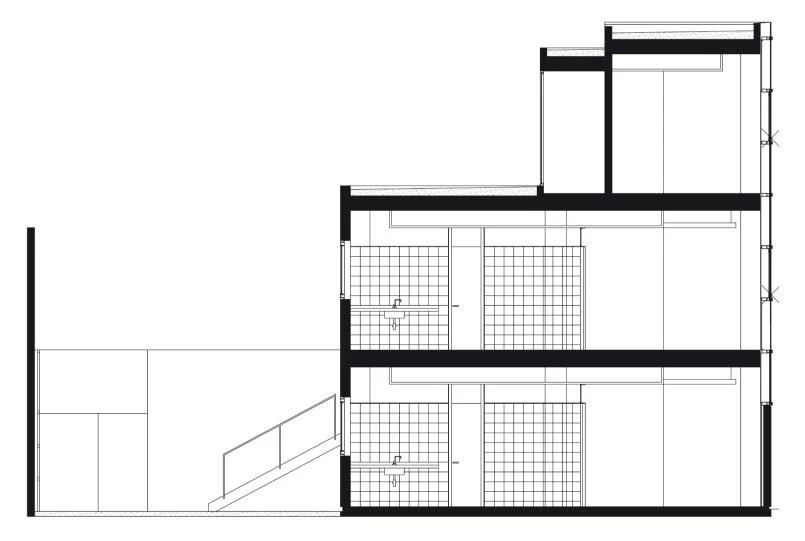
La consulta médica es el núcleo básico del programa y el punto de partida para organizar espacialmente el centro. Así, todas las unidades asistenciales necesarias se agrupan en una caja de ladrillo vidriado de dos plantas, cuya privacidad se protege con el resto de los espacios requeridos, formando una envolvente de espacios-filtro. Rodeada por la escalera de incendios, las salas de espera, las oficinas de administración y el archivo, la caja de consultas carece de contacto directo con la calle. Mediante huecos apaisados, ésta recibe del patio la luz dorada e indirecta reflejada por el muro de cerámica ocre que oculta las medianeras vecinas y forma además el zócalo de toda la edificación. Para aumentar el volumen del centro y subrayar así su dimensión de uso colectivo, a las dos plantas de consultas de acceso general se ha añadido un tercer nivel, cuyo uso se reserva exclusivamente al personal del centro. Formada por una crujía estrecha, esta última planta disfruta de la terraza habilitada sobre la cubierta del piso inferior, de manera que el edificio se escalona en sección hacia el norte, favoreciendo el soleamiento del patio.

Adosado a una manzana residencial, el centro de salud agrupa las consultas en una caja de ladrillo vidriado que carece de contacto directo con la calle. Una piel de vidrio y aluminio cierra las oficinas y salas de espera.

Para conseguir la imagen abstracta y unitaria que permita identificar el carácter institucional del centro sanitario, el edificio se esconde tras un animado tapiz que reúne el orden y el azar en un muro cortina formado por seis materiales en cuatro formatos distintos. Como si de las letras de un abecedario se tratase, el vidrio translúcido y el cristal transparente, el aluminio acabado en brillo o en mate, estriado o con un esmerilado en bandas se combina como un código cambiante que tan sólo se somete a la pauta impuesta por la sucesión horizontal de la estructura de fachada. Al interior, los paneles de melamina proporcionan el material lavable y de mantenimiento sencillo que requieren unas instalaciones de esta índole.


Para aumentar el volumen del centro y subrayar su dimensión pública, se ha añadido un tercer nivel a las dos plantas de consultas, de manera que el edificio se escalona hacia el norte, mejorando el soleamiento del patio.



Cliente Client
Gestió de Serveis Sanitaris, Hospital de Santa María
Arquitectos Architects
Ramón Fité, Julio Mejón
Colaboradores Collaborators
Ángeles Giraudo; Francesc Belart (aparejador quantity surveyor)
Consultores Consultants
Miquel Ángel Sala (estructura structure)
Contratista Contractor
Construcciones Ribó; La Covadonga (ladrillo brick)
Fotos Photos
Jordi Bernadó