Centro de salud, Miño
Irisarri + Piñera- Tipo Centro de salud Salud
- Material Zinc
- Fecha 2004
- Ciudad La Coruña Miño
- País España
- Fotografía Juan Rodríguez
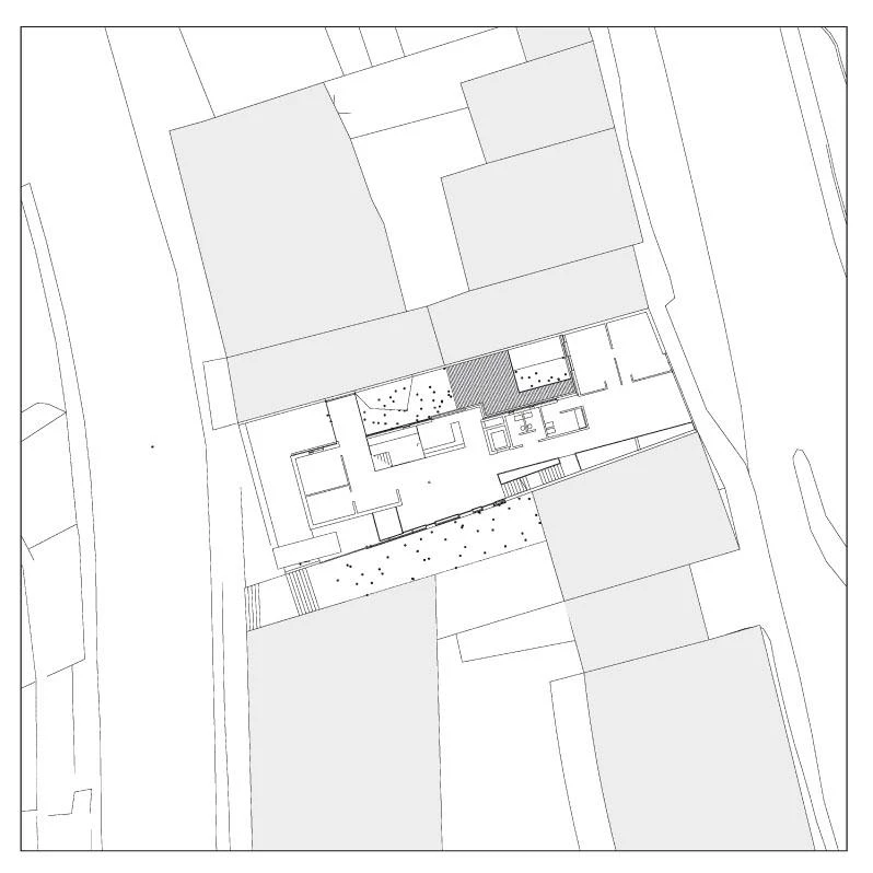
El entorno urbano en el que debía integrarse el nuevo centro de salud se hallaba sin consolidar en el momento de acometer su diseño. Las parcelas colindantes poseían construcciones a la espera de demolición y otras que previsiblemente aumentarían su altura en futuras reformas; algunos solares permanecían vacíos. Con el fin de definir un contexto físico invariable, el nuevo centro crea un patio continuo norte sur —excavado en parte gracias al desnivel entre las calles frontal y posterior de la parcela, rectangular, estrecha y alargada— parapetado entre muros de madera, hormigón y metal, y es en este paisaje particular donde despliega las piezas necesarias para alojar el programa.


El proyecto trata de controlar el entorno inmediato del barrio a medio consolidar creando un paisaje propio: el centro de salud se dispone en torno a un patio norte sur, matizado en su escala por las piezas que lo cruzan.
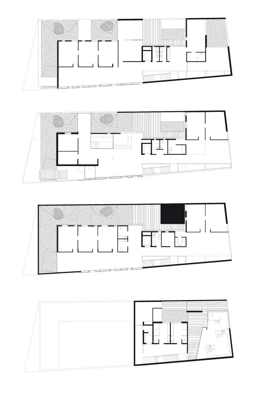
Se accede al edificio desde la calle posterior por medio de una pasarela inclinada que salva el patio. A partir de aquí el edificio se desarrolla linealmente en la misma dirección que éste, y las salas van apareciendo como tesoros que hubieran quedado a la vista tras la excavación. En la planta de acceso se encuentran los servicios generales (recepción, administración, área de asistencia social), y en las plantas superior e inferior distintas áreas de consulta y espera. En una segunda planta bajo el nivel de acceso se sitúan las dependencias de la policía local, a las que se entra directamente desde la calle inferior. Cada planta disfruta del patio a uno y otro lado; en los dos niveles superiores, parte de la planta se desplaza a modo de puente hasta alcanzar el muro medianero, cruzando el vacío y alojando espacios en los que se aprovecha de forma intensa la luz natural, como la biblioteca o la sala de descanso para los médicos.


La fachada longitudinal combina planchas de zinc con paneles de policarbonato que matizan la relación con el exterior, al abstraer el entorno doméstico de las parcelas vecinas y convertirlo en una composición abstracta de blanco (policarbonato), verde (vegetación) y madera (carpintería). Hacia el interior se combinan los paños de celosía de madera con el encofrado de bandas horizontales del hormigón, y el pavimento de madera con otro de grava y con parterres vegetales, enfatizando nuevamente el carácter abstracto y artificial del paisaje creado.

Las celosías de madera superpuestas a los muros medianeros, el encofrado en bandas horizontales del hormigón, la fachada de policarbonato y los parterres de tierra y grava generan un ambiente abstracto e introvertido.
Se ha hecho especial hincapié en las cualidades térmicas del edificio: en invierno se corta el efecto chimenea y se activa el efecto invernadero, y los muros de policarbonato y termoarcilla acumulan calor y lo difunden al interior; en verano, el patio favorece la ventilación cruzada, y el aire refrescado en semisombra enfría el resto del espacio, consiguiendo rebajar el gasto energético que se desprendería del uso de aire acondicionado.




Cliente Client
Xunta de Galicia
Arquitectos Architects
Jesús Irisarri, Guadalupe Piñera
Colaboradores Collaborators
Sonia Alvarado, Fátima Iglesias, Marcelino Pichel; Sancho Páramo, Sandra Valverde (aparejadores quantity surveyors)
Consultores Consultants
Antonio Reboreda (estructura structure); Ana Mª Vigo, Manuel Lopega (instalaciones mechanical engineering)
Contratista Contractor
Orega
Fotos Photos
Juan Rodríguez