Casa LOBA, Coliumo
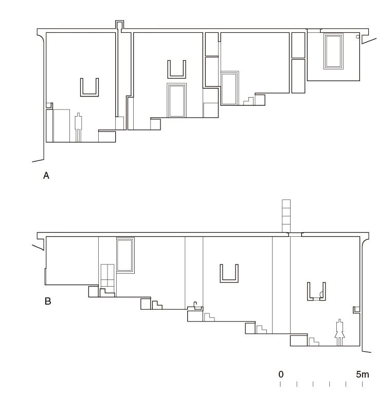
Pezo von EllrichshausenTal vez la única distinción entre objetos y cosas radique en su escala. Más cercano a cualquier cosa natural, en escala ambigua, este pequeño edificio es más que una choza pero menos que una casa: es una cabaña. Como un bloque opaco, un objeto monolítico anclado al borde de un acantilado enfrenta una reserva de leones marinos en la costa del Pacífico. En su espesor subdimensionado, en su proporción alta y angosta, la casa se puede leer como un muro habitado que avanza perpendicular a la topografía natural. La altura de este muro queda determinada por dos líneas: un horizonte continuo y una secuencia escalonada de seis plataformas que descienden hacia el mar. La separación entre esa cubierta horizontal (con la función de terraza abierta) y la extensión regular del suelo (con una organización informal de reposo, comida y estar), una única habitación asimétrica, es interrumpida por tres grandes pilares y dos puentes.
El largo volumen tiene un modesto régimen de huecos a los lados, con lucernarios puntuales, unas perforaciones de media luna que se podrían usar como relojes de sol y sólo una ventana de esquina partida por un pilar redondo. Esta es la única ventana con vidrios sin marco enrasados a la cara exterior del hormigón. Espejando el ocaso, una roca descansa flotando, casi imposible y ficticia, sobre aquellos reflejos.











Ubicación Location
Península de Coliumo, Tome, VIII Región, Chile
Cliente Client
Marcelo Sánchez, Janis Hananias
Arquitectos Architects
Mauricio Pezo, Sofía von Ellrichshausen
Colaboradores Collaborators
Diego Pérez, Thomas Sommerauer, Teresa Freire, Beatrice Pedroti, Wiktor Gago
Consultores Consultants
Peter Dechent (estructura structure); Marcelo Valenzuela, Daniel Garrido (instalaciones mechanical engineering)
Contratista Builder
Carvajal & Cabrer
Superficie sitio Plot area
1.000 m²
Superficie construida Built area
70 m²
Fotos Photos
Pezo von Ellrichshausen