LOBA house, Coliumo
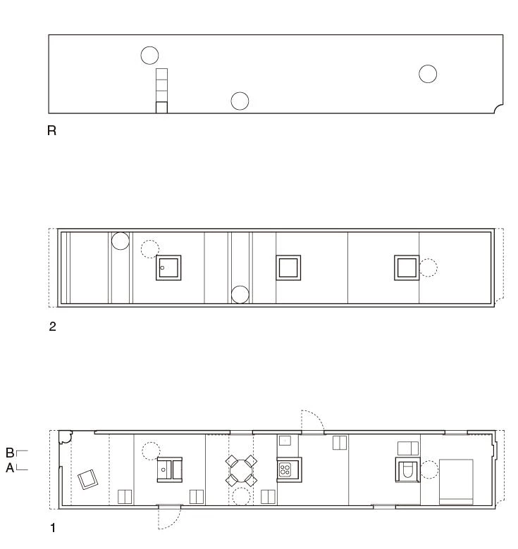
Pezo von EllrichshausenPerhaps the only distinction between objects and things resides in their scale. Closer to any natural thing, in its ambiguous scale, this small building is more than a hut but less than a house: it is a cottage. As an opaque block, a monolithic object heavily anchored at the edge of a cliff, it is facing a sea-lion reserve on the Pacific Ocean. In its under-dimensioned thickness, in its narrow and tall proportion, the building could be read as an inhabited wall that runs perpendicular to the topography. The wall’s height is determined by two lines: a continuous horizon and a stepped sequence of six platforms descending to the sea. The separation between that horizontal roof (an open terrace) and the regular extension of the ground (with the informal arrangement of rest, dining and living), a single asymmetrical room, is interrupted by three massive columns and two bridges.
There is a discreet regime of openings at either side of the long volume, with some skylights, a few half-moon perforations that could serve as sundials and a corner window divided by a round pillar. This is the only window with unframed glass flushed to the outer concrete surface. Mirroring the sunset, an almost impossible and illusory floating rock rests right on top of that reflection.











Ubicación Location
Península de Coliumo, Tome, VIII Región, Chile
Cliente Client
Marcelo Sánchez, Janis Hananias
Arquitectos Architects
Mauricio Pezo, Sofía von Ellrichshausen
Colaboradores Collaborators
Diego Pérez, Thomas Sommerauer, Teresa Freire, Beatrice Pedroti, Wiktor Gago
Consultores Consultants
Peter Dechent (estructura structure); Marcelo Valenzuela, Daniel Garrido (instalaciones mechanical engineering)
Contratista Builder
Carvajal & Cabrer
Superficie sitio Plot area
1.000 m²
Superficie construida Built area
70 m²
Fotos Photos
Pezo von Ellrichshausen