Casa GAGO, San Pedro
Pezo von Ellrichshausen- Tipo Casa Vivienda
- Fecha 2011 - 2013
- Ciudad San Pedro
- País Chile
- Fotografía Cristóbal Palma
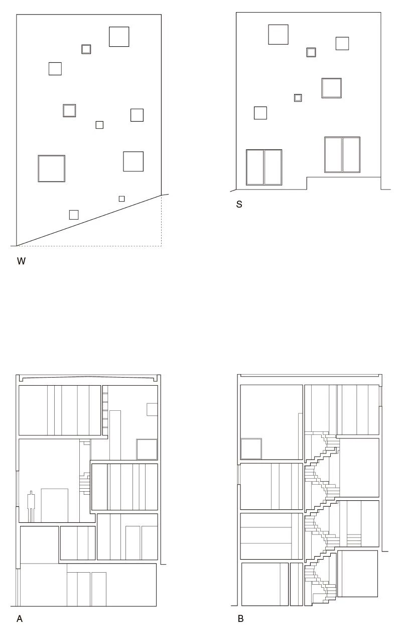
En un área suburbana recién poblada, esta casa para una pareja de matemáticos y sus dos hijos tiene una planta cuadrada dividida en cuadrantes asimétricos que se elevan en espiral hasta alcanzar cuatro plantas. Cuatro escalones (70 cm de altura) separan un cuadrante del siguiente. En el cruce de los muros habitables que dividen el interior se instala una escalera de caracol con un ojo central, escalones regulares y sin descansillos. Entre un recinto y el siguiente hay dos caminos: el de la escalera, que funciona como atajo diagonal que interrumpe las esquinas, y otro más suave que conecta los centros de cada recinto. En total son doce plataformas a diferente nivel, donde un giro de 360º equivale a una planta completa. La secuencia ascendente establece diferentes grados de intimidad y proximidad entre las funciones, que pasan de la cocina o un par de comedores a la altura del terreno a los dormitorios o el estudio en la parte más alta. Esta estratificación promueve la activación de ciertas estancias según las horas del día y una suerte de fricción familiar a lo largo del vacío central. Excepto la base, que contiene la tierra del jardín, esta casa de madera se apoya en la escalera, una pieza robusta de losas plegadas y cuatro pilares de hormigón armado que salvan toda la altura del volumen. En su base, el centro de la escalera coincide con el acceso diagonal a la casa.









Ubicación Location
Cumbres de Andalue, San Pedro de la Paz, Chile
Cliente Client
Gabriel Gatica
Arquitectos Architects
Mauricio Pezo, Sofía von Ellrichshausen
Colaboradores Collaborators
Diogo Porto, Constanza Collao, Martina Baratta, Linda Werab
Consultores Consultants
Luis Mendieta (estructura structure); Marcelo Valenzuela, Carlos Martínez (instalaciones mechanical engineering)
Contratista Builder
Aroldo Carrasco
Superficie sitio Plot area
415 m²
Superficie construida Built area
241 m²
Fotos Photos
Cristóbal Palma, Pezo von Ellrichshausen