Casa ABBA, Cabrero
Pezo von Ellrichshausen- Tipo Casa Vivienda
- Fecha 2011
- Ciudad Cabrero (VIII Región)
- País Chile
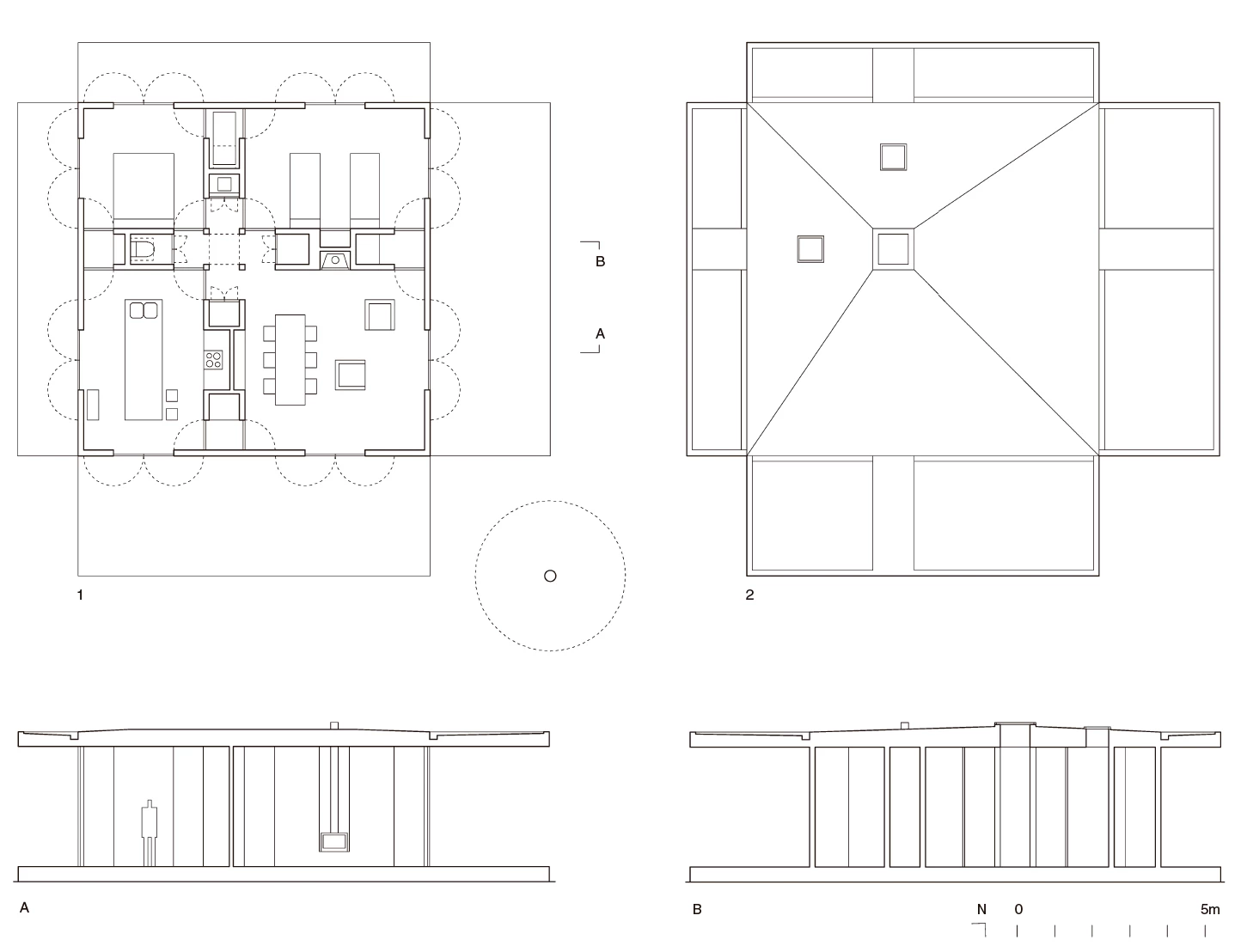
Un árido plano de hormigón no sólo eleva la vida ociosa sino que anticipa la crecida de un estanque cercano. Su figura es la de una gruesa cruz abierta cardinalmente. Sobre este podio se apoya una pieza de madera que a su vez sostiene un coronamiento de pesados aleros que reiteran la figura del podio. La sombra es literalmente una proyección geométrica entre basamento y capitel. En base a una simetría vertical, el modesto programa resulta prensado entre estos planos horizontales. Adentro la pieza tiene una doble extensión; una frontal hacia el valle y otra diagonal que hace converger las habitaciones en un centro de cuatro pilares iluminados cenitalmente. El interior puede ser entendido como un único recinto dividido en cuatro rincones; dos extendidos y dos centralizados. Leídas circularmente, las cuatro habitaciones forman la sintaxis a-b-a-b, una forma de mundo dentro del mundo. Este esquema, elaborado como un sistema unitario e integral, no es más que la construcción de un refugio idealizado. Todos los servicios conforman otra cruz asimétrica; un muro de espesor habitable que apenas toca el cerramiento perimetral y que queda vaciado en el preciso punto de contacto entre sus bandas. La estructura de la casa se anuda diagonalmente con un joven castaño que, una vez maduro, ayudará a enfrentar la lluvia del norte.






Ubicación Location
Cabrero, VIII Región, Chile
Cliente Client
Ricardo Pezo, Fernanda Monje
Arquitectos Architects
Mauricio Pezo, Sofía von Ellrichshausen
Colaboradores Collaborators
Diogo Porto
Consultores Consultants
Luis Mendieta (estructura structure); Marcelo Valenzuela, Carlos Martínez (instalaciones mechanical engineering)
Contratista Builder
Jorge Valdebenito
Superficie sitio Plot area
5.000 m²
Superficie construida Built area
90 m²