Casa Lott, Houston
Carlos Jiménez- Tipo Casa Vivienda
- Fecha 1992 - 1994
- Ciudad Houston
- País Estados Unidos
- Fotografía Paul Hester
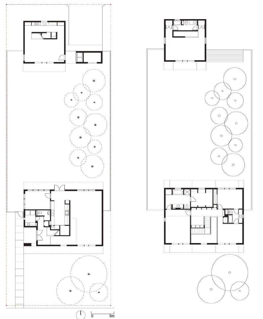
La casa se sitúa en el North Boulevard, una de las calles más bonitas de Houston, cuyos maravillosos robles, de grandes ramas y espléndida bóveda vegetal, consiguen transmitir la sensación de encontrarse en una especie de magníficos refugios urbanos. La idea de proyecto de esta casa de 370 metros cuadrados consiste en dar respuesta al requerimiento de la propietaria de dividir el programa en dos partes: la casa principal y la casa para invitados. La primera da a la calle y ocupa todo el ancho edificable, mientras que la casa para invitados, situada en la parte trasera del solar, se sitúa en paralelo al lado ancho del cuerpo principal, abriéndose al gran patio ajardinado que queda entre ambas construcciones.
Aunque las dos casas están separadas y difieren en superficies y volúmenes, comparten algunos rasgos, como los materiales empleados en la fachada —fundamentalmente el ladrillo visto de tono terroso—, el detalle constructivo de los aleros que sobresalen del plano de fachada apoyándose sobre jabalcones metálicos, o las grandes ventanas con carpinterías de acero. Enfrentada una a la otra, cada casa disfruta de un lado diferente del jardín, de manera que, compartiendo el mismo solar urbano, pueden abrirse con largueza al exterior para ampliar sus respectivos espacios interiores.






Superficie Building size
370 m² 4,000 ft²
Finalización Completion
1994
Cliente Owner
Marley Lott
Arquitecto Architect
Carlos Jiménez Studio, Houston, Texas
Equipo Project team
Carlos Jiménez Studio: Carlos Jiménez (director, autor del proyecto?principal, project designer); Eric Batte, Robert Fowler, Mason Wickham
Consultores Project consultants
Jon Monteith, Structural Consulting Co. (estructura structure); Carlton Cook Company (ebanistería cabinetry); Rosa Finsley (paisajismo landscape)
Contratista Contractor
Ted Anderson, Anderson Builders
Fotos Photos
Paul Hester, Hester+Hardaway Photographers