Casa Hanneman, Houston
Carlos Jiménez- Tipo Casa Vivienda
- Fecha 2003 - 2005
- Ciudad Houston
- País Estados Unidos
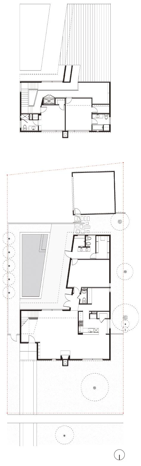
Ubicada al sur del campus principal de la Universidad de Rice, esta casa de 220 metros cuadrados ocupa un solar típico de Houston, de 4,5 por 9 metros aproximadamente, con el frente septentrional abierto hacia la calle y el meridional hacia un callejón trasero. La casa decrece desde el norte hacia el sur, pasando de tener dos plantas a una sola: una disposición volumétrica que permite que la luz natural pueda entrar al pequeño patio de la casa orientado al sureste, cuya parte central ocupa una piscina. El conjunto se completa con un garaje preexistente, que se ha restaurado y dispone de un acceso cómodo desde el callejón.
En la planta baja se ha situado la zona de estar, el comedor, la cocina, un estudio y el dormitorio principal, mientras que la primera contiene dos dormitorios y una pequeña biblioteca. Si al exterior todos estos espacios quedan subsumidos en un contenido volumen pintado de verde, al interior se definen por su abundante luz natural, excepto en la orientación oeste, muy agresiva durante los veranos y que obliga a no abrir ventanas o bien a protegerlas adecuadamente. Aunque se trata de una casa pequeña para lo que suele ser la norma en Houston, la interacción equilibrada entre los volúmenes y la luz produce la impresión de que es mucho mayor.







Superficie Building size
220 m² 2,400 ft²
Finalización Completion
2005
Cliente Owner
Richard and Sandy Hanneman
Arquitecto Architect
Carlos Jiménez Studio, Houston, Texas
Equipo Project team
Carlos Jiménez (director, autor del proyecto principal, project designer); Brett Zamore
Consultores Project consultants
Matrix Structural Engineering (estructura structure)
Contratista Contractor
Charles «Chuck» Bosch, Built Incorporated Co.
Fotos Photos
Paul Hester, Hester+Hardaway Photographers