Biblioteca y Centro de Datos, Houston
Carlos Jiménez- Tipo Cultura / Ocio Biblioteca Universidad
- Fecha 2002 - 2007
- Ciudad Houston
- País Estados Unidos
- Fotografía Paul Hester
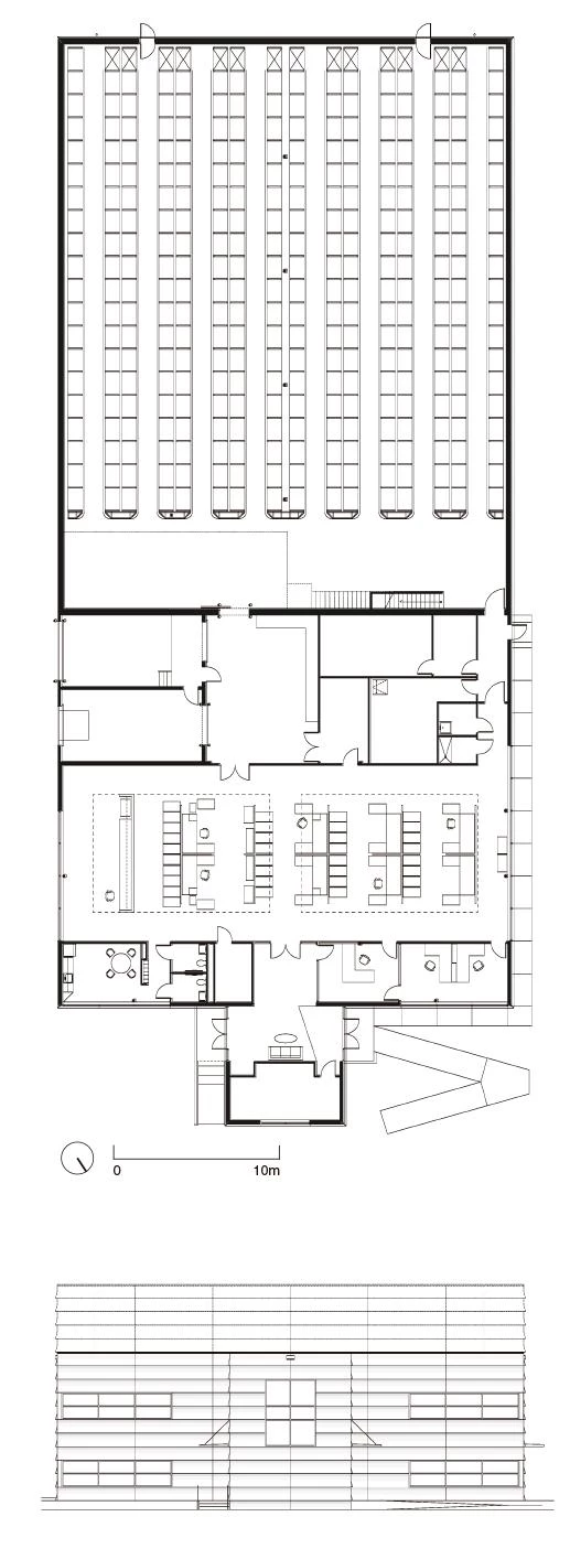
Situados en un solar de 13 hectáreas a 8 kilómetros del campus de la Universidad de Rice, el almacén de libros (The Rice Library Service Center) y el centro de datos (Rice Data Center) de la institución se han concebido para desahogar los edificios preexistentes, definiendo además la paleta de materiales de las dotaciones que se irán construyendo en el futuro sobre el nuevo enclave.
La Biblioteca es un volumen capaz de almacenar entre 1,75 y 2 millones de volúmenes en una superficie de 1.700 metros cuadrados. Consiste en dos partes diferenciadas: por un lado, la oficina de procesamiento, de dos plantas; por el otro, la bóveda de almacenamiento, de tres alturas, dotada de estanterías modulares, y que, por mor de la conservación de los libros, se mantiene a una temperatura de 10ºC y una humedad relativa del 30%. Por su parte, el Centro de Datos, con sus 2.400 metros cuadrados, contiene una serie de espacios de servicio.
Ambas dotaciones se resuelven con un sistema de muros de hormigón armado inclinados cuyo diseño personalizado permite dotar a cada edificio de un grado de opacidad diferente. Los muros se pintan en tonos de verde fosforescente que convierten las dos piezas alzadas sobre una gran pradera en inesperados ejemplos de arte topiario.



















Superficie Building size
1.700 m² (RLSC) 18,500 ft² (RLSC)
2.400 m² (RDC) 25,400 ft² (RDC)
Finalización Completion
2004, 2007
Cliente Owner
William Marsh Rice University
Arquitecto Architect
Carlos Jiménez Studio, Houston, Texas
Kendall Heaton Associates, Inc., Houston, Texas (local architect RLSC architect of record RLSC); Pierce Goodwin Alexander & Linville, Houston, Texas (local architect RDC architect of record RDC)
Equipo Project team
Carlos Jiménez (director, autor del proyecto principal, project designer); David Vargo, AIA (arquitecto de proyecto project architect); Brett Zamore, Melissa Braisted, Victor Murillo
Kendall Heaton: Bill Kendall, John O’Connell Pat Ankney, Joon Ahn (RLSC) Pierce Goodwin Alexander & Linville (RDC)
Consultores Project consultants
Haynes Whaley As., CHP & Associates (estructura structure); Carter & Burgess (civil civil); Dill & Company (biblioteconomía library book storage); Office of James Burnett (paisajismo landscape); Walter P. Moore & Associates (civil, estructura civil, structural); Evolve (MEP)
Contratista Contractor
Spaw Maxwell Co, Houston, Texas (RLSC); Linbeck Ground LLC, Houston, Texas (RDC)
Fotos Photos
Paul Hester, Hester+Hardaway Photographers