Biblioteca Whatley, Austin
Carlos Jiménez- Tipo Cultura / Ocio Biblioteca
- Fecha 1999 - 2001
- Ciudad Austin (Texas)
- País Estados Unidos
- Fotografía Paul Hester
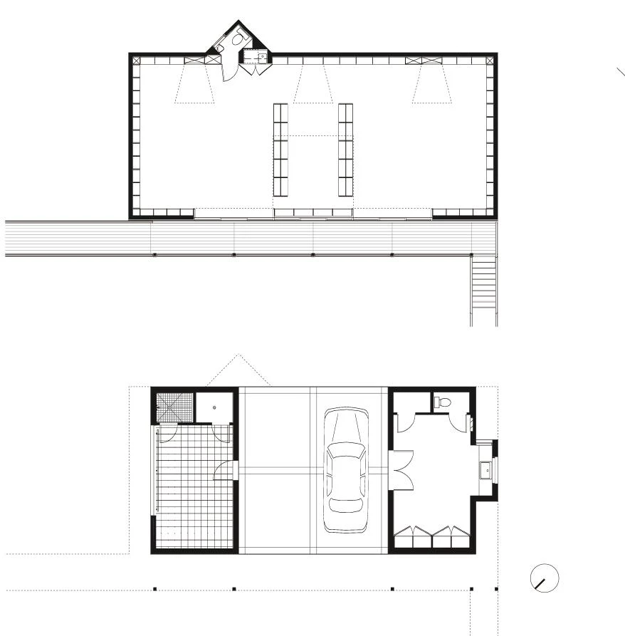
Aunque se trata de un edificio independiente, la biblioteca se puede considerar un pabellón que completa una parcela densamente arbolada donde se levantan varias piezas preexistentes. Con sus poco más de 200 metros cuadrados, la biblioteca conecta la casa principal con la de invitados mediante rampas, terrazas, una escalera y caminos peatonales. Construido con estructura de madera, el edificio contiene en su planta superior un único espacio abovedado cuyas cuatro paredes están completamente forradas de estanterías, mientras que su planta inferior alberga en la parte central un aparcamiento para coches flanqueado por un gimnasio y un cuarto de jardinería. Los materiales —piedra caliza, madera de ciprés y de ipé, paneles de acero galvanizado y de aluminio anodizado, mortero de cemento, armarios y suelos de arce— se han escogido para resonar con los acabados y texturas de la casa preexistente, sin recaer en la simple imitación de sus detalles rústicos.
La biblioteca se diseñó para que almacenara y expusiera una amplia colección de libros y obras de arte. Por ello, es ante todo un santuario donde los propietarios pueden disfrutar del placer de la lectura, viendo cómo el día va pasando conforme cambian los matices de la luz que se filtra por la ventanas tras abrirse paso entre las ramas de los árboles. [+][+]










Superficie Building size
220 m² 2,400 ft²
Finalización Completion
2001
Cliente Owner
Melba and Ted Whatley
Arquitecto Architect
Carlos Jiménez Studio, Houston, Texas
Equipo Project team
Carlos Jiménez (director, autor del proyecto principal, project designer); Brian K. Burke (socio senior, director de proyecto senior associate, project director); Alex O’Briant
Consultores Project consultants
Jeffrey L. Smith, P.E. (estructura structure);Gardens (paisajismo landscape): James David, (director principal); William Bauer, Karen Retzler, Austin, Texas; Marlys Tokerud (mobiliario furnishings)
Contratista Contractor
J. Pinnelli Company: J. Pinnelli (director principal); Gary Buvenick, Alpine, Texas (project manager)
Fotos Photos
Paul Hester, Hester+Hardaway Photographers