Biblioteca universitaria, Madrid
José Ignacio Linazasoro- Tipo Biblioteca Cultura / Ocio Universidad
- Material Ladrillo Madera
- Fecha 1989 - 1994
- Ciudad Madrid
- País España
- Fotografía Javier Azurmendi


El lugar donde se sitúa este edificio docente, junto a la M-30 y en el límite de la Ciudad Universitaria, tiene un carácter especialmente significativo por la gran calidad media de su entorno arquitectónico, definido tanto por los edificios históricos que jalonan la cornisa de Madrid como por la magnífica arquitectura racionalista universitaria.
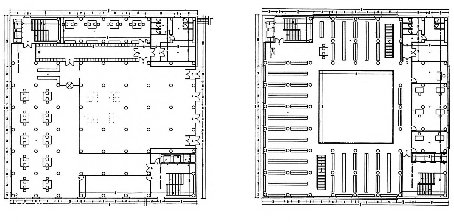
La distribución interior se organiza mediante una rigurosa retícula cuadrada, de la que escapa tan sólo el gran hueco circular de la sala de lectura. Los núcleos de escaleras se sitúan diagonalmente.

Planta segunda Planta octava

Planta baja Planta séptima

Planta sótano Plantas tercera a sexta

Planta novena

Diagrama axonométrico
La biblioteca, que adquiere así una posición de hito urbano, es un edificio voluntariamente hermético, cuya función apenas se adivina desde el exterior. Por su proximidad a la autopista y la amplia panorámica que desde el mismo se divisa, se debate entre la introversión propia de un espacio de reflexión y estudio, y la apertura hacia las bellísimas vistas de la comisa madrileña y la Casa de Campo. Por otra parte, se trata de una biblioteca organizada según el modelo anglosajón, en la que las áreas de almacenamiento de libros y de lectura están interrelacionadas.


El espacio de la sala de lectura está configurado por el contraste entre las estanterías y el vacío central. La madera, material predominante, contribuye a la atmósfera de calidez y apacibilidad.

La idea central del proyecto se basa por tanto en una superposición en altura de espacios herméticos entre sí: la sala de acceso y de pasos perdidos, la sala de lectura y almacenamiento —un espacio unitario de seis plantas con circulaciones interiores por escaleras—, y la planta de cafetería y administración. Dos núcleos de comunicación comunes dispuestos diagonalmente permiten el acceso a los distintos niveles y espacios.

Alzado oeste (arriba) Detalles constructivos del cerramiento Alzado este (debajo)
La distribución de huecos en los alzados expresa las diferentes actividades que tienen lugar en el interior. El espacio de la biblioteca, volcado hacia el hueco central, reduce sus huecos en fachada a unas estrechas franjas horizontales.

Sección parcial detallada (arriba izquierda) Sección por la sala de lectura (arriba derecha) Planta y sección de los lucernacios (debajo)
La última planta está dominada por las grandes pirámides abiertas que difunden la luz cenital hacia la sala de lectura. El diámetro del hueco central va aumentando con la altura para facilitar la iluminación de los espacios periféricos.
La retícula estructural, de 4,5 x 4,5 metros e independiente del cerramiento exterior en que se basa el proyecto, configura prácticamente todo el espacio de la planta de acceso. Por el contrario, la sala de lectura es un volumen centrado en tomo a un hueco circular abierto en esta retícula y cubierto con un artesonado de madera que permite la entrada de luz cenital al interior. Este espacio, al que se accede oblicuamente, es el corazón del edificio y está configurado formalmente por el contraste entre las propias estanterías y el vacío central. En el centro mismo, en un anillo, rodeados de libros y bajo el artesonado, se sitúan los lectores. La luz penetra en la sala desde las paredes perimetrales a través de estrechas ventanas horizontales, y desde el artesonado cenitalmente. En la última planta, reservada a administración, cafetería y sala de juntas, el espacio se invierte, cerrándose interiormente y abriéndose a las magníficas vistas exteriores.

El revestimiento de ladrillo es un homenaje a la arquitectura de la Ciudad Universitaria.
El uso del ladrillo, material predominante en los primitivos edificios de la Ciudad Universitaria, es un homenaje a los mismos y, por otra parte, debido a su atemporalidad, constituye un símbolo de estabilidad y permanencia adecuado a la función institucional a que se destina el edificio.


Cliente Client
Universidad Nacional de Educación a Distancia (Ministerio de Educación y Ciencia).
Arquitecto Architect
José Ignacio Linazasoro.
Colaboradores Collaborators
Luis Sesé, Javier Puldain (arquitectos / architects); Santiago Hernán, Juan Carlos Corona (aparejadores / technical architects); Antonio Rubio (arquitecto de la UNED / UNED architect).
Contratista Contractor
Fomento de Construcciones y Contratas.
Fotos Photos
Javier Azurmendi.