Biblioteca Puerta de Toledo, Madrid
Juan Navarro Baldeweg- Tipo Biblioteca Cultura / Ocio
- Material Piedra
- Fecha 1994
- Ciudad Madrid
- País España
- Fotografía Javier Azurmendi


Plano de situación
Para comprender la orientación de este proyecto es preciso considerar el diseño integral de la Puerta de Toledo. Una intención muy evidente y que explica la forma de la biblioteca y del centro de servicios sociales, situado al otro lado de la calle Toledo, es el cuidado muy preciso en la escala y la presencia de estos en la glorieta. Unos edificios desproporcionados en el perímetro de la plaza habrían oscurecido la Puerta de López Aguado y se habrían desvinculado del Parque de Bomberos, que era preciso conservar.
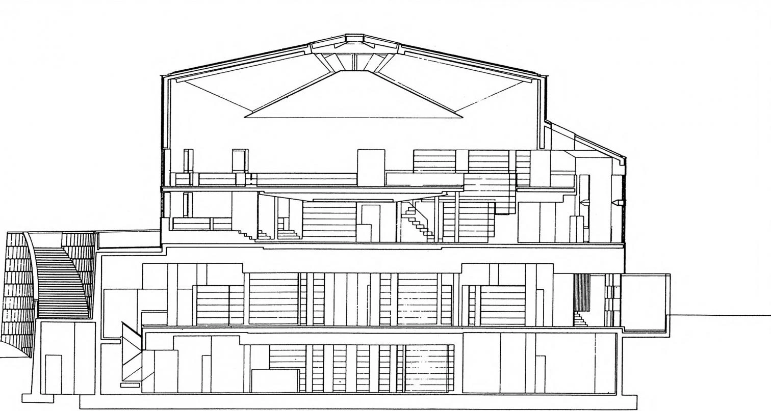
El programa se distribuye en cuatro plantas: las dos superiores corresponden a la sala de lectura; la baja alberga el salón de actos y la sala de préstamos; y una biblioteca infantil ocupa el sótano.

Alzado general a la plaza

Sección longitudinal

Secuencia de alzados

Planta a cota 630 Planta a cota 638

Planta a cota 627 Planta a cota 635
El equilibrio de volúmenes, el juego de llenos y vacíos, se integra en la conformación de un anillo de poca altura en torno a la Puerta, orientándose a ella en los límites de escala apropiados. El vacío de la plaza alta del otro lado de la calle Toledo dialoga con el lleno de la forma de tambor de la cúpula de la biblioteca. La tensión en la presencia simultanea de unos efectos volumétricos de concavidad y convexidad son esenciales en la experiencia espacial de la glorieta.

Una especial atención a la escala urbana ha guiado este proyecto y el del centro de servicios sociales, concebidos como elementos de consolidación de la glorieta.
El edificio de la biblioteca consta de cuatro plantas. En la planta inferior —sótano— y con entrada independiente lateral, se aloja una biblioteca infantil con ochenta plazas de lectura, a la que se puede acceder también desde la planta superior, con la consiguiente flexibilidad de funcionamiento. En esta planta se encuentra también un depósito de libros para toda la biblioteca y una sala de máquinas. La planta baja, a nivel de calle, alberga la sala de préstamo y el salón de actos, con capacidad para unas setenta personas.
Las plantas superiores corresponden a la sala de lectura, que disfruta también de un acceso independiente desde la glorieta a través de la rampa-escalera. La sala tiene dos plantas, con una zona de doble altura en la que se disponen escalonadamente las estanterías. Esta sala aloja 156 puestos de lectura y puede contener en sus librerías hasta 10.000 volúmenes. Una zona de audiovisuales y una zona para revistas completan el programa de esta planta. El diseño estructural y los efectos de luz natural dentro del tambor se han cuidado especialmente en el proyecto.

En la sala de lectura, la iluminación natural cumple una función esencial. Las estanterías ocupan la franja periférica, y sobre la plataforma central flota la bóveda cónica.
Los paramentos exteriores del basamento están recubiertos de granito gris, mientras que la piedra natural blanca domina la parte superior de la biblioteca. En el diseño de estos paramentos, en el despiece de la piedra, en la composición de los huecos y en el tratamiento de las cubiertas se ha tenido en cuenta en todo momento la conjunción necesaria con los edificios del centro de servicios sociales del otro lado de la calle.

Cliente Client
Consejería de Cultura de la Comunidad de Madrid.
Arquitecto Architect
Juan Navarro Baldeweg.
Colaboradores Collaborators
F. Antón, J. Lizasoain, J. M. Gutiérrez, E. Pujana, P. Soler, L. Enseñat (proyecto / project); J. Lizasoain y J. M. Gutiérrez (dirección de obra / site supervision); E. G. Velagos y P. D. Buceros (aparejadores / technical architects); E. Pujana (maquetas / models).
Consultores Consultants
J. Martínez Calzón (estructura / structure).
Contratista Contractor
Fersa; Orive.
Fotos Photos
Javier Azurmendi.