Residencia universitaria, Castelldefels
Mestura- Tipo Residencia Vivienda
- Fecha 2011
- Ciudad Castelldefels (Barcelona) Barcelona
- País España
- Fotografía Pedro Pegenaute
Esta residencia surge para cubrir la necesidad de vivienda en el Parc Mediterrani de la Tecnologia (PMT), un campus universitario de reciente creación dentro del área metropolitana de Barcelona, en el término municipal de Castelldefels. El campus se organiza dentro de un circuito anular de viales circulatorios, con una plaza, a modo de ágora, que ocupa el centro del recinto. Desde el circuito exterior hacia la plaza se suceden una zona de espacios verdes, un gran lago de laminación y el cinturón de equipamientos de la universidad.

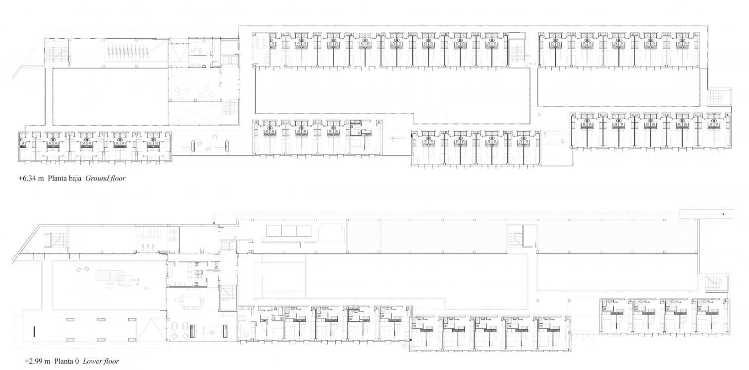
La cota cero se sitúa a la altura de la plaza central, accesible a través de áreas de recepción y administración. Frente a ellas, un cuerpo transversal une los bloques y se comunica directamente con la planta inferior, donde se localizan los espacios de uso común abiertos hacia el patio y los jardines.

Situadas al sur de la plaza central, las viviendas se levantan sobre un terreno en caída hacia el lago. La pendiente del solar define la geometría del edificio, diviendo el programa en dos bloques longitudinales de planta baja más dos alturas posicionados a lo largo de un eje este-oeste. El bloque norte recibe la cota de la plaza, y su fachada configura el cierre de este espacio ágora, mientras el bloque paralelo dialoga con el nivel del lago, produciéndose un desnivel de una planta entre ambos. La disparidad de carácter y altura de las fachadas norte y sur, siendo producto de las exigencias morfológicas del terreno, es el punto de partida para la organización interna de los bloques, la disposición de los alojamientos, y para la imagen externa del edificio.

La residencia ofrece 160 unidades de alojamiento, que se organizan a lo largo de los pasillos. Para romper la monotonía, los corredores se quiebran y se abren terrazas pasantes que funcionan como miradores y salas comunes.

Persiguiendo estrategias de sostenibilidad y optimización de los recursos medioambientales, ligadas a la tipología edificatoria resultante, los corredores de acceso a las viviendas son llevados hacia la fachada norte de los bloques y los ámbitos de estar, cocina y dormitorios al sur, con mejor soleamiento y apertura hacia el patio central o hacia los jardines del campus. Las unidades de alojamiento se distribuyen en peine desde el corredor, posibilitando la ventilación cruzada, mientras que el desplazamiento en planta y sección de los bloques paralelos favorece el mejor aprovechamiento de la radiación solar y genera un microclima en el patio central ajardinado. Como protección solar pasiva, se emplean en la fachada sur parasoles metálicos cuya geometría varía en función de la posición del hueco en la vivienda.


La comunicación entre los bloques se realiza por un volumen central que ejerce de punto de encuentro y configura los espacios comunes, y a través de pasarelas y núcleos de escaleras que cruzan y dinamizan el patio interior. Estos espacios de tránsito, así como los corredores de fachada, se cierran con coloridos bastidores de chapa metálica microperforada cuya permeabilidad varía según su posición, regulando la intimidad de estas áreas y ofreciendo un frente cromático para la plaza central del campus.






Cliente Client
UPC Universidad Politécnica de Cataluña / Siresa Nova
Arquitectos Architects
Humbert Costas, Manuel Gómez, Jaime Blanco, Carlos Durán, Josep M. Estapé
Colaboradores Collaborators
CMT (arquitectos asociados associate architects)
Consultores Consultants
Manuel Mancha (arquitecto técnico quantity surveyor); Intec Asociados (cálculo de instalaciones MEP); Luis Alfredo Rodríguez (estructuras structures); Paymacotas, Joaquín Sánchez (seguridad y salud security and health); Societat Orgànica (sostenibilidad y mantenimiento sustainability and maintenance); Socotec Iberia (control técnico technical control)
Contratista Contractor
Fausto Facioni Construcciones
Fotos Photos
Pedro Pegenaute