Viviendas escuela y guardería, Barcelona
Coll-Leclerc- Tipo Guardería Colegio e instituto Colectiva Residencia Vivienda Educación
- Fecha 2006
- Ciudad Barcelona
- País España
- Fotografía José Hevia
Construir en uno de los escasos solares del Ensanche de Barcelona conlleva la responsabilidad de procurar llevar al máximo las posibilidades planteadas por las reglas de Cerdá para completar la manzana.


Alejándose de la organización sugeridas por el concurso origen a este proyecto, la propuesta pone en práctica los mecanismos des-arrollados por Antonio Bonet en su bloque Mediterráneo —realizado entre 1960 y 1963—. En él se abandonaba la formalización del chaflán para pre-sentar una composición de manzana permeable que superaba las previsiones de ventilación y solea-miento a las que tanto la orientación como los es-trechos patios de luces, habituales en la tipología de crujía profunda, lo tenían destinado.
La intervención trasciende la parcela, adentrándose en el interior de la manzana hasta recuperar su patio para dotarlo de nuevos usos, creando espacios deportivos y de relación que ayudan a compaginar un programa tan diverso
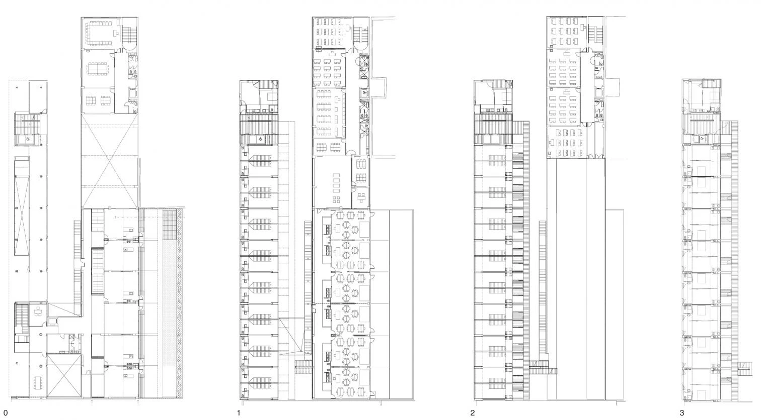
El programa se divide en dos estrechos volúmenes que se escalonan en paralelo hasta ocupar un fondo total de 28,5 metros, permitiendo un mejor aprovechamiento de la luz natural, a la vez que se genera un pasaje entre ambas piezas que funcionan como distribuidor, ayudando a compatibilizar distintos usos.


El vacío interior permite compaginar un programa que incluye viviendas para jóvenes, guardería, escuela infantil y primaria, además de recuperar el patio de la manzana. Con esta nueva organización se trata de superar dos cuestiones de tránsito —la anchura de las aceras y la separación entre peatones y vehículos— cuya problemática no recogía un planeamiento redactado en el siglo XIX.

El edificio se vuelve más permeable en planta baja, creando un ritmo con la sucesión de vacíos que rige las circulaciones, separando los accesos al aparcamiento, las viviendas, los centros escolares y el patio de manzana, a la vez que establece comunicaciones visuales entre este último y la calle de Londres, cuya acera logra alcanzar los veinte metros de ancho.




Claramente diferenciados en sus acabados, los dos volúmenes principales se posicionan en paralelo, dejando la mayor fachada para la pieza de viviendas, mientras que la que alberga el programa educativo se repliega hacia el interior.



Las viviendas se conciben como una sucesión de estratos que regulan los grados de privacidad de los ocupantes, creando filtros separadores entre los espacios de relación e intimidad, y agrupando las piezas húmedas.
El volumen que agrupa los 45 apartamentos para jóvenes se estructura con un pórtico metálico de 7,5 metros de profundidad que proporciona ventilación cruzada e iluminación natural. La entrada a las viviendas se produce a través de unos balcones en voladizo e intercomunicados por medio de pasarelas de aspecto industrial, suspendidas sobre el pasaje central que funciona como espacio común de relación.

La composición de las residencias compren-de dos espacios, de 20 metros cuadrados cada uno, protegidos por sendas fachadas profundas, una galería en el frente de acceso que actúa como filtro ante la pasarela de distribución a la vez que contiene la cocina, y un volumen técnico que agrupa los cuartos de aseo. Esta solución configura un cambio de escala en el que se vuelve a reproducir el funcionamiento de una ciudad a tamaño reducido.



Cliente Client
Ayuntamiento de Barcelona, Proeixample
Arquitectos Architects
Jaime Coll, Judith Leclerc
Colaboradores Collaborators
Odon Esteban, Urtzi Grau, Adrià Goula, Jordi Giralt, Ema Dünner, Eduard Rosignol, Thomas Kenniff, Narcís Font, Mireia Martínez, Aurora León, Jacob Hense, Tomeu Ramis, Cristian Vivas, Phillipe Coudeau, José Ulloa
Consultores Consultants
Manuel Arguijo (estructura structure); JSS (instalaciones mechanical engineering); Teresa Galí (paisajismo landscape architecture); Xavier Badia (presupuesto budget); GPO (gestión project manager)
Contratista Contractor
FCC/Fomento de Construcciones y Contratas
Fotos Photos
José Hevia