Rehabilitación del Grand Palais, París viii
LAN Architecture- Tipo Rehabilitación Cultura / Ocio Museo
- Fecha 2014
- Ciudad París
- País Francia
Rehabilitar una preexistencia conlleva reconocer y apreciar su pasado, tanto el material como el simbólico. Este diálogo inevitable con el tiempo se convierte en un elemento indispensable para la intervención en el Grand Palais, un edificio originalmente construido para la Exposición Universal de París en 1900. La restauración, más allá de ampliar su capacidad para acoger visitantes, optimizar los usos o mejorar sus accesos, supone la oportunidad de reforzar su condición de motor cultural de la ciudad y símbolo de los principios republicanos. Por ello, el proyecto busca promover valores como la efectividad, la sobriedad y la celebración del legado cultural.
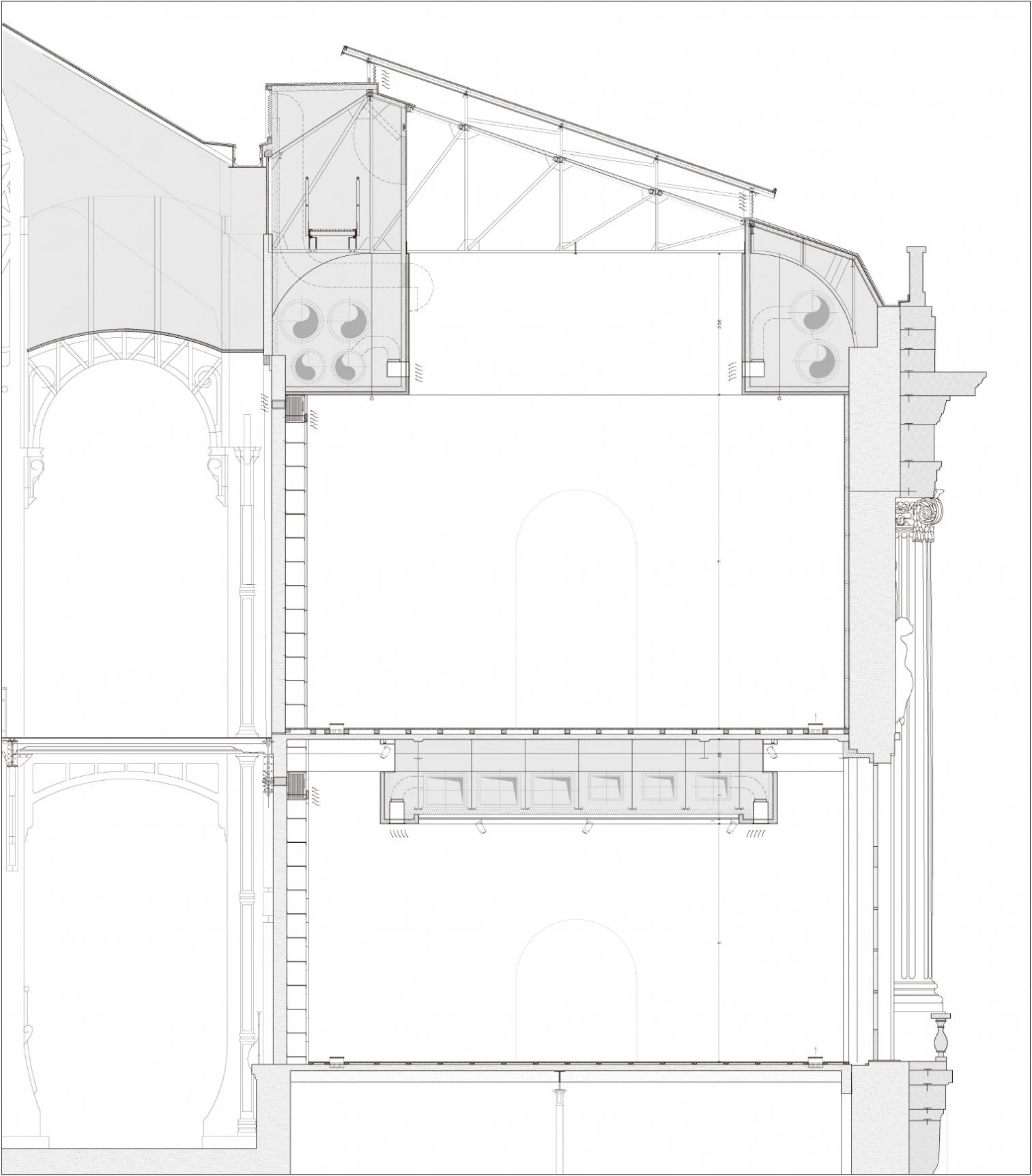
Dada la complejidad del reto de rehabilitar un edificio de tal escala, la propuesta no se limita a unos pequeños cambios espaciales, sino que abarca todos los niveles. Para ello, se reúne a especialistas de disciplinas diferentes tales como la restauración, el arte, el diseño escénico, la eficiencia energética o la ingeniería climática. El proyecto establece una estrategia global que busca restaurar la unidad y fluidez inherentes a su origen como palacio de exposiciones. En este sentido, la intervención para revitalizar los accesos de las fachadas norte y sur se centra en el edificio intermedio, donde la plaza Jean Perrin guía a los visitantes a través de un gran espacio público abierto con dos rampas curvas de acceso. Dentro, la ‘Grand rue des Palais’, además de albergar el vestíbulo y la recepción, se convierte en una plataforma de conexión entre los diferentes espacios del complejo cultural y, al mismo tiempo, genera un gradiente espacial entre la ciudad y las galerías. Esta plataforma vincula visualmente la nave principal y la rotonda del Palais d’Antin, enfatizando el eje original este-oeste, y se conecta con un itinerario circular que recorre el edificio. La visita culmina en la cubierta, en la que se habilitan una cafetería y un paseo al aire libre a lo largo del perímetro del palacio, desde donde se puede disfrutar de unas vistas inmejorables de la capital francesa.
Las grandes dimensiones de los espacios monumentales del Grand Palais permiten organizar exposiciones de arte contemporáneo, que normalmente suelen desbordar los límites espaciales de las galerías tradicionales por el formato de las obras expuestas (vídeo, fotografía, instalaciones, performances). Así, la transformación de las Galerías Nacionales acogerá trabajos de condición muy diversa gracias al desarrollo de un abanico amplio de conceptos museográficos y situaciones físicas en términos de organización espacial, volumetría, iluminación o materiales.












Arquitectos Architects
LAN (Local Architecture Network)
Colaboradores Collaborators
Agence Franck Boutté (sostenibilidad sustainable design); Terrell (estructura, fachadas y fluidos structure, facades, fluids); Michel Forgue (aparejador quantity surveyor); Systematica (circulaciones flux); Lamoureux (acústica acoustics); Casso (protección frente al fuego y accesibilidad fire protection and accessibility); CICAD (SCMC), BASE (paisajismo landscaping); Mathieu Lehanneur (diseño design)
Superficie construida Floor area
69.300 m²
Presupuesto Budget
130.000.000 € (PEC contract budget)