Residencia de estudiantes, París XVIII
LAN Architecture- Tipo Vivienda Sede / oficina Residencia
- Material Ladrillo Madera
- Fecha 2007 - 2011
- Ciudad París
- País Francia
- Fotografía Julien Lanoo
- Marca Agence Franck Boutté
La población del barrio parisino de La Chapelle es tan heterogénea como su arquitectura. Se trata de una zona en la que conviven edificios de origen ‘haussmaniano’ junto a naves y talleres de la industria ligera dispuestos a lo largo de las vías de la estación ferroviaria de Gare de l’Est. Por un lado, la nueva residencia de estudiantes debía relacionarse con su entorno urbano y contribuir a la intensa actividad de las calles del barrio; por otro, proporcionar un espacio de concentración y estudio, así como generar un sentimiento de comunidad entre sus residentes. Este doble objetivo se modula mediante juegos de densidades y saltos de escala, regulados por la restrictiva normativa vigente.
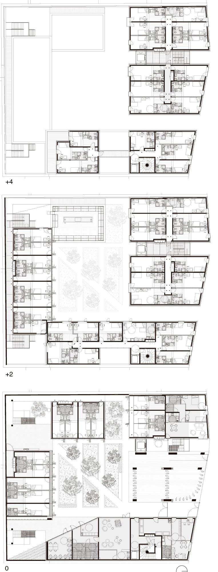
Los 143 apartamentos se dividen en una serie de volúmenes dispuestos en torno a un patio conectado visualmente con el exterior a través de dos grandes pasadizos. El primero de ellos permite el acceso desde la calle, el segundo alberga unas escaleras metálicas que conectan las distintas plantas de la residencia. Un cerramiento de malla de acero inoxidable protege la planta baja del edificio —donde se dispone un aparcamiento de bicicletas visible desde la calle— al tiempo que permite al peatón vislumbrar el patio interior. La fachada hacia la calle, revestida de ladrillos oscuros hechos a mano, contrasta con la cálida materialidad de los listones de madera de alerce que recubren las fachadas del patio interior, y este contraste permite imbuir en el proyecto un sentido de urbanidad y diversidad en consonancia con la heterogeneidad del barrio en el que se asienta.
El patio es el eje funcional y comunitario alrededor del cual se desarrolla el resto del programa, proporcionando, además, acceso a los apartamentos situados en la parte trasera del conjunto. Los cuatro núcleos de comunicaciones, dispuestos en las esquinas del solar, pueden ser exteriores o accesibles a través de porches. Las habitaciones, de
18 m² cada una, presentan huecos de área variable y cuentan con balcones o terrazas compartidas, que enriquecen las cualidades espaciales de unas estancias de tamaño reducido. Así mismo, el mobiliario diseñado a medida —escritorio, lámpara, estantería, etc.—, junto con los elementos de protección solar, contribuye a crear una sensación de conjunto. Todos los espacios comunes se abren al patio central que, gracias a sus amplias dimensiones —un rectángulo de 225 m²—, se convierte en el centro de actividad, relación y reunión de los estudiantes. Tanto en el pavimento como en los paramentos verticales del patio se emplea un material de alta resistencia que garantiza su durabilidad a lo largo del tiempo.












Arquitectos Architects
LAN (Local Architecture Network)
Colaboradores Collaborators
LGX Ingénierie (ingeniería engineering); Agence Franck Boutté (sostenibilidad HEQ consultant)
Superficie construida Floor area
3.950 m²
Presupuesto Budget
8.000.000 € (PEC contract budget)
Fotos Photos
Julien Lanoo