Gimnasio y plaza pública, Chelles
LAN Architecture- Tipo Plaza Paisajismo / Urbanismo Deporte
- Fecha 2008 - 2012
- Ciudad Chelles
- País Francia
- Fotografía Julien Lanoo
- Marca BETEM
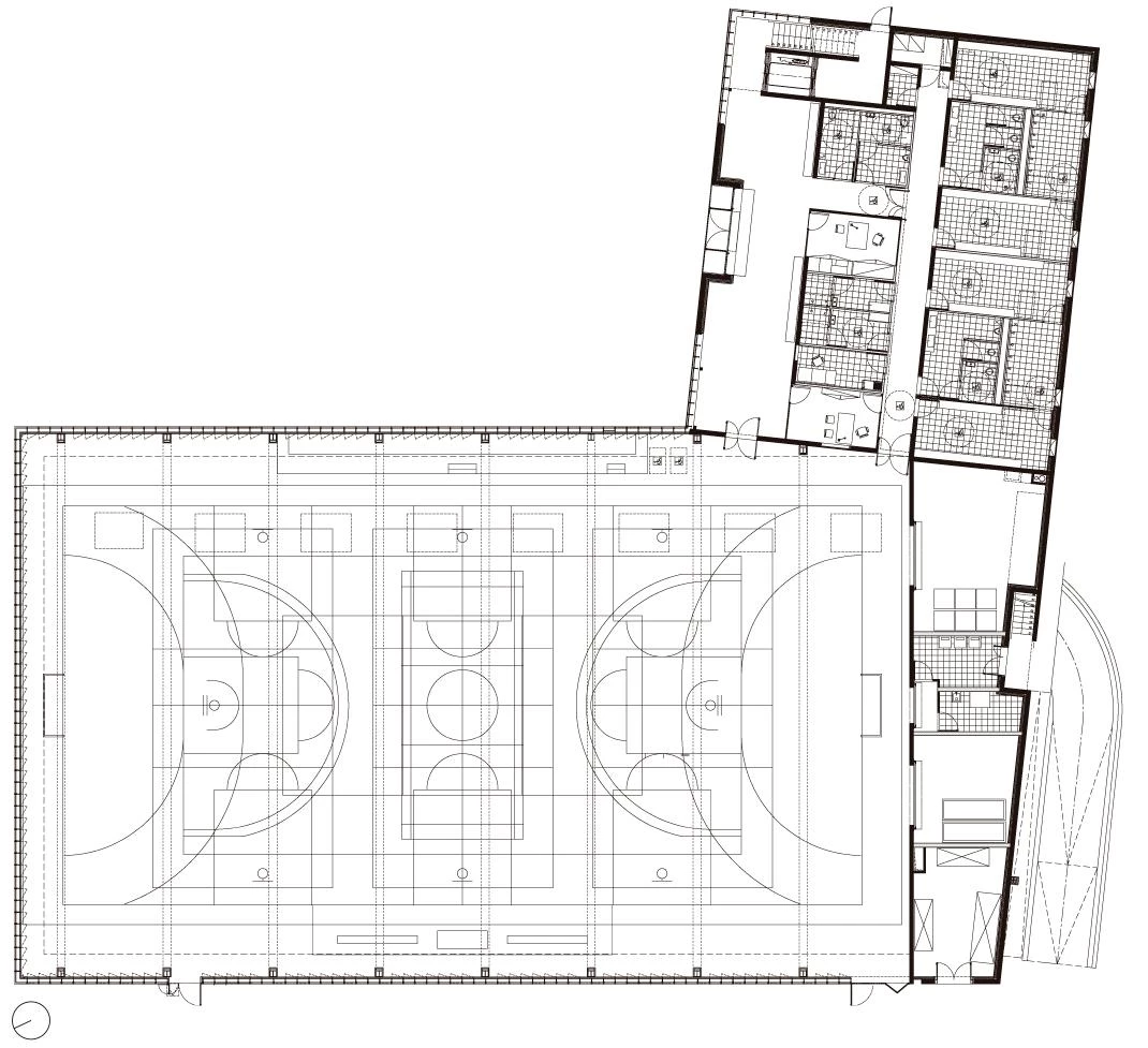
Situado entre el parque Émile Fouchard, el ayuntamiento, una escuela de secundaria y el museo de arte contemporáneo –formado por dos iglesias reconvertidas–, el gimnasio se inserta en un contexto heterogéneo tanto desde el punto de vista formal como funcional. Su situación en pleno casco histórico, entre los edificios representativos de los poderes de la ciudad, dota al gimnasio de una fuerte carga simbólica. La principal estrategia de proyecto consiste en la reordenación del tejido urbano y en la cualificación del espacio público con la nueva infraestructura deportiva como elemento articulador. El volumen adopta una geometría ortogonal sencilla, paralela a las fachadas del ayuntamiento y de la escuela, que organiza el espacio urbano, dota a la ciudad de una gran explanada pública y conecta el parque con el centro de arte contemporáneo.
El programa se divide en tres partes diferenciadas: pistas deportivas (1.100 m²); espacios asociados (289 m²); y administración, logística y servicios (406 m²). Las proporciones y dimensiones del gimnasio, especialmente su altura, se corresponden con las de los edificios que lo rodean. La fachada transparente permite, desde el interior, una visión caleidoscópica de la plaza y, al mismo tiempo, rompe con la tipología tradicional de caja opaca ajena al contexto típica de los edificios deportivos. La ambigüedad del cerramiento compuesto por dos capas, una de vidrio al exterior y otra de cobre al interior –que refuerza el efecto reflexivo del primero hacia el exterior, a la vez que lo protege de golpes en su cara interior–, contrasta con la sencilla y rotunda geometría del edificio. Durante el día, gracias a las propiedades del vidrio y del cobre, el volumen se diluye al reflejar la fachada de los edificios vecinos, lo que da lugar a un cerramiento cambiante en función de la posición del observador. En cambio, por la noche la fachada se transparenta y permite así vislumbrar el interior del complejo deportivo, al tiempo que se ilumina como un fanal en el espacio público.
Desde el punto de vista bioclimático, el gimnasio destaca por su alto grado de eficiencia energética. Gracias a la inercia térmica de sus muros de hormigón y a un sistema de enfriamiento nocturno se reduce la demanda de energía para un acondicionamiento interior adecuado. Además, el edificio está conectado a la red de calefacción geotérmica municipal, recoge el agua de lluvia para usos sanitarios y emplea luminarias de alto rendimiento. Todo ello le ha valido la calificación de Very High Energy Performance (THPE) concedida por la Unión Europea.









Arquitectos Architects
LAN (Local Architecture Network)
Colaboradores Collaborators
BETEM (TCE); Isabelle Hurpy (sostenibilidad HEQ consultant)
Superficie construida Floor area
2.322 m² (gimnasio gymnasium); 2.857 m² (plaza pública esplanade)
Presupuesto Budget
4.340.000 € (gimnasio gymnasium); 967.000 € (plaza pública esplanade)
Fotos Photos
Julien Lanoo