Piscina cubierta, Taradell
RCR Arquitectes- Tipo Deporte Piscina
- Fecha 2017
- Ciudad Taradell (Barcelona)
- País España
- Fotografía Simón García
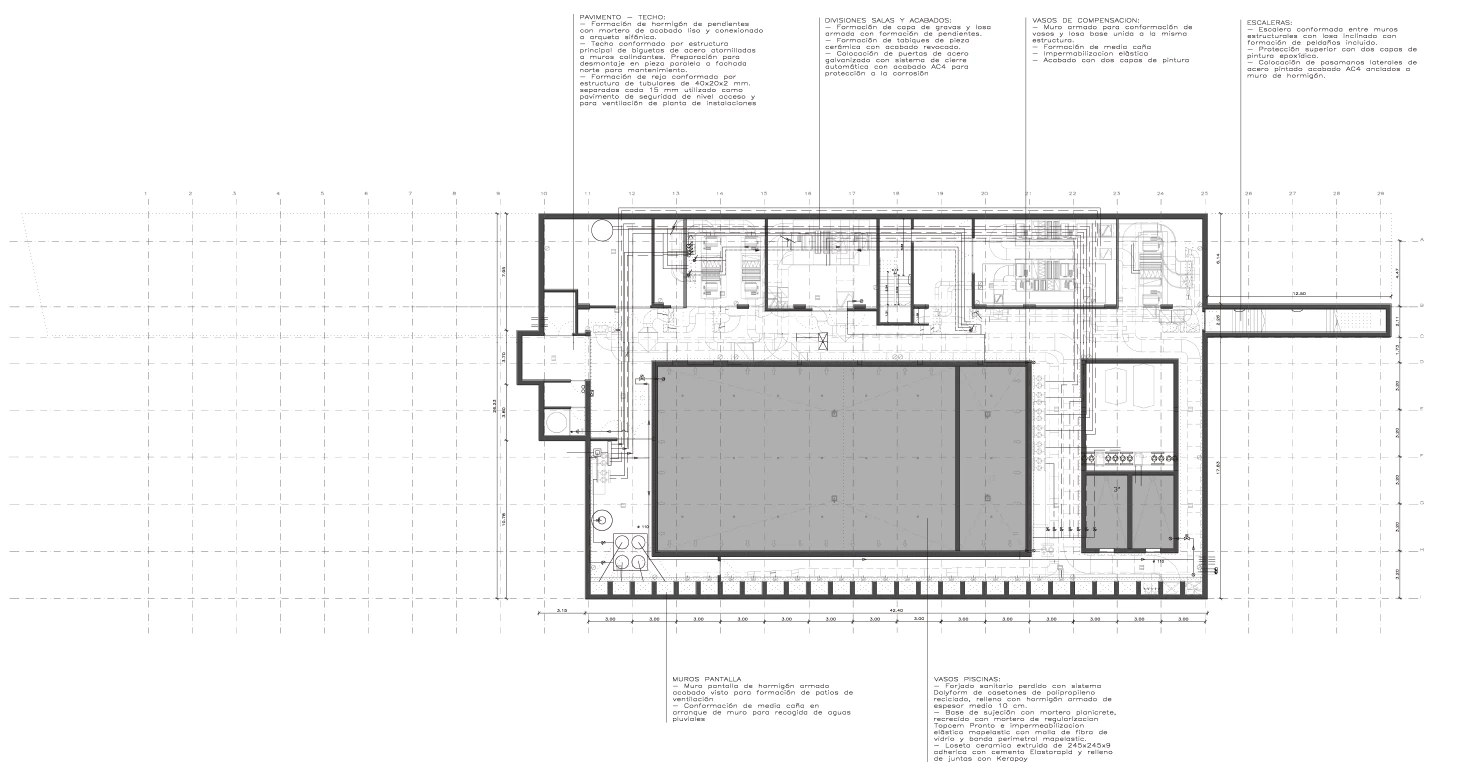
En un entorno deportivo situado en Taradell, una pequeña población de Barcelona, el enclave de esta piscina cubierta y su topografía escarpada determinan su configuración, que se articula en cuatro partes: las pistas al aire libre, el muro, el paralelepípedo de servicios y el propio pabellón de la piscina. El programa se distribuye en una única planta, en un espacio de más de 2.600 metros cuadrados, y se compone de una piscina de natación de 20 metros de longitud y seis calles; otra piscina, más pequeña, destinada a las actividades acuáticas dirigidas; una sauna; un baño de vapor; un gimnasio; una sala de ciclismo interior y una amplia sala polivalente.

Situado en el pequeño municipio barcelonés de Taradell, a los pies del Macizo del Montseny y rodeado de bosques de pinos y robles, el proyecto responde a la topografía del lugar, que determina la configuración del edificio.
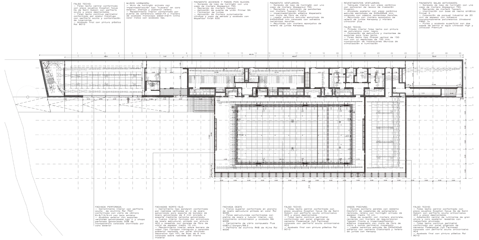
Desde la calle se despliega, como si se tratase de una valla, un pequeño muro, que marca el acceso al complejo a través de una rampa y oculta, debajo, una pastilla alargada en la que se alojan los vestuarios y el resto de zonas húmedas, los almacenes, las zonas dedicadas a la administración y dos pequeñas estancias de actividades conjuntas, además de todas las instalaciones del proyecto.

Este elemento longitudinal se transforma, al alcanzar el espacio ocupado por las pistas, en un gran mirador desde el que se puede observar el desarrollo de todas las actividades. Los elementos verticales de la envolvente sirven para filtrar estas vistas desde el exterior, pero esa no es su única función, ya que también conforman la estructura portante y protegen la piscina de la luz del sol. Esta disposición rítmica de los pilares favorece la permeabilidad de la zona de natación con respecto al espacio exterior —una plantación de pinos y varios espacios boscosos—, que nunca desaparece del todo: los reflejos del agua recogen el entorno, lo trasladan al interior y atenúan así la potente presencia de la fachada. La estructura reticular de la cubierta, por su parte, se apoya sobre una línea de pilares cortos dispuestos sobre el muro, que siguen la misma modulación empleada en todo el edificio y que generan una serie de lucernarios para terminar de iluminar la superficie de la piscina.







El aspecto industrial de la envolvente, construida con materiales prefabricados —perfiles metálicos y paneles de vidrio, hechos a medida—, contrasta con la apariencia más sólida de los materiales empleados en las salas húmedas y las zonas secundarias del pabellón, que se resuelven con hormigón armado y revestimientos de madera. Por su parte, tanto el falso techo que contiene las luminarias y parte de la instalación eléctrica como algunas de las particiones interiores se realizan con materiales plásticos, también prefabricados, que acentúan con su ligereza la rotundidad formal de la obra.






Desde la calle, como si se tratase de una valla, un pequeño muro se convierte en un mirador hacia las pistas, filtrado por los elementos verticales que son a la vez estructura portante y protección solar de la piscina.


La disposición rítmica de los pilares potencia la permeabilidad hacia el exterior; con la misma modulación, la línea de pilares cortos sobre el muro en los que apoya la cubierta, generan lucernarios para iluminar la piscina.





Cliente Client
Ajuntament de Taradell
Arquitectos Architects
RCR Arquitectes: Rafael Aranda, Carme Pigem, Ramón Vilalta
Colaboradores Collaborators
RCR: M. Tàpies, A. Schmid (proyecto project); G. Puigvert, H. Payà, M. Ortega (dirección de obra site supervision); D. Breathnach, C. Wittenbeck (maqueta model); G. Szücs, C. Kuczynski, C. Wittenbeck, A. Schmid, D. Leikina, I. García, H. Payà (visualización visualization)
Consultores Consultants
M. Sellés (aparejador quantity surveyor); Blázquez-Guanter (estructura structure); Grau-Del Pozo, Aribau70 (instalaciones mechanical engineering)
Contratista Contractor
Brues i Fernández Construcciones (1ª fase), Acertis Obres i Serveis SAU (2ª fase), Construccions Ferrer SA i Cimelsa SL (3ª fase)
Superficie Area
2.637 m²
Presupuesto Budget
3.060.114 €
Fotos Photos
Simón García